
坐落在旧金山多洛雷斯高地附近,向西倾斜的场地提供了城市和附近苏特罗塔(Sytro tower)的全景。该住宅是与 Sawyers Design 的 Kevin Sawyers 合作设计的,他也是该住宅的部分所有者。


凯文和他的丈夫希望改造和扩建他们现有的地震小屋,这些小屋多年来是零碎增加的,把这些笨拙相连的房间变成一个开放、和谐的空间。鉴于现有的足迹覆盖了大部分地块,目标是充分利用房屋与这个独特地点的关系。



场地与住宅的循环是一条直轴,当它们上升到主入口时与建筑的形式相互作用。内部延续,沿着这条轴线的体验总是固定在苏特罗塔的下坡端,在上坡端由一棵宏伟的蒙特雷柏树结束。



房屋的形式相互交织,突出的是雪松、固定接缝金属和水泥面板的材料调色板。这些形式,连同内部的调色板,在一个完全开放的平面内创造了房间。逐渐增强的形式出现在前端,向典型的旧金山乡土建筑致敬。



一个“倒置”的飘窗盒子从立面上悬臂 8 英尺,突出了“城市森林”的三种体验。下方是森林地面的外部火坑。在内部,盒子框定了“主干”层的视图。在上面,屋顶的平台延伸了客厅,让人们体验到“遮篷”的水平。在这个平台上,背景是几乎像孩子一样表达的家,山墙。













项目信息

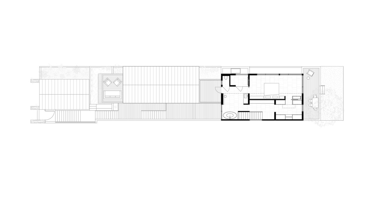
△一层平面图

△二层平面图

△三层平面图

△四层平面图

△屋顶平面图

△立面图

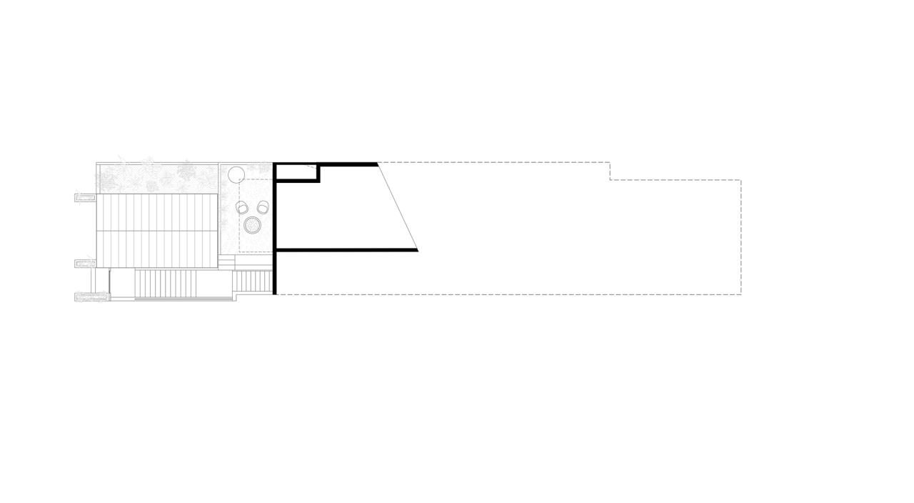
△剖面图

△剖面图
项目信息
建筑师: jones | haydu
面积: 295 m²
项目年份: 2021
摄影师:Matthew Millman
厂家: Benjamin Moore, Blu Bathworks, Graff, Integrated Resources Group, Mosa, Sogni Di Cristalo, Tulip, Umili, Western Window Systems
主创建筑师: J. Hulett Jones, Paul Haydu, Grace Leung
室内设计: Sawyers Design
总承包商: Jeff King and Company
结构工程师: Strandberg Engineering
地点: 美国,San Francisco

BIM建筑网





评论前必须登录!
注册