
项目概况
东莞水乡功能区是广东省级重点发展片区。在未来规划中,水乡功能区被定位为高质量统筹发展示范区域。本案是水乡功能区管理机构的先行形象重点建筑。

△东莞水乡
为了能完美达成设计目标,业主将所有设计项目以总包形式委托给团队,在“限价设计“的要求下,达成建筑、室内、景观一体的“交钥匙”工程。
业主对项目期望很高,他想建筑既符合岭南气候特点,又不落传统俗套,能展示出现代建筑的活力,体现出水乡片区新气象。

△项目主入口
园区规划
水乡科创产业园整体项目占地约为53亩,在3.5的容积率下,规划空间并不宽裕。已建成的一期,都是不超过4层的低层建筑,占用了将近一半的场地,导致后续的建设用地捉襟见肘。所以,当业主委托我们做二期建筑单体研究的时候,我们首先想到要从园区的整体规划入手。

△场地现状
我们坚持单体建筑是整体园区的一个部分,它不是独立存在的,只有规划好项目整体合理性,才是确定本期单体的最佳方式。于是我们重新确定了园区的主入口位置、重新规划车行流线与人行流线、重新拟定车辆停放方案、重新定义园区的景观核心。这样从整体入手,理性有序的工作方式,有力地支撑了二期单体如此设计的合理性,增强了业主持续开发的信心。这一举措也成功让我们获得了本案的设计权。

△项目分期

△园区入口漫游

△园区庭院漫游
水乡科创二期工程作为园区主要的配套,要求建筑能满足日常使用多种功能的复合需求。这里包括了能同时满足300人参与的大型多功能厅、服务园区的预约式会议中心、配套食堂、餐饮、行政办公中心、还有供水乡领导开会与接待的专属区域。

△功能分析
我们细致分析了每项功能的使用要求,疏散要求,并最大程度合理安排其交通位置后,在竖向上将每项功能叠加起来。做到层层专属功能互不干扰,使用效率最高。例如,使用人员多、疏散压力大的多功能厅设计在首层,使用起来非常高效。随着楼层的增加,西向河道景观的视线条件也逐步提升,所以,将会议与接待的专区设置在八层,以便人员能欣赏到最美的江景。做到把最好的景观提供给最大使用量的人群。

△项目外观
立面细节
业主有丰富的欧洲考察经历,对建筑物的审美品味也达到了一定的高度,偏向于简洁有力的现代建筑。

△项目外观
所以我们在设计本案造型的时候,力求以雕塑感带出整体效果,用大的、实的墙面与虚的、轻的玻璃幕碰撞产生强烈的反差。沉重的混凝土被轻盈的玻璃体提升至空中;出挑阳台带出的钝角折线,层层交错,灵感来源于水波的滚动。设计让混凝土这样厚重的材料如丝带般在空中飘舞,伸向远方……最终形成一个具有现代艺术特质,又蕴含水乡地域特色的体量。


△项目外观
建筑形体能清晰被从水乡大道来往车辆辨识出来,撑起作为水乡功能区的门户标识作用。

△鸟瞰夜景
项目的西面是东江的支流,江面宽阔,视野良好。但岭南地区午后的西晒又是让人难熬的时段。在本案的设计中,为了让使用者既能享受西面最好的景观,又能不受日晒之苦,采取了主、被动遮阳的复合措施。

△阳台剖透视图

△阳台节点
结合造型所需要的折板形成层间的遮蔽主体,再配合窗上横向百叶,和局部竖向木格栅,构成了建筑物主要的立面。玻璃幕墙及其杆件选择了颜色很浅的高级灰,有效避免了热量的吸收。西向是主要的景观面,也是西晒的重灾区。所以,向西的每一层都设计了出挑很大、各层宽窄不同的露台,一方面为欣赏落日提供了最佳的位置,另一方面形成的深远阴影为西侧的外窗提供了有效的遮蔽。

△阳台实景

△阳台细节

△立面细节实拍

△立面细节实拍
下午强烈的西晒被格栅遮挡,形成斑驳的光影,为内部空间带来一片阴凉。

△阳台格栅
景观设计最多的想法是出现在各层宽窄变化的阳台、露台上。本来想打造一个丰富的“巴比伦空中花园”,受限于经费的制约,只好放弃了阳台花园的实施,是本案很大的遗憾。

△阳台花园效果图

△阳台实景

△阳台花园效果图

△阳台实景

△施工过程
结构体系
项目的使用功能丰富,空间结构复杂。其中比较困难的是首层多功能厅的结构设计。业主要求可同时容纳300人参与会议的无柱大厅,而它的设置在首层,是结构的重要部位。要实现无柱大空间就需要抽去4根柱子,普通的梁抬柱转换方式会导致抬梁很高,占用过多竖向空间,再考虑吸音吊顶厚度,则多功能厅层高就会显得压抑,不但导致室内效果不佳,同时抬梁的配筋量大,比较费钱。在“限价设计”的要求下,我们要选择既节约费用,又能达到空间效果美观的结构方案。经过与总工的多次沟通,我们大胆地采用了斜柱方案,将首层被抽掉的4根柱子,做成斜柱,调整好倾斜的角度,竖向跨越2层,有效地解决了首层的大空间问题,且不影响其他层的使用。

△结构模型图

△二三层施工现场

△多功能厅建造过程
室内空间
室内设计延续建筑设计的理念和色调。采取浅色的新中式风格。入口大堂设计稳重大气;餐厅空间轻松温馨;办公区域现代时尚;党政会议室严肃端庄。

△首层报告厅

△党政会议室

△首层大堂室内

△会议室

△办公室内

△室内办公
结语
水乡科创中心作为一个以“建筑师负责制”指导下的设计总承包实践项目,从设计到施工的各个阶段,团队都在深度参与。跳出了国内建筑师只关心主体建筑设计内容的狭隘认识,将“建筑师”的龙头主导作用发挥到了每个子项工程当中,很好地把控了设计效果,又管控了工程的投入。
这种“建筑师负责制”坚持以项目落成效果作为第一准则的实践,为我们积累很多有效的“建造”经验,也将成为团队日后所有落地项目的实施方式。

△施工现场
技术图纸

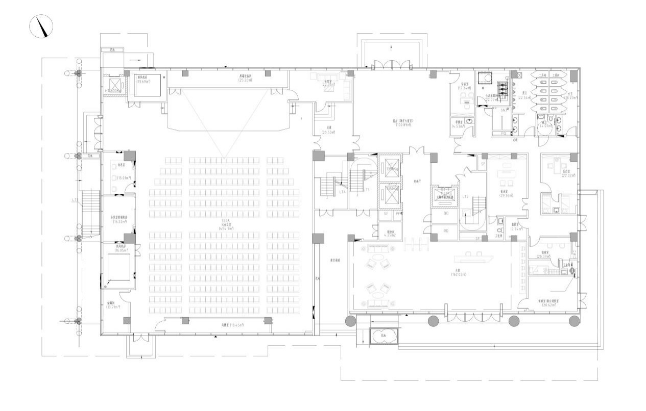
△一层平面图

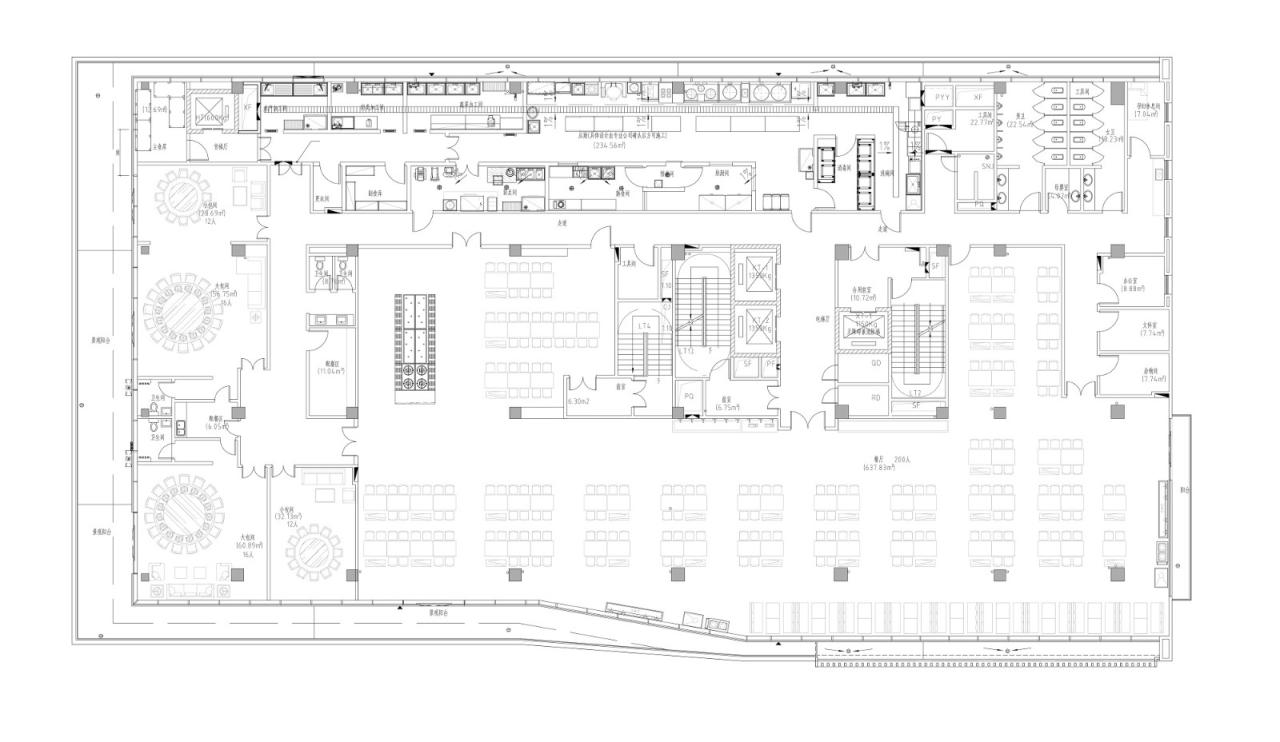
△二层平面图

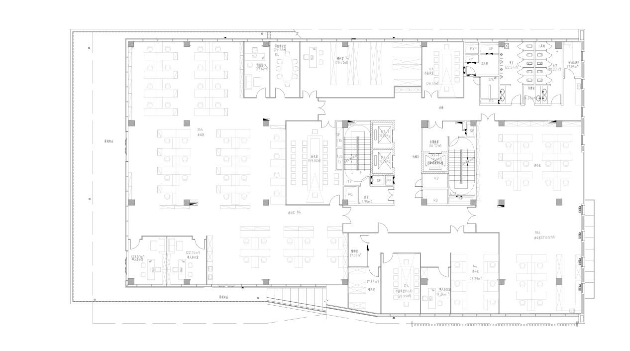
△三层平面图

△办公室平面图

△剖面图
项目信息
项目名称:东莞水乡科创二期
项目地点:东莞市水乡功能区
建筑类型:办公、生产
用地面积:35154.66m²
总建筑面积:153697.98m²
二期建筑面积:12518.4㎡
容积率:3.5
设计单位:森磊国际
设计团队:
主创建筑师:熊炜
设计总包管理:熊炜、曹珂
建筑方案设计:郑欣雨、朱传璟、雷玮婷、刘婷
建筑施工图:金建平、伍俊明、颜海青、卢柏承、张宏伟
结构:霍勇贤、吴嵬、孙佳为
电气:程祝安、王红爽、罗艳华、杨静、方培培
给排水:王灵莉、张炳师、王心可、唐倩倩
智能化:程祝安、朱炳坤、谭建涛
暖通:李波、吴茜、冯梦楠
景观:徐天乐、李昱、练庆伟、吴燕成、吴浩武
开发业主:东莞水乡置业管理有限公司
摄影:罗汉工作室

BIM建筑网





评论前必须登录!
注册