
该地位于无等山国立公园和光州市区的交界处。有一条双车道的公路通往该地,沿途有自然景观,也有城市风貌。街边有高大的银杏树,有老房子,也有商业大楼。这里部分土地在早前道路养护时用来铺路了,因此楼房是呈三角形的。此外,由于拓宽标准没有算入后方道路面积,且前方道路根据景观区状况回退了两米,建筑可用面积大大减少,只有 62.73 平方米。这栋三角形楼房,有两面朝向道路,而第三面朝向南方,旁边的楼房遮住了这一面。

户主是对夫妻,经营着一家餐厅,他们希望房屋有一些附加功能,以便边工作边分享自己的日常生活,同时还能在家搞搞自己的爱好。由于这栋房屋离周围建筑太近,没有任何缓冲区域,这对夫妻还想为房屋内外的功能做础明确区分。


就这样,屋内大体上被分为三个功能区。一楼是餐厅和厨房,用于用餐和友人会面。第二至第四层全部都是居住区。而屋顶区域,则是能充分亲近周围自然环境的场所。


外墙被视为房屋内外第一道界限,砌起来的实心天然石块(层石砌体)旨在开创大自然融入街景的先河,能为住户带来安心感。
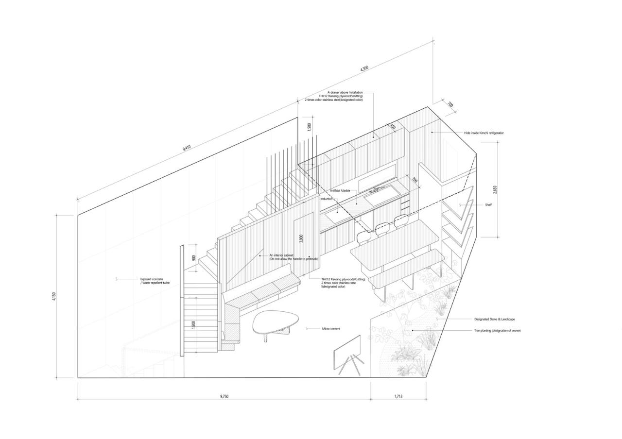
室内有裸露的混凝土饰面和天然木质材料制成的内置家具,以求室内和室外自然美感的统一。


模糊边界室内使用跃层户型来增加高度变化,以确保客厅是开放空间,并使上下楼更加轻松方便。楼梯不是分散在各处的,不会与各层功能区域冲突,这样能提高空间利用率,人也能活动得开。


这栋房子里,除了卧室和浴室之外,其他区域都设计得相当宽敞。在儿童房和楼梯、走廊、浴室和洗衣房、娱乐室和楼梯、客厅和花园之间,要么有透明的玻璃开口做分区,要么完全没有任何界限。这样做是为了模糊边界,有效地利用狭窄的空间,根据使用目的和形式,决定该空间需要分区与否。每个房间的家具是最早设计的,旨在打造空间统一感。


灵活干预由于空间有限,将围绕楼梯的区域进行划分、整合,是设计规划的重要前提。为了划分和整合空间,房子被分为一二两层,二三两层、三层及以上,而楼梯改变了每个区域的功能、结构和朝向。第一层装了透明的玻璃扶手,以集中展示室内装饰。二三两层是框架结构墙体,这些墙体也是浴室、定制沙发和底部储藏室的边界墙。三层以上是有节律的线性设计,旨在以新的方式展现开放式墙壁。这些设计展示了不同特点空间内楼梯的不同设计。


房子融入风景外墙决定了人们对房子的第一印象。它使用不规则形状的层石砌成,而这些石块是使用极少量原材料加工而成的。屋外两米宽的人行道是一处连接石墙的开放区域,表面由抛光混凝土铺成,即使没有墙,行人也能意识到这是公路和房子间的界限,司机也能意识到房子是城区和自然的界标。外墙的开口,大小和位置各不相同,特意设计得比较杂乱,这样是为了抵消坚硬粗糙的石墙带来的重量感。天棚和窗户越往上越宽敞,以求屋内有更好的视野看到远处的无等山。






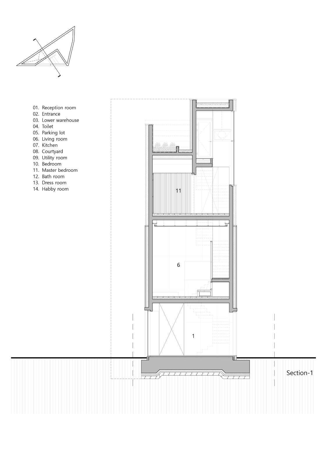
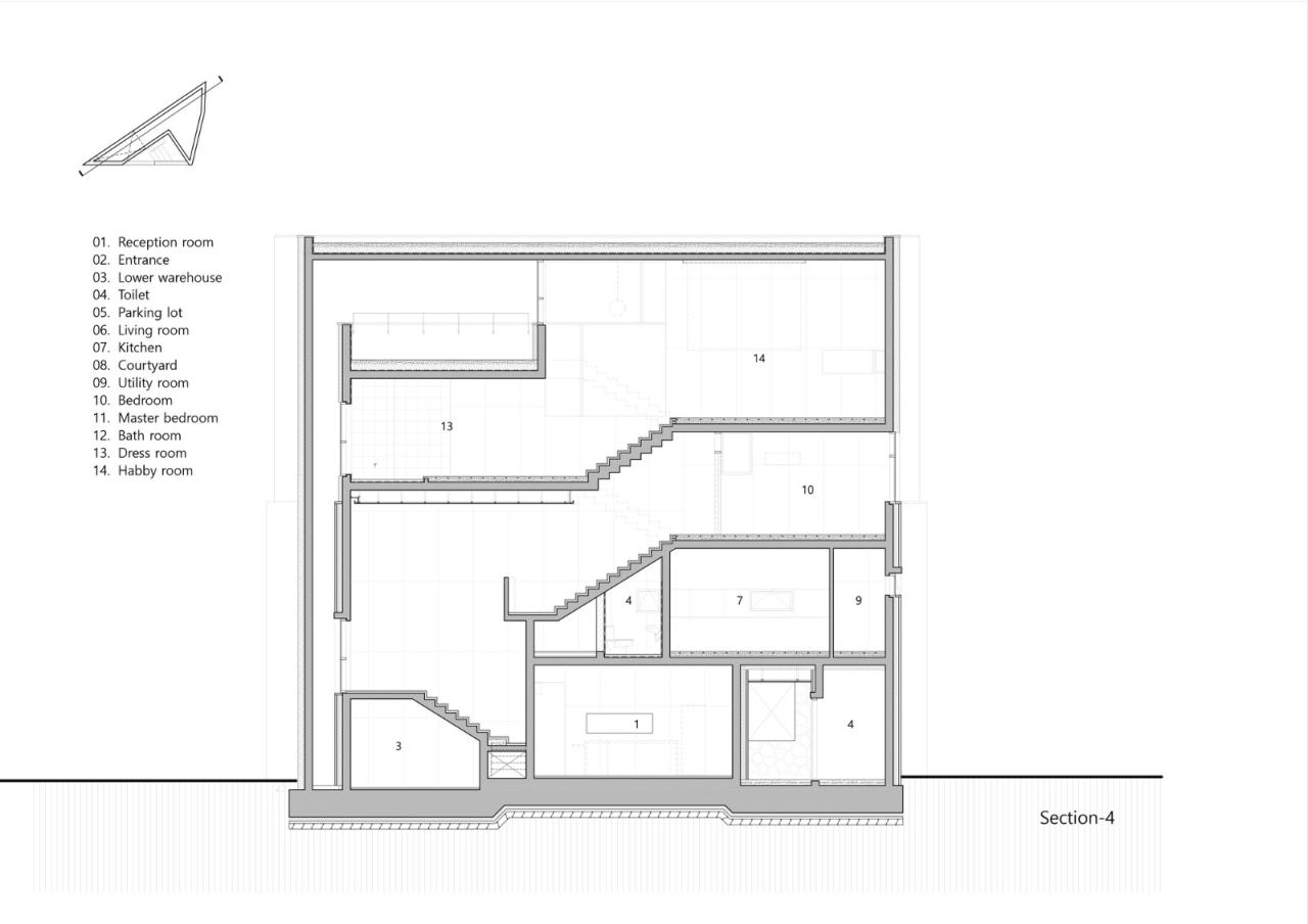
项目图纸

△一层平面图

△二层平面图

△三层平面图

△四层平面图

△屋顶平面图

△剖面图

△剖面图

△剖面图

△剖面图

△分析图

△分析图

△分析图

△分析图
项目信息
建筑师:PLAN Architects office
面积 :178m²
项目年份 :2022
摄影师 :Joon Hwan, Yoon
建筑师 :plan architects office, Lim Tae Hyung, Jo Hanee
结构工程师 :SDM Partners
机械工程师 :SAETEO.ENG
景观设计 :造景商會
地点 :韩国,Gwangju

BIM建筑网





评论前必须登录!
注册