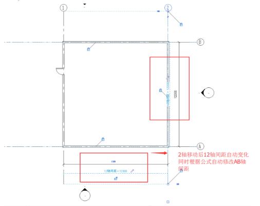
全局参数,除了可以在全局参数面板中进行参数值更改,也可以将其设置为报告参数,用来提取项目中的构件参数或尺寸间距。例如,创建全局参数时,如果没有勾选“报告参数”选项,则此参数只能通过修改数值的方式进行调整。

而如果将此全局参数更改为报告参数,12轴间距就可以通过移动轴线来进行调整了,此时移动命令将更改参数数值,从而根据公式自动更改AB轴间距。


微信公众号:xuebim
关注建筑行业BIM发展、研究建筑新技术,汇集建筑前沿信息!
← 微信扫一扫,关注我们+

BIM建筑网

评论前必须登录!
注册