
与场所相对的微架构-项目是名古屋市山里保育园的增筑栋。现有建筑为两层钢筋混凝土结构,位于斜坡北侧与道路的交界处。业主希望营造一个为教职工所服务的办公和多用途小空间。


由此,建筑师开始考虑该在何处营造这样的一个小空间。在几乎没有平坦地面的场地上,建筑师最终决定在被建筑物和挡土墙包围,位于最里侧的死角增加一个延伸。

因为增筑栋三面都被结构环绕,建筑师决定改变常规的思维顺序- 从建造屋顶而非墙壁开始。在挡土墙和现有花园建筑之间建立一个全新表面是不错的方案,而在其之上是一个有明确外形的小屋。

△改造后

△改造前
地面上不再有建筑物的轮廓。最内的空间因此成为室内,并与现有建筑相连,面向操场开放。



原先的死胡同也相应地变成了枢纽空间。建筑师还建造了一个全新屋檐,将挡土墙和现有建筑的窗扇连接起来,创造出一个迎接来访者的全新面貌。建在上方的小屋是多用途的小空间。通过将小屋与斜坡上部相联通的方式,一个三维连接就立即出现在了整个场地的流线之中。


曲线在扩建部分的设计中被积极使用,继而与现有建筑的设计特征保有连贯性。建筑物的顺序被颠倒,死胡同也相应地成为了枢纽空间。虽然这只是一座 10 平方英尺的倒置建筑,但其却重新编整了全部的 1000 多平方米场地。












项目图纸

△模型图

△一层平面图

△二层平面图

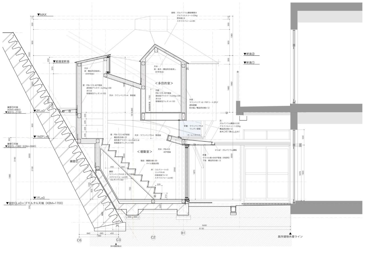
△细部大样图

△细部大样图

△手绘结构图
项目信息
建筑师:吉村真基建筑计画事务所 | MYAO
面积 :3434.0平方米
项目年份 :2021
摄影师 :ToLoLo studio
建筑师 :吉村真基建筑计画事务所 | MYAO, 吉村真基
业主 :Social Welfare Corporation
结构设计 :Takuo Nagai / Eureka
承包商 :Hakoya
地点 :日本

BIM建筑网





评论前必须登录!
注册