
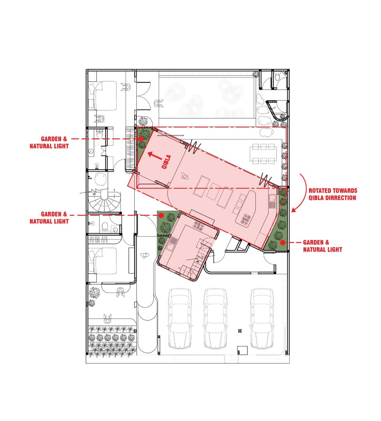
客户第一次见到我们时就说,“我喜欢这个乱糟糟的设计。”客户喜欢的这个设计另一个原因是,房子可以供大家庭进行聚会祈祷,可同时容纳多达几十名成员,或是可以和邻居们一起进行宗教诵读。如此,房子就像是有着爪哇式屋顶的别墅,将伊斯兰价值观应用到日常生活中来。顾名思义,分心就是指分散注意力的事情或行为。这栋房子能够分散居民注意力,主要是通过一个动作,即旋转其中一个房间,使其能够朝向基卜拉——这个动作设计能够满足居民需求,这样他们就能与大家庭进行礼拜宗教活动,也可以接触到很多人。设计灵感来源于传统的爪哇屋顶(印度尼西亚一个地区的本地房子屋顶)),获得了空间的特性以及建筑形式的新特性。


所获得的空间特征是指公共区域的空间体验感,以及现有地形的空间迷失所造成混乱的印象。公共区域与房屋分心设计影响而形成的有机空间的剩余空间所并排,而剩余的有机空间则起到了绿化区、干燥花园景观、通风源和自然采光的作用,与房屋内部融为一体,使得这个公共区域像有荫凉的外部空间。此外,该区域是由透气墙和天窗共同组成的被动式设计。



该建筑形式的特点设计来源始于爪哇屋顶(源自印度尼西亚某地区的当地房屋屋顶),同时这也是居住者的梦想,因此我们根据空间的功能对其进行应用和改造。berunjung(传统爪哇房屋屋顶的术语,即高耸的屋顶)体量比例巨大,其下方是带有夹层的港湾式房间,也相当于是正面的服务区,而倾斜的屋顶则用于遮蔽露台和充当车库,以及用于突出房屋内部的屋顶。这种新颖的改造方式则加强了居住者分心的效果,大多数房屋的方向已随着下面的空间朝基卜拉面进行旋转,改变了原有形式特征,使其更加具有特色。




在使用传统爪哇房屋的屋顶(建筑外观以带有粘土砖的屋顶为主)的同时,我们也选择使用印度尼西亚社会所熟悉的粘土瓦屋顶材料,尤其考虑到周屋环境为旧定居点的情况下,那里通常都是粘土瓦材料制作而成的倾斜屋顶。我们努力将这栋建筑与周围环境融为一体,同时,通过使用当地的印度尼西亚屋顶,使其 更具特色,更加现代化,但仍然会让人回想起原始的形式。我们使用的其他一些熟悉的建筑材料有砖、水泥、天然石材和木材,然后我们继续将其延伸至房屋内部。



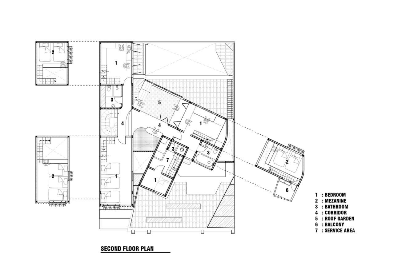
住宅的居民功能:此住宅旨在满足一个大家庭的聚会祈祷需要,可以同时容纳很多人。针对该问题,我们设置了一个与祈祷室直接相连的公共空间(家庭室、餐厅、开放式厨房)。因此,如果需要的话,祈祷室可以直接扩展到面向基卜拉的公共空间区域。该住宅内,会有7人常住,偶尔还有几十名大家庭成员,他们会经常在某些时间,比如周末、假期或特殊日子,在此留宿过夜。在这个不算太大的空间上,为上层的房间专门设计了一个夹层空间,以此来满足这些需求。这样一来,由于增加了垂直方向的空间,房屋就不会占据太大的地块空间。



居住者另一个需求是想争取在日常生活中将伊斯兰价值观得以实践,这包括:床垫的方向、至少脚不朝向基卜拉方向、厕所不朝向基卜拉方向即厕所中的清洁系统(该系统始终远离污物,并设有可直接向抽水马桶地面区域注水的排水道,从而保持抽水马桶区域中潜在污物的清洁度)。


















项目图纸

△基地示意图

△一层平面图

△二层平面图

△屋顶平面图

△剖面图

△立面图

△分析图

△分析图

△分析图
项目信息
建筑师: Ismail Solehudin Architecture
面积 : 420 m²
项目年份 : 2023
摄影师 :Mario Wibowo
厂家 : Boss, Kanmuri Roofing, Nippon Paint, Philips, Rucika
设计团队 : Radhian Dwiadhyasa
工程管理 : Ali Yazid Bustomi
现场管理 : Zainy Tamrin
造价师 : Devina Agustin
主承包商 : Muhammad Ihsan Hadiyat
总承包商 : Wani Build
结构工程师 : PT DESAIN PUTRA PERSADA
地点 : 印度尼西亚,Jakarta

BIM建筑网





评论前必须登录!
注册