
建设背景穆沟村地处里下河平原中部,坐落于江苏省盐城市益林镇。穆沟新村项目是对江苏省于2020年启动的“新型农村社区”建设的响应,以改善农民居住条件,解决乡村空心化的现象,建立新时期城乡一体化的关系。项目规划将穆沟村老村的建筑进行政府集中收储管理和新功能的植入,并在老村西侧250米处打造新村,进行回迁安置房的建设,一期外迁户共38户。


水乡地貌的延续新村的规划布局尊崇“最大程度保护地貌”的设计理念。穆沟村水系发达,村内水系、水田、水塘与村庄布局在相互关联和影响下逐渐形成老村聚落独特的湖荡地貌特征。新村结合现状湖荡将安置房分别嵌入,采用谨慎介入自然的改造,保留“水-田-村”一体化的地貌特征和原地貌的场景感。


水网组团状聚落肌理的延续穆沟新村采用类型化的空间组合模式,将五种不同户型,按照4户为一个院落组合,6-10户一个组团,以公共院落为中心组合布局,使之以组团状的形态自然生长,形成从单体-院落组合-组团-聚落的生长模式。



水乡风貌的延续穆沟新村是新型水乡聚落,是现代化的乡村,采用当代设计呈现传统语言,强调新老村之间的衔接。新村通过抽象几何实现对当地形式语言的现代转译,采用深灰色瓦屋面与泛白的青砖墙体形成线、面、体几何化的强烈对比,描绘出传统苏北水乡民居的神韵与意境。



总结新村的建设坚持新村落、新聚落、不离土、不离乡的原则,从民居形态-院落组合-组团-聚落肌理四个层面延续传统聚落的地貌特征、风貌特征、空间特征、尺度特征,使新村较好地融合于老村与自然之中,塑造村民熟悉的村庄环境,为苏北水乡地区广大农村新乡村聚落的设计实践做出了有意义的尝试。


项目图纸

△基地示意图

△总平面图

△建造前

△总体鸟瞰图

△总平面图

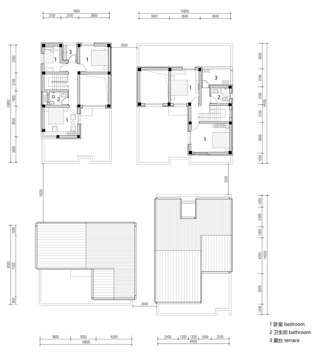
△平面图

△平面图

△立面图

△户型图

△立面图

△村庄立面图

△分析图

△分析图

△轴测图

△轴测图
项目信息
建筑师:南大设计院周凌工作室
面积 :5356m²
项目年份 :2021
摄影师 :侯博文
主创建筑师 :周凌
设计团队 :周凌、杨丹、夏子涵、方茗、张尊、周芳芳
结构设计 :张安、王健
景观设计 :张暄悦
施工方 :江苏晟功建设集团有限公司
地点 :盐城

BIM建筑网





评论前必须登录!
注册