前言
说起我们校园更新的故事,总是要从2018年思序受邀参与了云南玉溪生态实验小学的更新改造设计开始。从此,我们就与云南解开了不解之缘,在这个花开不败的彩云城市,开启众多教育产品的设计改造之旅——玉溪悦畔田园幼儿园便是玉溪改造系列项目中的一所。

作为玉溪市迎接建党一百周年和响应“十四五规划”城市更新战略的民生工程之一,本项目与云南省玉溪市第一幼儿园教育集团桂山园的更新改造相通,其阐明了对大拆大建的消解、儿童特征的释放与生态自然的渗透,诠释了教育建筑在城市闲置资产再利用实践中的全新意义。

重启
悦畔田园幼儿园的前身是玉溪市中心白龙路上一栋遗落建筑,该建筑原本的设想是作为一间徽派仿古民族风特色餐厅。在建筑主体结构完成之际因为各种因素的影响而被搁置,如今重启后被重新定义:改造为周边社区配套幼儿园。


改造面临着严峻的挑战,因现有建筑因为功能改变,欠缺很多幼儿园所需基本功能、交通流线人车混杂、严重缺乏幼儿活动场地… …经过为期三个月的设计打磨后,项目于2020年前动工,经历了漫长的守候与等待,2022年上半年建筑主体的修缮和加建完成。在2022年9月,“藏宝盒”迎来了她的第一批孩子们,开启了她作为教育建筑的新使命。

策略-关于加减法的重组游戏
这样一个外部形象颇为局限、内部空间中规中矩,普通甚至略显沉闷的建筑,如何改造成为一所富有特色、活泼、富有生机适合儿童的现代幼儿园呢?
策略1-减法寻找契合建筑的叙事主题
设计的第一步做的是减法。建筑结构不变动的基础上删除外立面繁复琐碎的细节,只保留其简洁的规整框架,然后再从这个原始建筑形态出发寻找契合的概念主题。建筑整体是全围合结构,呈现包裹遮掩的状态,像是一个正方体,结合内部规整的中庭空间看上去就更像是一个可以盛放物品的盒体,因此我们用“藏宝盒”来为这个幼儿园命名。打开“藏宝盒”、探秘“藏宝盒”,是这个园所为孩子们带来的故事。

策略2-加法一条廊道的嵌入
原有建筑的外立面和入口过于呆板,不符合幼儿园的特性。设计在不改动原建筑的基础上严控成本,策略是嵌入一条廊架,造型为柔美亲和的曲线形态。廊架格栅的包裹改善了原建筑外立面的呆板观感而变得生动有趣,充满活力和乐趣,使园所空间灵动且富有生机。
同时,曲线格栅顺势延伸将入口打开,形成形如喇叭的进口,以增强幼儿园导向性。柔滑的入口空间让小朋友产生亲切感,每天早上都开心入园。


策略3-补充多模块功能的加入
由于使用功能发生改变,现有建筑欠缺很多功能:标志性入口、多功能活动室、部分专业教室、供应用房、活动场地等等。设计从幼儿园本身所需功能全面补充。改造新增开敞式主入口大门增强幼儿园入口标志性;增加活动场地、多功能活动室、顶层加建将建筑在空间上联系起来,形成有序丰富的整体。

策略4-梳理从外部安全到内部自由
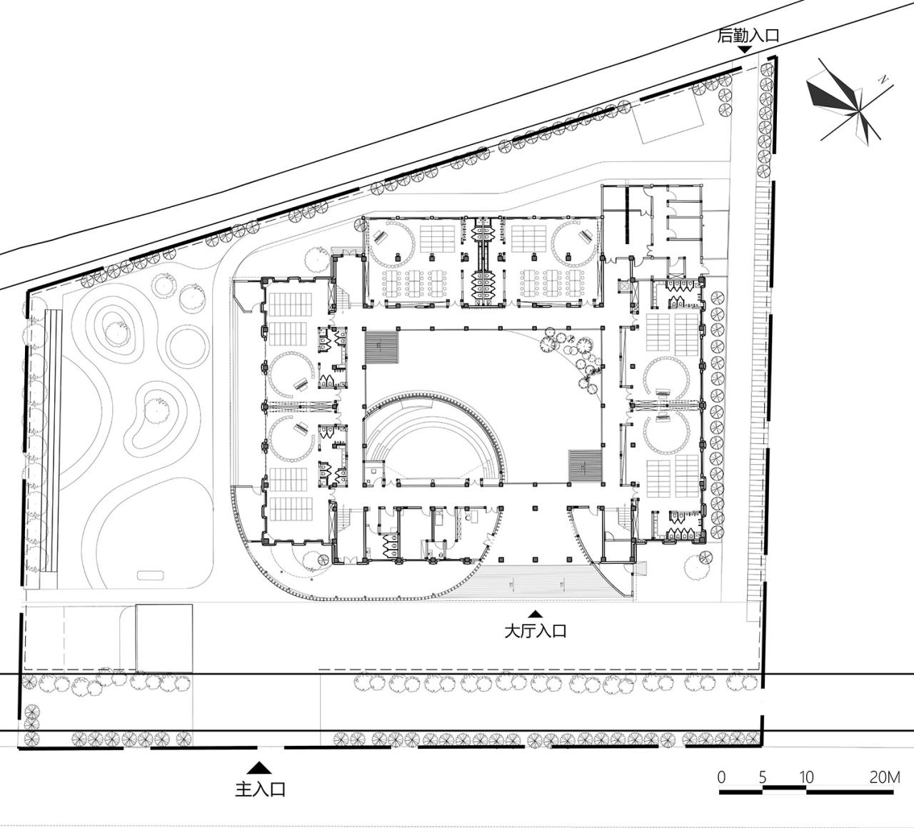
外部安全——人车分流、接送等候
改造后人车分流,外来车辆不进入园区,后勤车辆由北侧道路出入。人行主入口为接送及等候区域,家长可直接由路边停车处下车接送。车辆停留时间较长时,驶入西侧停车场停放,步行至出入口接送。


内部自由——丰富多彩的活动流线
西侧的室外活动场地设置微地形,高低错落之间设置有沙坑、草坡、戏水池等,让身体得到活动学习。孩子们身处绿意盎然之中,沿着流畅的弧线路径在室外庭院与内部中庭肆意奔跑。通过二层连廊与综合活动室屋面连通,扩展活动平台。


亲历
关于本园室内空间的设计改造,我们期望打造围绕自然、生态为主线的园所环境,将“阳光、风雨、虫鸣”等自然界元素作为园所最好的装饰,让孩子们能触摸四季、亲历万物、感受自然。校园由外至内犹如一个大大的“藏宝盒”,孩子们进入园所内就是“打开藏宝盒与季节嬉戏”。




室内空间保持自然光线的充足,每个教室都明亮与宽敞,整体氛围温暖舒适。所有墙体与柱网均采用圆弧倒角设计,以提供柔和的视觉体验并保证孩子们在运动过程中的安全。




设计风格依旧延续以纯净素雅的白色、木色为主色调,以留白去承载老师们教学过程中的装点。在细节处理上,选择对幼儿友好触感的建材,家具根据各年龄层儿童的身高订制尺寸,空间内所有的电源插座与开关的设计也都定位在儿童接触不到的高度。







寄语
随着城市更新深入民生,在幼儿园学位需求大量增加与园所布点严重不足的矛盾下,一些市区遗落功能的建筑开始被有条件的改造。我们通过对遗落空间进行修复和重组,将一栋与幼儿园风马牛不相及的建筑更新改造为了一个充满探索性趣味性的学习活动空间。
希望 “藏宝盒”能为当地的孩子带来愉快的成长体验。
希望每一所学校都能守护孩子们的童趣与纯真… …
希望每一个孩子都能在美丽的校园快乐成长… …


项目图纸

△一层平面图

△二层平面图

△三层平面图

△屋顶平面图

△立面图

△立面图

△立面图

△立面图

△原建筑轴测图

△改造后轴测图

△功能分区图

△功能分区图

△爆炸图

△爆炸图
项目信息
项目名称:云南玉溪悦畔田园幼儿园改造
项目位置:云南·玉溪
设计单位:上海思序建筑规划设计有限公司
主持设计:王涛
设计团队:陈立峰、曲海文、汤洁、虞芡、邵蕊
学校规模:12班幼儿园
设计内容:校园更新:建筑、景观、室内一体化升级改造
教学阶段:幼儿园
教学年龄:3-6岁学龄前儿童
总用地面积:5575.15㎡
总建筑面积:4051.54㎡
扩建建筑面积:1158.52㎡
修缮建筑面积:2893.02㎡
设计时间:2020.08-2020.10
建成时间:2022.05

BIM建筑网





评论前必须登录!
注册