
超大且真实:必游之地甜点银行社交媒体友好的“甜点银行SWEETS BANK”项目是一个以“城市超大会客厅”为概念的综合设施。其场地超大,并配以精心设计的桌、椅以表达“春华堂(Shunkado)”的企业口号:“我们希望人们在餐桌旁与家人共享甜点”。在这个属于社交媒体的时代,一张照片可以瞬间俘获人心,建筑本身的形象也可以成为媒介以吸引人们来到各个地区城市,并为他们创造可以发布到世界社区中的难忘体验。


真实与价值为了满足全球访客的期许,建筑师将桌椅放大 13 倍,以寻求别致的建筑设计质量和形式。建筑师相信以努力、真实地打造家具形态的建筑是创造价值的关键。这一理念也同时为其所在城镇及春华堂带来了好处:极大化了吸引力、最大地发挥了广告媒体的吸引力。最终的设计源起于对大楼如何长期对城市景观、企业活动建设做出贡献的讨论。由此,这个紧凑的场地中诞生了面向世界的建筑,并为游客们提供了令人兴奋、独一无二的体验。

超大家具+玻璃盒子建筑由两个主要元素构成:遮阳避雨的超大家具形雨棚、和打造舒适度的玻璃盒子。超大尺度的桌、椅的设计非常接近实际家具架构,并克服了结构、饰面、排水、机电方面的挑战,由此创造一个增强城市面貌、吸人眼球的“新现实”。在与家具形雨棚对比下, 玻璃盒子则有着抽象的设计、简洁的细节。


城市中的超大会客厅“超大会客厅”的概念使建筑成为标志性的场所:它既是一家人可以前往的目的地,也是可以邀请客人一坐的空间。为了让初次来访的游客可以轻松了解、熟悉这一空间,其内桌椅的设计都以春华堂咖啡馆、商店、及滨松市当地的岩田信用金库(Hamamatsu Iwata Shinkin Bank)图像为蓝图进行打造,并由此通过以社区为基础的综合建筑,以连接居民与游客,创造城市间的活力。



社交媒体影响力在建筑正式完工、并在疫情期间开张后,这一企业的社交媒体粉丝数量急剧增长,春华堂的“甜点银行”也成为滨松市面向游客的宣传视频中的一部分。







项目图纸

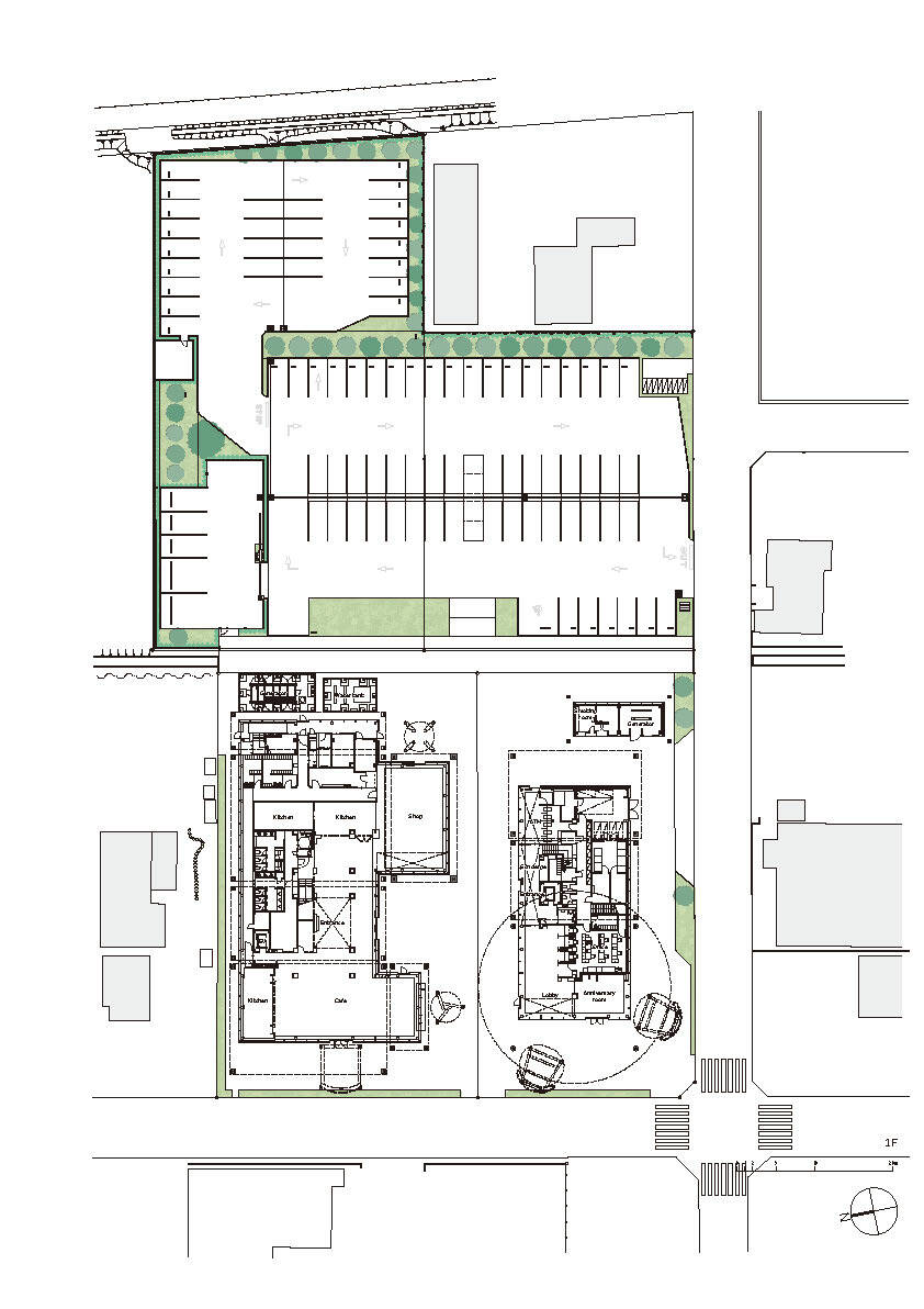
△总平面图

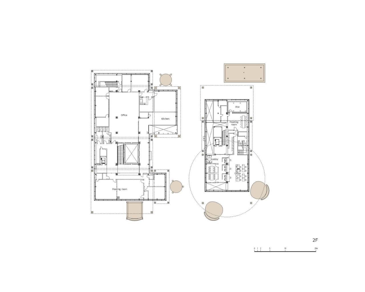
△二层平面图

△屋顶平面图

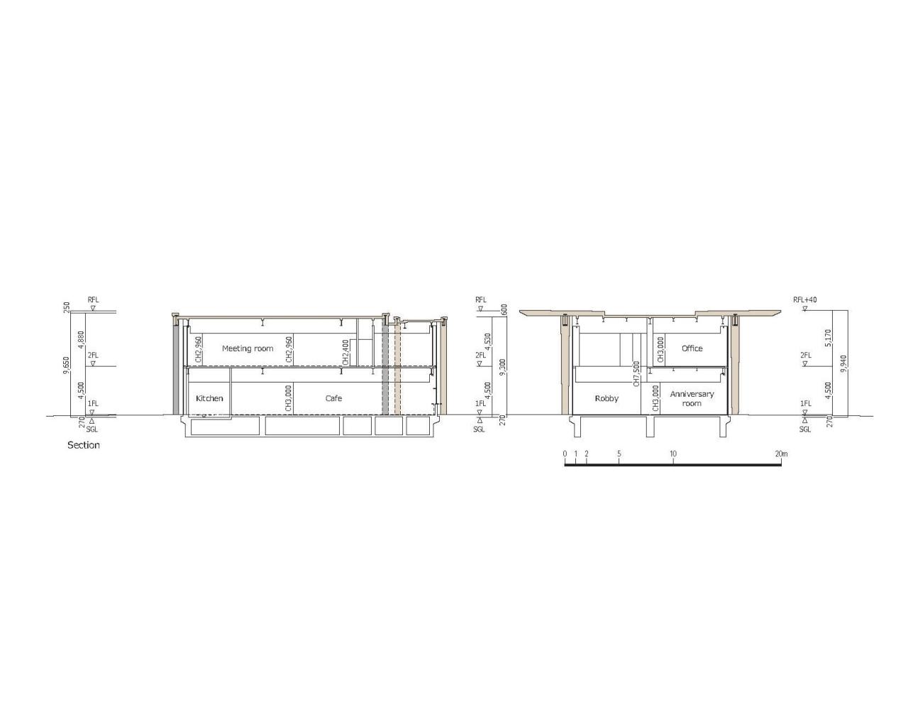
△剖面图
项目信息
建筑师: 日建设计
面积 : 2684 m²
项目年份 : 2020
摄影师 :Kenta Hasegawa, Shohei Nakai
业主 : 春华堂
建筑师 : 日建设计
室内设计 : 丹青社株式会社
地点 : 日本,浜松市

BIM建筑网





评论前必须登录!
注册