
位于中国深圳市罗湖区的一所公立中小学新建项目,依山层层退台,与山林融为一体。目前,越来越多的新建学校以“未来”为主题,日比野设计在考虑设计之前,会先思考对孩子们来说“未来”的意义是什么,面向“未来”,要在学校里学习怎样的知识。由此,以培养可持续社会基础的Education for Sustainable Development(可持续发展教育)目标与我们以往的理念不谋而合,现代社会需求的新式教育是引导学生能够独立面对自我,关心社会问题,实施自主的、对话交流式的深刻学习。作为学校环境来说,“未来”并非指一味地使用高科技设备,我们认为的“未来学校”,应该是目标朝向可持续社会,关注生活中与生产基础相关的低科技要素,有意识地了解地球环境影响因素等。我们尽可能多地把自然元素引入进学校环境,“以自然与交流为中心的多样化习场”作为设计概念,实现促进学生自主思考、能动学习的可持续性未来学校。


因占地限制要求,建筑需要切割部分山体,但我们不想把山夷为平地,而是选择结合山的形状,通过退台来实现学校由山而生的效果。切割山体而遗失的大树,通过倾斜的阶梯状建筑造型,得以重新移植在地上楼层的种植带上,并补充新的灌木植物。由于斜面处理,每个教室都能保证充足的阳光,从而方便打造自然的阳台。


学生们下课后的休息时间里,可以到班级专属的阳台上种花浇水、与隔壁班的朋友聊天、与上下层不同年级的校友交流。此外,宽敞的开放式走廊跳跃出了“走廊”的框架,与教室连为一体,成为新的学习场所,同时摆放了能自由组合的家具和书柜,跨越班级间隔,促进多样化的学习和身体活动。


我们利用建筑的台阶高差,制作了一个迷你水景,为体现水往低处流的自然现象。深圳是一个降雨较丰沛的城市,因此我们在操场设计时也和传统不同,将跑道贯通了建筑的一部分,做出建筑平台下的阴影空间,即使是雨天也可以完成小规模的户外活动课程。另外,切割山体而保留下来的部分岩石展示在学校最底层的阳台上,除了自然氛围的营造作用以外,岩石内部材质的外露,可以成为引发孩子们对地质学研究产生兴趣的契机。即使是地下楼层,利用与道路的标高,同样充分地满足了采光要求。



整个设计以可变的空间为主,不限定学习的场所和形式,同时将光、风、水、石、植物等自然元素点缀在学校的各个位置,任何场所都是学习行为发生的新时代“习场”。在这所未来学校的孩子们,能够从课堂的知识学习中延伸而出,自主地思考自我及社会的各种问题,达到实践能力的同步发展。设计从环境去促进能动性的学习方式及探究式的学习过程,以落实可持续发展的教育理念。




项目图纸

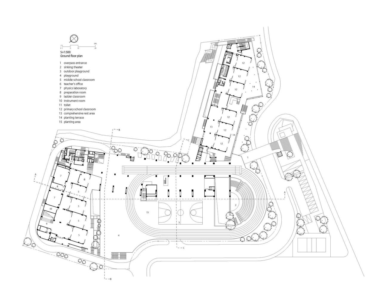
△平面图

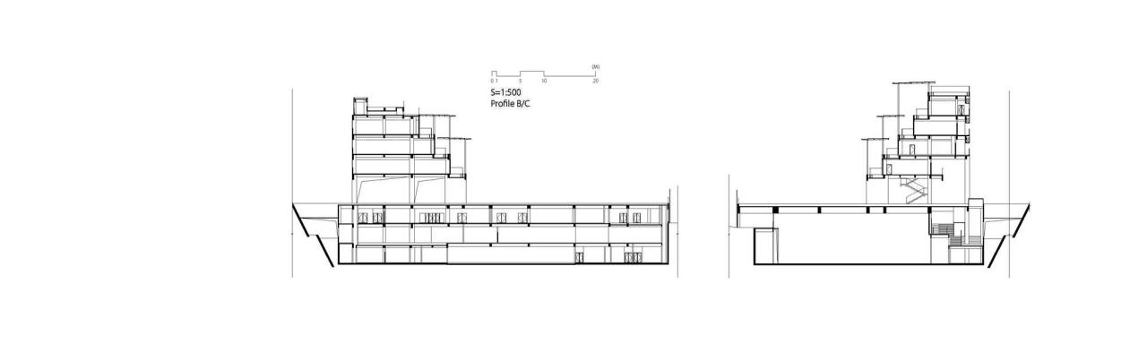
△剖面图

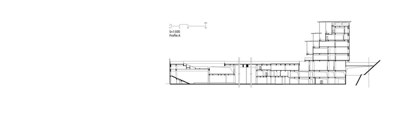
△剖面图
项目信息
建筑师:日比野设计,纯粹实践,幼児の城
面积 :42000m²
项目年份 :2021
摄影师 :Ivan Cho
建筑设计 :日比野設計, 幼儿的城
EPC :YICHUANG
施工监理单位 :华润(深圳)有限公司
地点 :深圳

BIM建筑网





评论前必须登录!
注册