23套钢结构疏散楼梯,钢结构一跑楼梯,两跑楼梯,三跑楼梯,双剪楼梯等,CAD大样详图DWG格式
资料目录

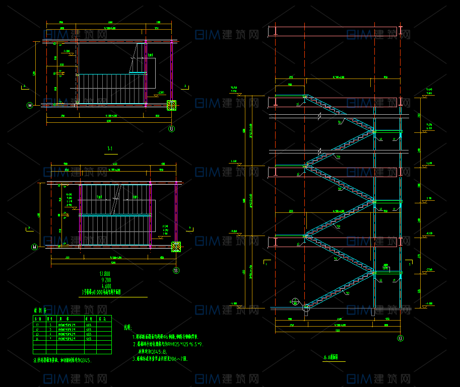
内容截图






资料目录-检索版
| 名称 | 大小 |
| +05钢梯 | |
| 001-钢结构框架图.dwg | 85.9 KB |
| 002-钢结构-爬梯大样.dwg | 41.4 KB |
| 003-钢结构楼梯.dwg | 389.0 KB |
| 004-钢爬梯.dwg | 34.9 KB |
| 005-弧形钢梯详图.dwg | 45.7 KB |
| 006-两跑楼梯图1.dwg | 96.4 KB |
| 007-简易钢楼梯做法详图.dwg | 35.9 KB |
| 008-两跑楼梯图2.dwg | 158.0 KB |
| 009-两跑楼梯图3.dwg | 132.0 KB |
| 010-两跑楼梯图4.dwg | 125.0 KB |
| 011-两折楼梯1.dwg | 111.0 KB |
| 012-两折楼梯2.dwg | 145.0 KB |
| 013-两折楼梯3.dwg | 107.0 KB |
| 014-两折楼梯4.dwg | 167.0 KB |
| 015-三跑楼梯图1.dwg | 166.0 KB |
| 016-三跑楼梯图2.dwg | 118.0 KB |
| 017-三跑楼梯图3.dwg | 90.7 KB |
| 018-三跑楼梯图4.dwg | 153.0 KB |
| 019-三折楼梯1.dwg | 139.0 KB |
| 020-三折楼梯2.dwg | 87.4 KB |
| 021-双剪1.dwg | 154.0 KB |
| 022-双剪2.dwg | 117.0 KB |
| 023-室外钢楼梯.dwg | 430.0 KB |

BIM建筑网





评论前必须登录!
注册