尧珈望瀑高端民宿酒店位于贵州省安顺市坡贡镇凡化村,项目所在地为天然喀斯特地貌,以山势险峻、云雾缭绕的秀美山川而闻名,酒店位于山顶,悬挂于崖壁,遥望山谷与云雾,同时拥有滴水滩瀑布及坝陵河大桥两处绝景。望瀑项目为原址改造提升,设计保留建筑主体框架,对空间、立面、景观等重新设计,发挥基地区位优势,将建筑与景观充分融合,创造出人文与自然交相辉映的画卷。

△建筑鸟瞰

△建筑鸟瞰

△建筑鸟瞰

△建筑人视
基地之探索 | 区位
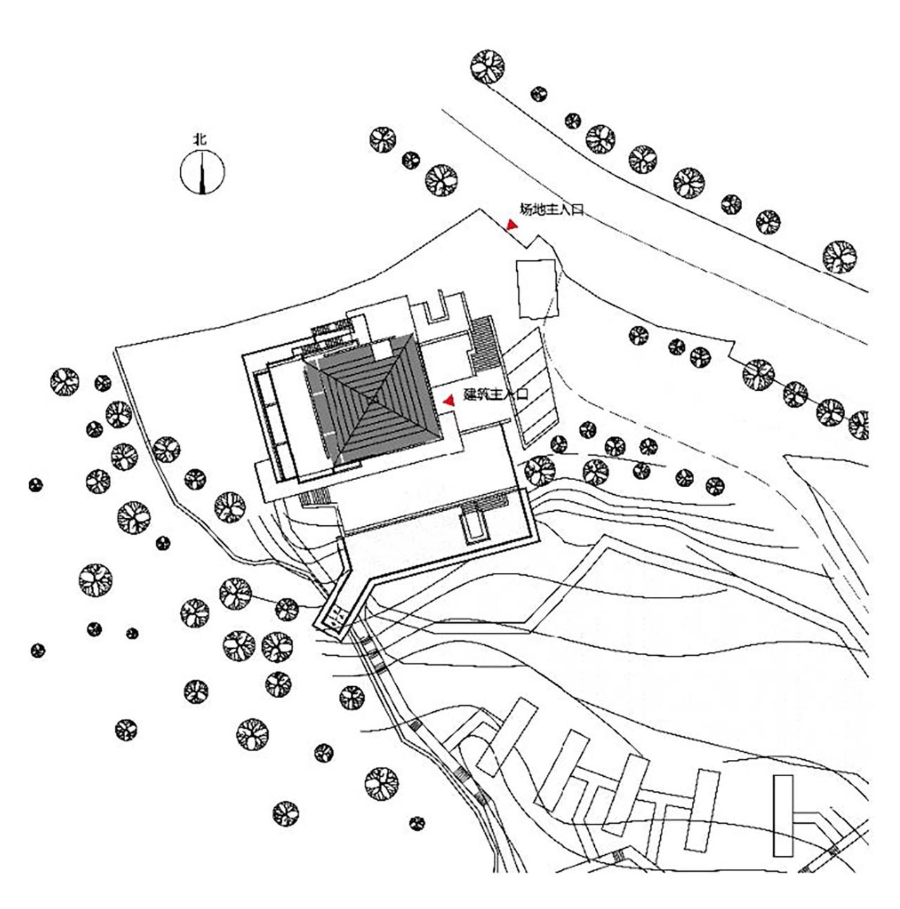
项目位于安顺黄果树旅游区白水镇坑边村,客田三组猫岩处,坐落于海拔1200米的悬崖边,遥望滴水滩瀑布与“国内第一,世界第六”的大跨径钢桁梁悬索桥——坝陵河大桥。

△场地航拍图

△滴水滩瀑布

△坝陵河大桥
新旧之延续|策略
原建筑是一栋三层自建房,建筑面积987.4㎡,空间形式及立面造型需重新设计来适应民宿酒店的需求。设计统筹考虑项目可行性及预算投资,保留原建筑主体框架结构,仅对空间形式及立面进行提升改造。此外,景观设计保留原始地形地貌,增加无边泳池与露营基地,完善了度假酒店的功能体验,带来多方位的景观视野。

△改造前原建筑

△改造后建筑
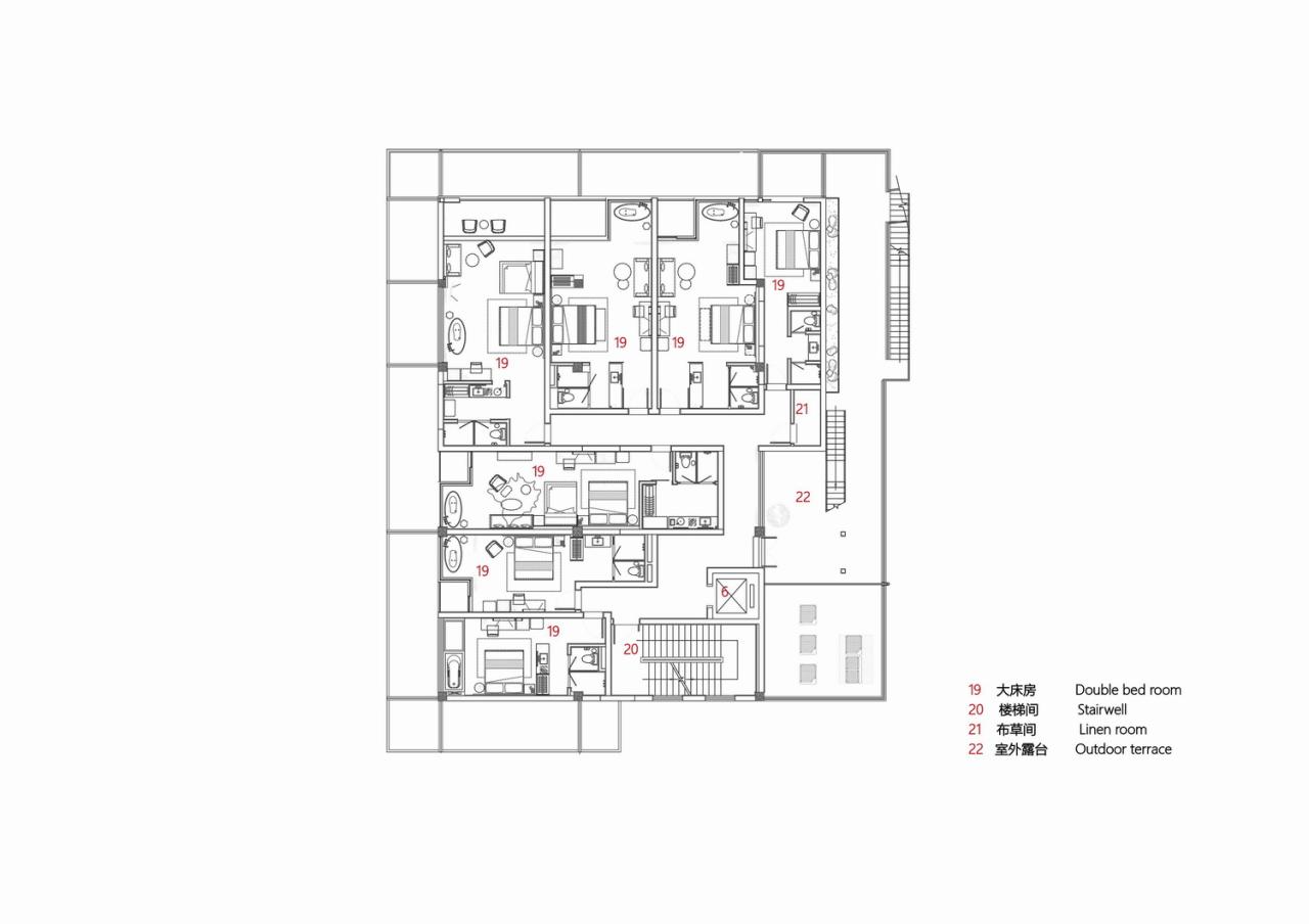
尧珈望瀑高端民宿酒店拥有标准客房 12 间,每间客房朝向及位置不同,拥有独立的景观视野及空间体验。建筑屋顶设置露台,满足度假聚会的场所需求,同时兼做观景平台。酒店设置无边泳池悬挑于山谷,高低落差超过百米,惊心动魄的泳池体验及绝佳的山谷、瀑布视野成为尧珈望瀑项目的标志性符号。

△改造后建筑
建筑立面以白色作为基调,与山川的葱郁及落日的暖阳形成对比,实现人文及自然的和谐统一。建筑主体设置大面积落地玻璃,增加建筑内部自然采光及通风,同时扩大民宿酒店的景观视野。蓝色泳池作为点睛之笔,为白色风格增加一抹跳动的视觉体验。

△改造后建筑
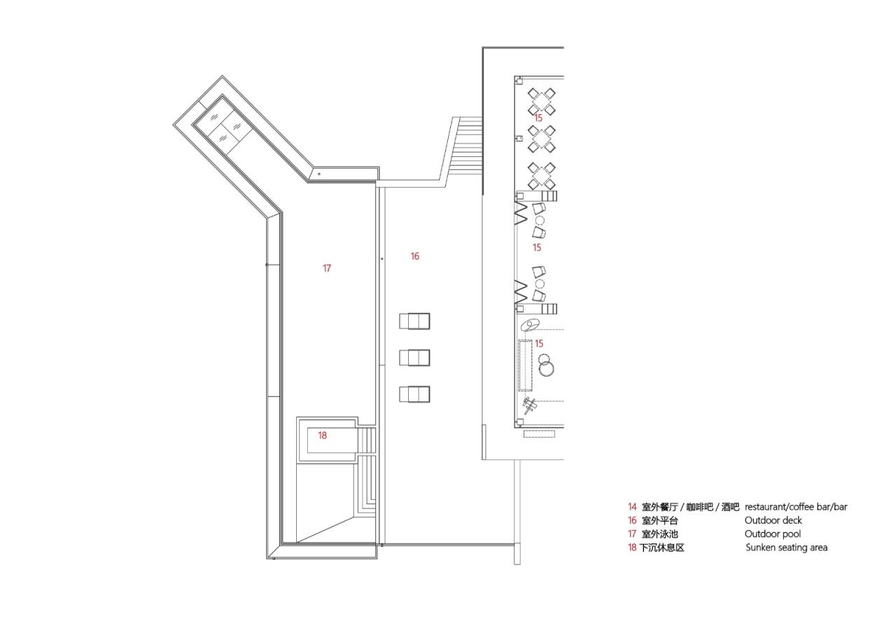
泳池底层架空,依山就势,匍匐于山崖边上,局部悬挑伸入山谷,给予建筑立面一丝趣味及挑战。

△建筑人视

△出挑的泳池

△悬挑而空的泳池
风格之营造 | 室内
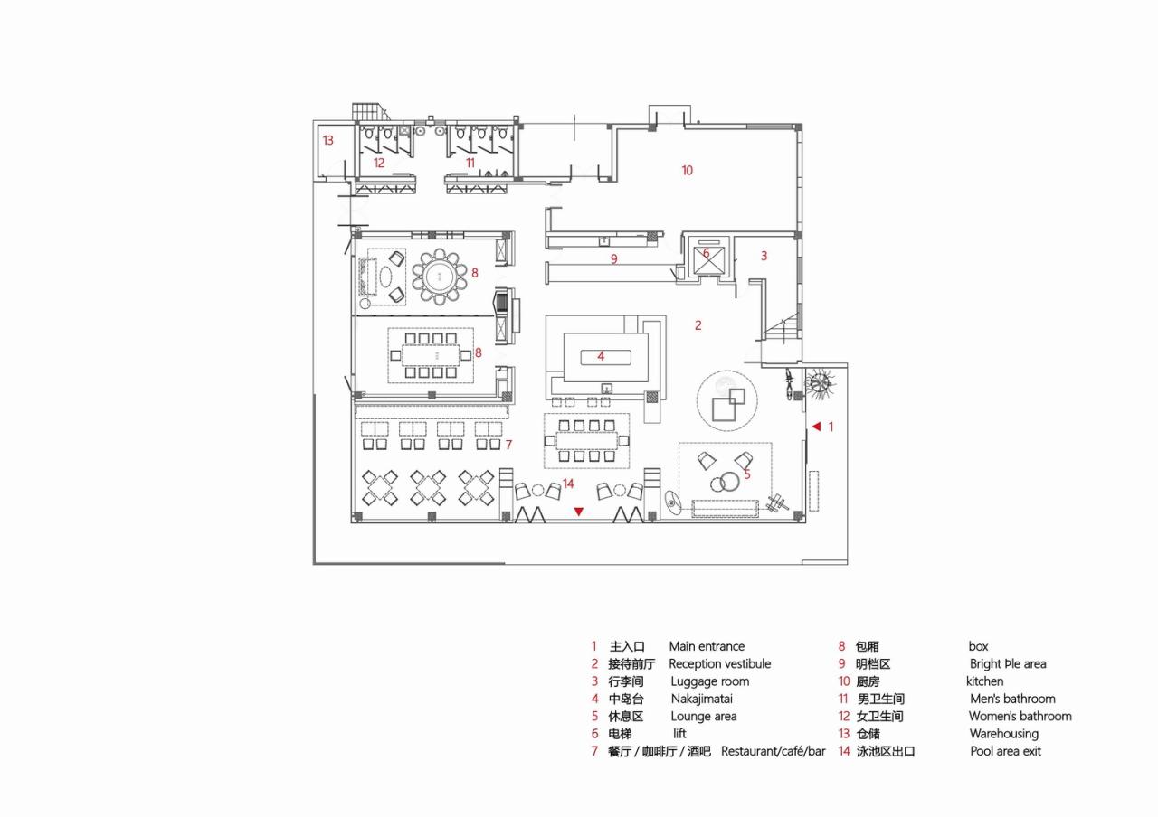
首层公共大堂融合了咖啡吧、景观餐厅、泳池酒吧等等多元功能,根据不同的经营时间、目标而灵活切换;室内整体色调希望与建筑外部过度自然,落地大玻璃的界面希望最大限度被忽略,室内设计甚至将大部分相面采用当地出产的天然化石石板来装饰,粗粝自然的山野气息让客人的视觉、触觉都能真切感受到这个民宿的在地性特色。

△咖啡吧

△景观餐厅

△景观餐厅
整个公共区域以中央吧台为中心向四周展开多元的服务,也保证了“主人”与“客人”之间最为直接的视线互动;两个独立包厢区域满足部分私密客群的活动需求。客房的室内设计素雅静谧,内部文化围绕黄果树瀑布景区风貌摄影为主题,每一个房间因为与室外景致的独特角度关系而对应个性化设计。

△大堂吧

△吧台上的绿色点缀

△公共休息区内景

△公共休息区内景
客房功能齐全,每一个户型的房间都放置了榻榻米与浴缸,两处都采用了落地大窗的方式,在林中沐浴,在生机盎然的绿色中品尝茶意的芬芳,阳光透过玻璃窗肆意的洒满房间,让温暖渗透进房间每一个角落,漫延到人们的心扉。

△客房内景

△客房内景

△客房内景

△客房内景
人文融合自然 | 景观
由于建筑的设计是在广袤的喀斯特地貌中一种轻盈、诗意的理念呈现,景观的设计则是将建筑与周边的地貌更为自然密切地衔接起来,首先通过石砌围墙、竹林和门头将望瀑民宿和门前的国道之间的视线进行半遮挡;进入的第一个院子以无边的喀斯特山峦远景吸引客人,但还不能一下全部看到民宿全景;通过景观地形楼梯拾阶而下,视线逐渐打开,无边际泳池与壮丽的的远景气象水天一色,视觉效果令人惊叹不已;整体景观设计延续建筑风格语言,极简与有机自然元素相结合。

△周边环境

△周边环境

△坝陵河大桥
项目图纸

△总平面图

△一层平面图

△室外平面图

△二层平面图

△三层平面图

△屋顶平面图

△剖面图

△立面图

△立面图
项目信息
项目名称:尧珈•望瀑 高端民宿酒店
地点:中国 贵州 安顺
阶段:已建成
功能:高端民宿酒店 大堂吧 餐厅 书吧 屋顶花园 泳池 活动室 露营基地
建筑面积:1190㎡
设计团队:上海尧舜建筑设计有限公司
建设单位:贵州望瀑酒店管理有限公司
主持建筑师:郭水尧 刘杰
方案主创:刘洋 王杨杨
建筑:刘洋
结构:黄晓欢
给排水:陈庆彪
电气:潘祥亮
暖通:潘杰
室内:史新华 周哲 张贤君
景观:史新华
摄影师:郭水尧 张埼

BIM建筑网





评论前必须登录!
注册