
“一所学校”的设计方案以推动实现 3 至 18 岁儿童多元互动的教育场景。横滨国际学校是世界上第二所在其名称中使用“国际”一词的学校。该校最初成立于 1924 年,采用男女同校的教学设置,拥有来自 54 个国家的大约 750 名学生,以及 120 多名教职员工,涵盖从幼儿到 12 年级的教育阶段。



原校舍位于山手历史街区的黄金地段,靠近横滨中区的港景公园。然而,学校的各类设施却分散于各个居民区,且无法容纳日益增长的入学人数。因此,学校董事会决定在就近的本牧区购置新地并建造新校舍,以将学校迁往该地区来满足其不断增长的需求。新校舍基础设施的设计方案来自从多家事务所提交的众多方案中脱颖而出的著名隈研吾建筑设计事务所,大成建设则赢得了之后的执行设计建造竞赛。


全新的基础设施设计将所有校舍集中在一个地点,使所有年龄段的孩子、教师和家长能在同一片屋檐下进行互动。新校舍被设计成“一所学校”,是一个拥有室内和室外教育空间的综合体,以推动国际文凭教育项目所提供探索式学习项目的多样性,继而给终身学习者创造全球视野。


富有表现力的外部木板:学校的新标志。项目独特的外观设计包括四坡屋顶、大屋檐、连接两座建筑的桥梁以及随意分段并略微倾斜的外部木板。这些元素使新校舍能毫不费力地融入周围的住宅街区,并将过去分散的教育设施整合为一体。外部木板采用了经过防腐剂和白蚁驱避剂处理的 15 毫米厚雪松木板,其在被涂漆后就固定于 ALC 外墙的外侧钢架上,可根据阳光角度呈现出多种表达。




一个拥有多元舒适区以鼓励学习自由的地方。教室前的走廊等共享区域被设计成宽敞的“开放式枢纽”,将教室联通,以促进各种教学方法的实践,并同时满足小组协作和自主学习等日常活动场景,这些都是学生能够以自身方式来使用的多样化空间,继而满足他们的需求并具备舒适性。


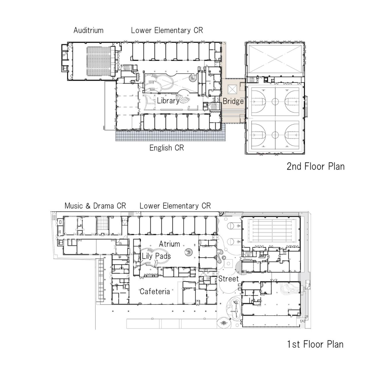
北楼中心是一个阳光明媚的中庭,有一个名为“睡莲叶”的标志性巨型楼梯。“睡莲叶”还设有面向广阔中庭的图书馆书架- 顺着楼梯一直延伸到二楼- 学生可以沿着这些楼梯随意阅读或学习。此外,该“睡莲叶”还可用作学校的活动场所,例如讲座和艺术表演的舞台、学生汇报或展示所学知识的区域、以及孩子们在课间休息时的玩耍乐园。




木材的大量使用以营造舒适温馨的空间,继而激发创意。新校舍内外均采用了木质饰面,如外部木板、木甲板、图书馆和其他区域的天花板木百叶窗、以及室内落叶松墙等,以打造舒适温暖的校园环境,继而激发孩子们的创造力。













项目信息

△基地示意图
、
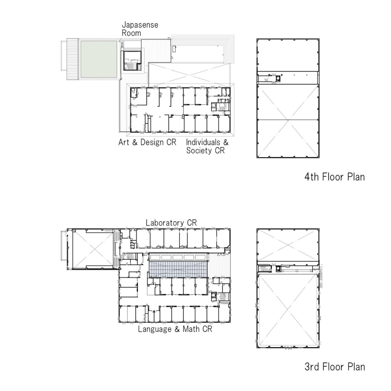
△平面图

△平面图

△立面图

△剖面图

△剖面细节图
项目信息
建筑师:隈研吾建筑都市设计事务所,大成建设
面积 :14865m²
项目年份 :2021
摄影师 :Masaki Hamada (kkpo)
厂家 : ABE KOGYO,Showa Yotal,Toto
隈研吾建筑都市设计事务所设计团队 :Kengo Kuma, Kazuyo Nishida, Rintaro Yoshida, Byunghwa Kim, Miguel Rebelo Souza, Shiho Yoo
大成建设设计团队 :Hideto Koshiishi, Kota Santo, Yoshiyuki Kawai, Yuko Matsuura, Mayuko Okada, Junji Kubo, Morihisa Takashima, Yumiko Yamashita
大成建设结构工程师 :Kohei Shimamura, Yumiko Yamazaki,
大成建设机械、电气、管道工程师 :Jun Takagi, Hirokazu Ozawa, Shunsuke Irie, Yuya Kotera
地点 :日本,横滨市

BIM建筑网





评论前必须登录!
注册