
井字屋坐落在一片布满灌木蒿、苦草丛和刺柏的地块上,曾在这里的森林因二十年前的野火而消失。随着高地沙漠的干旱土地向茂盛植被过渡,远处可以看到黄松林。我们位于本德,一个小城市(在俄勒冈州波特兰东南方向 257 公里处)。这是一个深受户外爱好者喜爱的地方,它位于步道、德舒特河和镜湖、附近的喀斯喀特湖、以及巴奇勒山滑雪场和喀斯喀特 山脉的滑雪坡的近旁。这个地方享有一览无余的白雪覆盖的三姐妹山山峰和德舒特国家森林的美景。

客户和他们的简介多年来,客户麦克和凯瑟琳一直在考虑搬离他们在旧金山的家——也是由 Mork-Ulnes 在 2011 年设计的,以便让他们年幼的孩子享受更多以户外为中心的生活。对于那些看似从旧金山和美国其他大城市迁出的家庭来说,这并不是一个偏僻的选择,而这种迁移在新冠大流行之前就开始了,现在正达到高峰。这对来自英国和德克萨斯州的夫妇在技术上很前卫。2016 年左右,他们在俄勒冈州本德购买了一块土地,正是因为被当地的气候所吸引——典型的高地沙漠,夏季干旱,冬季多雪,夜晚凉爽,白天晴朗,同时也被可以开展丰富户外活动的湖泊、山脉、步道和沙漠等多样化的地形所吸引。
客户对他们的新家有几个要求,特别是希望它能在环保方面有所进步,并在吸纳沙漠景观的同时提供高度的灵活性。他们需要两间卧室供自己和孩子使用,两间客房供经常来访的客人和国外的家人使用;此外,为了在紧张的预算下优化面积,他们需要灵活的空间来满足灵活的用途——客房/办公室、外部庭院/户外活动室、车库/室内活动室。


施工方法正交胶合木结构是一种低废料和高效率的施工方法,所有材料都在场外预先切割,使建筑废料可以在工厂被负责任地回收。井字屋的所有正交胶合木板都是由可持续采伐的可持续林业倡议/产销监管链认证种植的木材制成的,在蒙大拿州的一家工厂使用低挥发性有机化合物粘合剂进行胶合和层压。 由于其正交胶合木结构,该项目的墙体预计有 25 吨的隐含碳,并预计避免了 15 公吨的温室气体排放。

房屋的内墙几乎全部是由松木、云杉和冷杉制成的正交胶合木,并进行了自然油饰处理(除了使用瓷砖的卫生间湿区),从而获得了良好的空气和声学质量。烧杉板——一种烧过的雪松木,具有防水、防腐、防虫、防火的特性,这种材料被用在外墙,随着时间的推移几乎不需要维护。

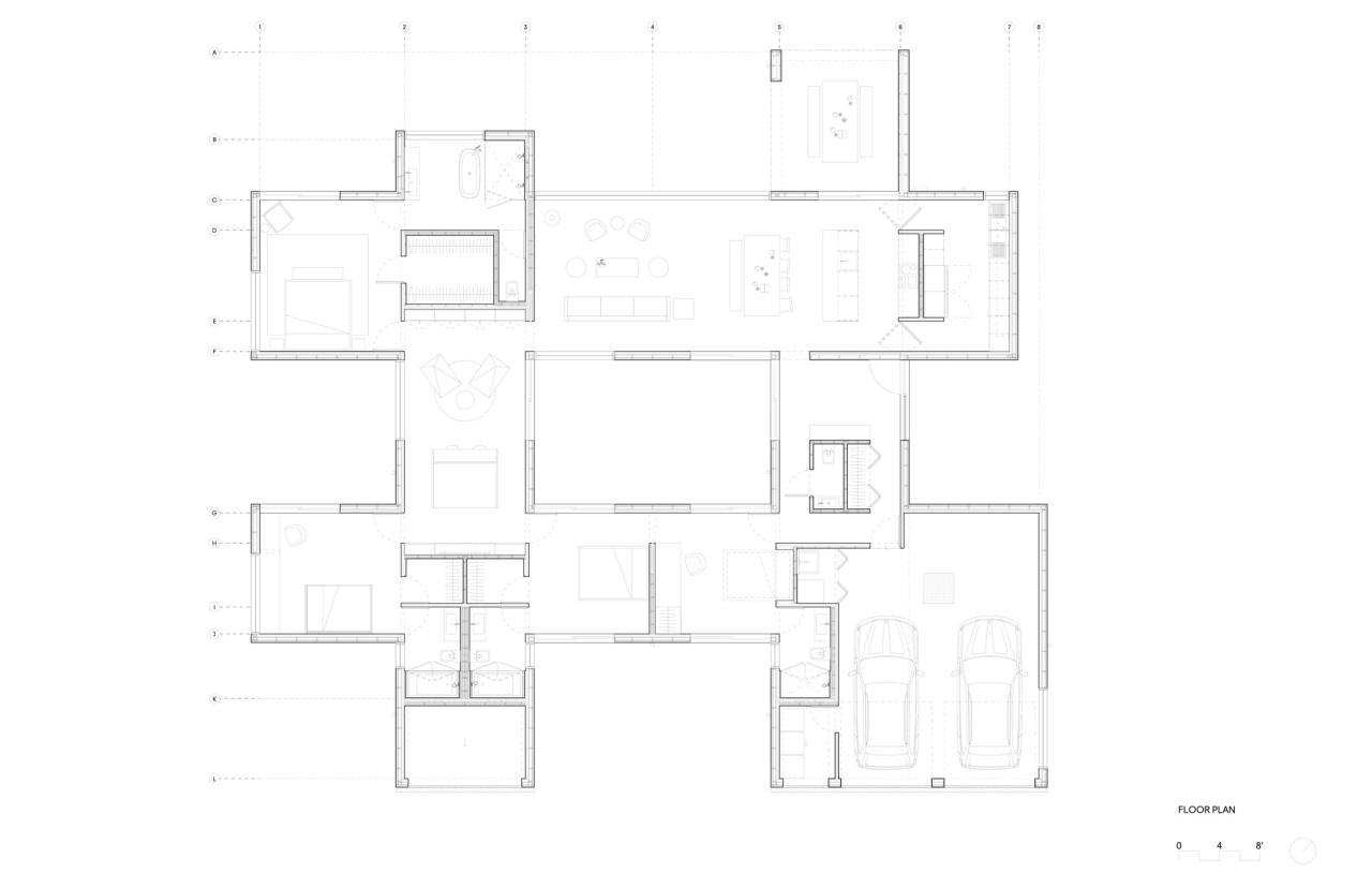
设计理念这座单层住宅占地 3340 平方英尺(310 平方米),呈现出一个巧妙的平面布局。四个相交的屋顶横杆将平面划分为公共和私人区域,建筑中心有一个完全封闭的庭院,周边有七个半封闭的庭院,将光线和空气引入每个房间。


从平面上看,这栋房屋由一个简单的矩形网格构造而成,网格决定了房间和庭院的大小。这里没有走廊,而是一系列彼此相连的房间,居住者可以在中央庭院走动,或者在门打开时穿过庭院。
纵横交错的平面设计也有利于交叉通风的空气流动,以缓解夏日的炎热。此外,它还整合了可操作的隐蔽式遮阳板,以保护朝南的房间免受俄勒冈州高地沙漠太阳的强烈照射。

内部装修室内设计的灵感来自于 Donald Judd 在德克萨斯州马尔法的 Chinati 基金会,土灰色调和雕塑般的形式塑造了这个空间。装修的配色旨在引入自然的沙漠景观。简洁的几何形状的羊毛和毛毡家具与天然皮革和木材混合在一起。
Mork-Ulnes 联系了经常合作的木制家具艺术家 YvonneMouser ,为主客厅创制了一个独特的咖啡桌,其灵感来自于从客厅沙发可看到的 "三姐妹"火山峰。她设计了一张由三块链锯锯开的花旗松组成的桌子,以喷灯上漆,三块花旗松木如同地质断层一般穿透灰色的玻璃桌面。


空间布局这间房屋是由一系列采光充足的空间构成的——入口、厨房和客厅、卧室、休闲区,这些空间通过精心的安排都可以瞥见中央庭院,提供充足的天空和周围沙漠的景观,在寒冷的月份,沙漠会被白雪覆盖。非典型的空间构造创造出一种令人愉快的与周围环境的连结。岩石构造、本地灌木和围绕着住宅的灌木丛,进一步将住宅与它粗粝的所在地融为一体。
受周围景观的色调和质感的启发,这座房屋调和成了周围高地沙漠的柔和的色调。外侧,烧杉板的壁板呈现出柔和的灰白色。内部空间几乎完全是同质的、光滑的由松木、云杉和冷杉制成的正交胶合木板,创造出一种亲密和舒适的感觉。这间房子最引人注目的,但也最转瞬即逝的品质是非物质的自由感。

中央和周边的庭院框出天空的轮廓,同时为室内带来充足的自然光线并提供极佳的通风。在春、夏、秋三季,起居室扩展到庭院里。当推拉门打开时,这栋房子是完全通透的,充满了从外面传来的不间断的气味和声音。在冬季,被动式的供暖穿过落地窗,虽然这栋住宅与周围环境隔绝,但它强化了一种身处室内也仿佛置身户外的感觉。


项目图纸

△总平面图

△一层平面图

△剖面图

△剖面图

△立面图

△立面图

△立面图

△立面图

△细部大样图

△分析图

△分析图
项目信息
建筑师:Mork-Ulnes Architects
面积 :310m²
项目年份 :2022
摄影师 :Jeremy Bittermann
厂家 : Duravit,Hansgrohe,Harvest Moon Woodworks,Jeld Wen,Rais,SmartLam
项目团队 :Casper Mork-Ulnes, Lexie Mork-Ulnes, Greg Ladigin, Phi Van Phan
室内设计 :Lexie Mork-Ulnes
主承包商 :Forest City Made
景观建筑师 :Strata Landscape Architecture
结构工程师 :Eclipse Engineering
地点 :美国,Bend

BIM建筑网





评论前必须登录!
注册