
大南坡村隶属河南省焦作市修武县西村乡,距离焦作市区50公里,位于云台山风景名胜区浅山区范围内。云台山风景秀美,每年接待游客数百万人次,且连年增长。虽然地理区位靠近景区,但大南坡村民经济支撑仍然以务农及外出务工为主。上世纪七八十年代,本村因煤矿产业开发曾兴建了一批公共建筑,如今大多数已闲置。场域建筑接受委托,对一组保留比较完成的八十年代砖木结构建筑群——原大队部旧址建筑群进行了改造。


原大队部建筑群由地形高差不同的三组院落组成。居中的院落为主院,旁边的下沉院与主院之间有一层高差,高台院约比主院地坪高约一米。改造完成后的建筑群,将具备吸引外来访客的多个功能空间。如展示本地风物的大南坡艺术中心,销售本地土特产及艺术商品的碧山工销社,供外来访客就餐的家宴餐厅,特别针对本村居民提供了服务村民的社区营造空间,供当地“怀梆戏”艺术团成员和爱好者准备的排练室及戏台,和欢迎所有人的阅读、学习及交往空间——方所乡村文化。



在本次改造前,大队部建筑群已荒废破败多年。要保留、修缮并尽量维持原有建筑形象、保持建筑群体院落布局不变,不仅对设计上如何安置新的使用功能构成挑战,还需要克服建设成本增加,面对常常听到的“比拆了新建还要更贵、更花时间是为了什么?”的质疑。希望这次各方共识和努力达成的设计成果,可以有说服力地证明,并非只有一种单一的城市审美趣味。不同时期和地域的建筑都有可能是美的。适当的保留老建筑,而不是简单粗暴的整拆整建,从资源利用到延续乡村建筑的文化都用重要的意义。




事实上,原有大队部典型的“七八十年代政府单位式样”布局,改造前那些充满距离感、空阔的建筑门前“类广场”空间、大门、围墙和对称的轴线空间,仅做些微小调整,比如拆除院墙,将广场向街道敞开,便可以转变为亲民的、对所有人开放、自由步入的公共场所。以此空间骨架为基础,景观设计利用原有的树木和建筑的出入口关系,调整公共空间和户外家具细节,加强和完善了从广场到建筑之间的过渡空间。



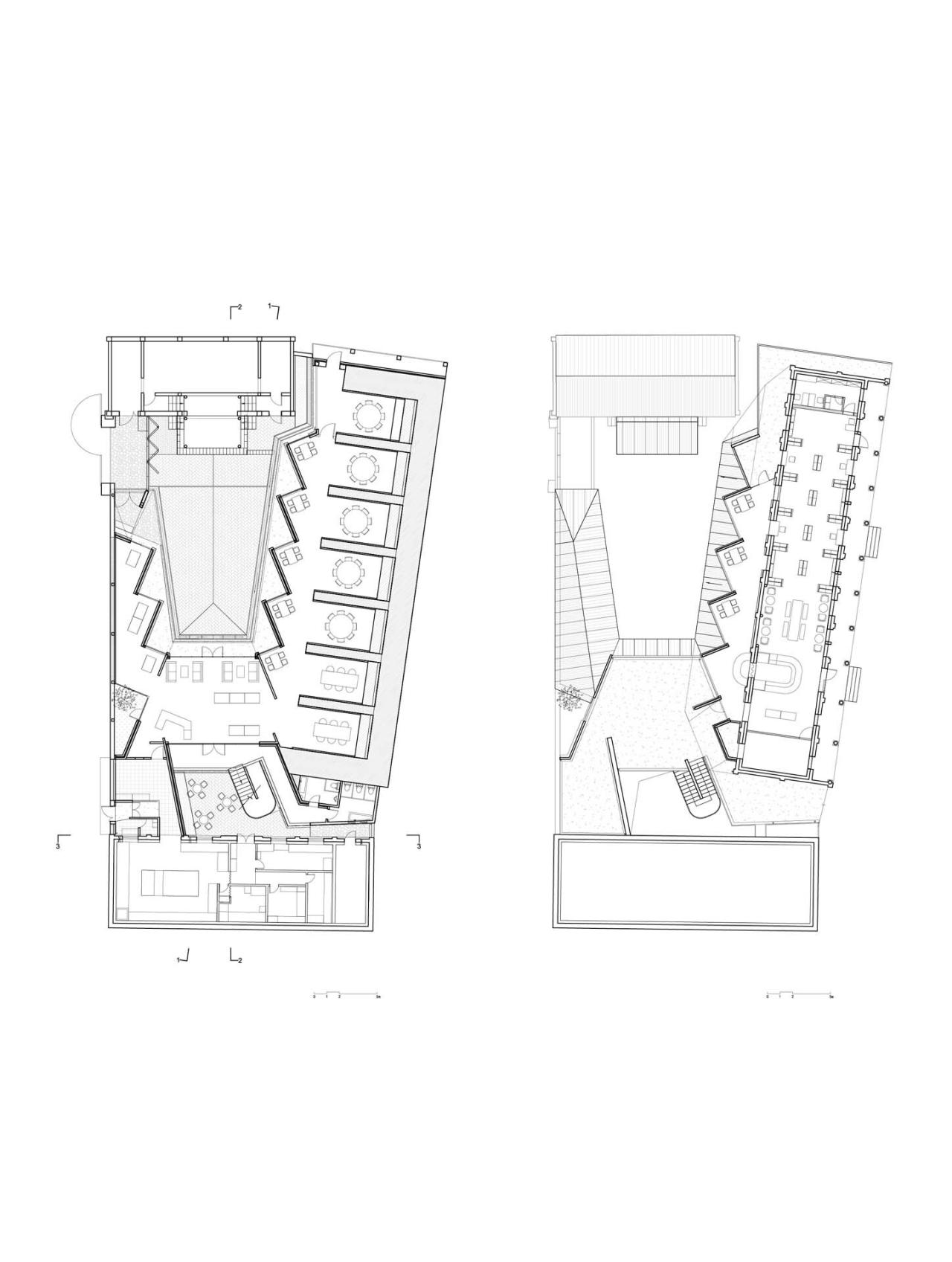
这种过渡空间的强化,对于整体空间里不同功能的分布、交通动线的组织起了承接与转换的作用。比如从街道和广场上,人流最容易被导入的是方所乡村文化空间。改造完成的方所乡村文化处于中心位置,并自然成为几个建筑之间的交通联系枢纽,原先与主院仅有一部户外楼梯作为垂直交通的下沉院,通过新建的餐厅平台及连廊,有效串联了书店咖啡厅、工销社、餐厅及艺术展厅,增加了整体建筑群的可达性。




下沉院的餐厅主体由石拱修车库、村卫生所及老院墙围合成的狭长院落组成。新建的餐厅空间将原有的院落一分二调和成两个尺度更协调独立庭院,一个用于组织垂直交通和后勤的内庭院,另一个作为公共活动的中心庭院。七个旧石拱被改造成了七个不同的包间,而餐厅临庭院的座位都设有面向中心庭院的落地窗,折墙的设计保证每个餐桌都能直面庭院里的戏台,同时能兼顾私密性。新建的戏台作为大南坡本村的怀梆戏艺术团的活动和表演场所,背后的村卫生所旧址则改造成了排练室,兼做一些日常传播怀梆戏文化和展览空间。餐厅的屋顶露台,则作为二层联通方所乡村文化的交通平台,和局部延伸的阅读休息区,串联了多个空间。



另一处新建的空间是位于艺术中心前后两排展厅联系通道的茶室。作为空间提示,建造完成的茶室成为隐藏在后排不可见的第二展厅新的“可见的入口”。茶室不仅仅是展览的过渡与休憩区域,同时也作为展示功能的伸延,其室内外空间,均可作为各种临时展览场地。茶室建筑将场地划分为数个不同的户外庭院空间。居中的一处留给了场地内现存的两棵挺拔的杨树,一大一小两个茶室之间的垂直天井将其围合。在水平方向上,则形成一条通长的视觉通廊,将远处的山景框入建筑之中。




目前,项目的建设已完成,并陆续投入使用中。希望以此空间生产为契机,带动大南坡乡村文化的发展,形成本地村民与外来访客共同使用、生机勃勃的公共建筑群。










原始建筑






项目图纸

△模型图

△模型图

△模型图

△轴侧图

△总平面图

△一层平面图

△二层、三层平面图
项目信息
建筑师:场域建筑
面积 : 2038 m²
项目年份 : 2021
摄影师:Rui Zhu
主创建筑师:梁井宇、叶思宇、周源
设计团队:梁井宇、叶思宇、周源、吴璇旋、闫明永
总策划:左靖工作室
委托方:修武县美尚文化旅游投资有限公司
地点:焦作市

BIM建筑网





评论前必须登录!
注册