
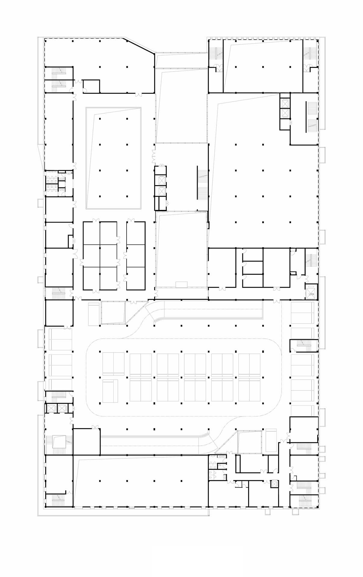
院落微城市民中心的前身原是一座钢结构单层厂房,其结构由六跨钢排架组成,我们保留了原结构柱,开挖院落,划分空间,形成不同的功能组团。这些组团包含了便民服务、企业服务、文化展示、图书馆、小剧场及办公等功能,它们围绕着各自的院落,构成一座微型的城市。


朝向天空的院子院子作为各组团之间过渡的灰色空间,为使用者供给自然的景观和流动的空气。每个院落都有自己的故事和形态,由北至南分别营造清溪何处、胜日寻芳、九州清宴、潮平野阔、枯木逢春五处庭院。植物环绕期间,春天丁香吐芳,夏天紫薇争艳,秋天红枫峥嵘,冬天青竹披雪。旭光苍穹、和风细雨、玉英碧树、花香叶气,糅合风光雨雪、花石草木,构成了不同的氛围基调,它们朝向天空,祥和平静,引人遐思。



洄游走廊串联院落和房间的走廊形似“抄手游廊”,沟通着公共区域、内部办公区和室外空间。我们打破双面布房的传统结构,去掉部分房间,形成与院落联系的露台或檐下空间,使室内外过渡更为柔和,人们行走期间,可感受不同形态、不同明度的空间的穿插交叠。


光之庭我们充分利用庭院和天窗为室内空间赋予自然光线,在入口大厅和办事大厅,让天光慢慢洒落,塑造静谧和谐的气氛;在走廊的转折处,引入自然之景,借自然之光,营造空间的幽明变化。


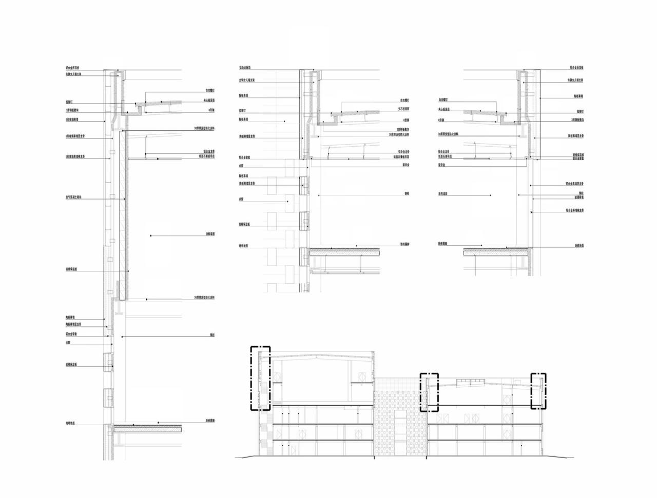
技术问题的解决管综为了维持原厂房建筑高度不变,又保证四层的空间容量和室内净高(首二层3.6m,三四层4.2m),我们通过布置精密的管道综合,结合三维建模,可视化的处理了钢梁穿洞、管线穿梁和主管分流等问题,大面积存在的净高不足问题终于得以解决。

△分析图


空中庭院为了保证人们可以从室内舒适的进入庭院,需要将庭院所在区域降板600mm之多,这致使本就层高紧张的下部空间更为捉襟见肘,故而,我们将主要空中庭院布置在可以允许大幅度降低层高的车库之上,同时利用600的降板高度作为种植土厚度,以满足植物栽植的基本覆土条件。



外墙处理建筑外立面采用干挂幕墙体系,为了减少龙骨耗材,我们采用300*900的模数对缝布置,仅在小窗矩阵的区域采用300模数错缝,以满足300*600尺寸的小窗洞口条件。



此外,暖通专业提资的大量进排风口和排烟口,很大程度上影响力立面美感,除了尽量改变路由改至屋顶外,不宜改动的,我们采用陶棍百叶的方式,使风口形式与幕墙融为一体。











项目图纸

△总平面图

△一层平面图

△二层平面图

△三层平面图

△四层平面图

△立面图

△立面图

△立面图

△立面图

△剖面图

△剖面图

△局部大样图

△剖透视

△剖透视

△剖透视

△分析图

△局部大样图
项目信息
建筑师: 意度建筑
面积 : 22767 m²
项目年份 : 2022
摄影师 :Weiqi Jin
厂家 : Beijing Chaoling Construction Engineering Co., Ltd, Hebei Shahe Longlong u Glass Factory, Tianjin Fudi Building Materials Products Co., Ltd
主创建筑师 : 谌喜民
设计团队 : 谌喜民 、李传琛、陈杉杉、张旭
结构设计 : 孟庆强
景观设计 : 意度建筑
施工方 : 中航建设集团有限公司
合作方 : 华诚博远技术工程集团有限公司
幕墙顾问 : 北京超凌建筑工程有限公司
委托方 : 北京潞城建设开发有限公司
地点 : 北京

BIM建筑网





评论前必须登录!
注册