
东财工业园是深圳典型的城市工厂园区,行列、高效、同质、粗放、干燥。伴随着城市圈的扩大和城市工业向更远的城郊或其他城市转移,园区内的物业权属和产业类型在不断的更新中变得零散多样而复杂。坐落在这里的 SMOORE 总部在过去几年的改造中逐步形成了围合式主园区,对角线建筑改造的 7#8#楼被城市基础设施分隔在主园外。

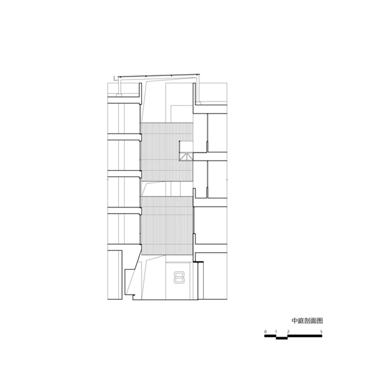
界面原状7#楼为五层配套宿舍,8#楼为四层工业厂房,总建筑面积 5400㎡。建筑仅东面市政路与工业园区和城市相连,亦是唯一的城市展示面。两楼间狭缝宽 4.5m,与市政路相连。改造后的 7#8#楼将是 SMOORE 的实验和办公部门,研发的保密性促使建筑减少与外部环境接触,视线和动线形成隔离,成为独立、内向的个体。我们对界面进行重构,将7#8#楼连成整体,使外部边界转化为内部空间,使消极的狭缝转化为积极的共享中庭,对抗工业园区的散乱和嘈杂。


建筑维持了外部空间的连续性,但试图打破高密度工业园区的均质感。三个不同朝向的开口与周边环境形成对话,主入口、中庭采光天窗和面向大树的楼梯间。从实墙生长出来的凸窗是传导外界信息的筒,声音、光线、雨水等在此交换。宽阔的窗台为室内向干燥的工业区过渡预留了厚度,是湿润的植物园、温暖的茶台、惬意的读书角。5°微微侧上倾斜的窗户阻隔了来自城市地面的视线干扰,在密集建筑群中向天空尽量捕捉阳光。


中庭开放式天窗使中庭成为全天候风雨场所,空间使用的多样性和灵活性得到激发。考虑两个部门的使用和安全,在有限的改造范围内,7#楼基于结构框架最大化将内立面敞开,8#楼连动室内塑造凹凸进退的阳台空间,一静一动构成有趣的中庭“沿街”立面。立面是舞台,连廊是跑马道,光、时间、人和活动在7#8#楼间流转,向中庭延伸,事件和故事被充分展示,狭缝的压迫感被消解。



南边首层是实验室,敦厚的墙体提供了专注的实验环境,靠近外墙布景,设置休息区,北边是研发部门的大厅,向入口形成视觉遮挡,向里面敞开,利用疏散楼梯形成了左右两边必要的连接。两栋楼在形态与空间上的拼接实现了管理上的必要,成为大园区之外的小园区,三角形的切口是街道上唯一的开口,不仅暗示了二者在功能上若即若离的联系,鲜明的色彩,更是与向上倾斜外窗一起呈现出建筑强烈的外向的内向性,摒除不必要的动作之后,建筑在这里似乎带有了一些表情。








△改造前

△改造前
项目图纸

△基地示意图

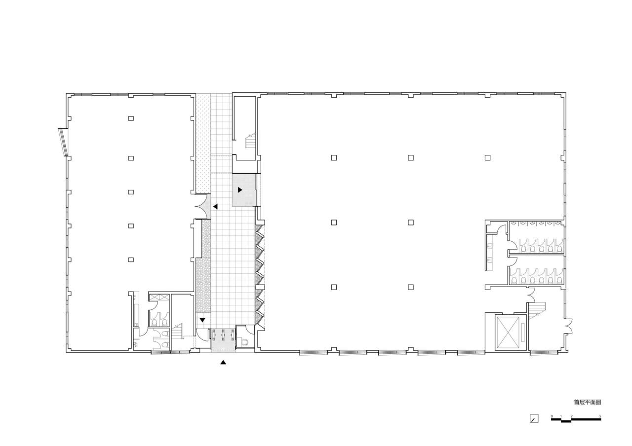
△一层平面图

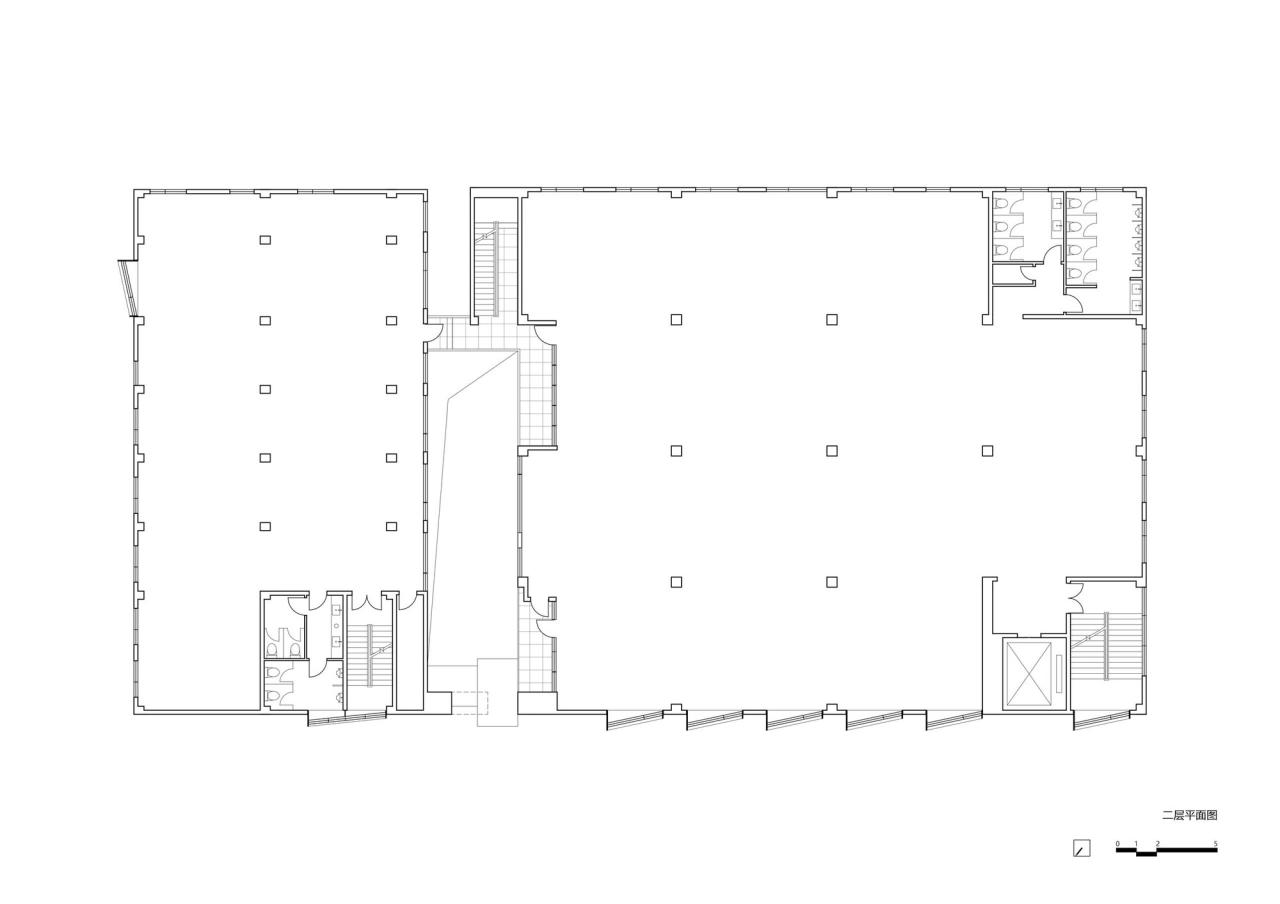
△二层平面图

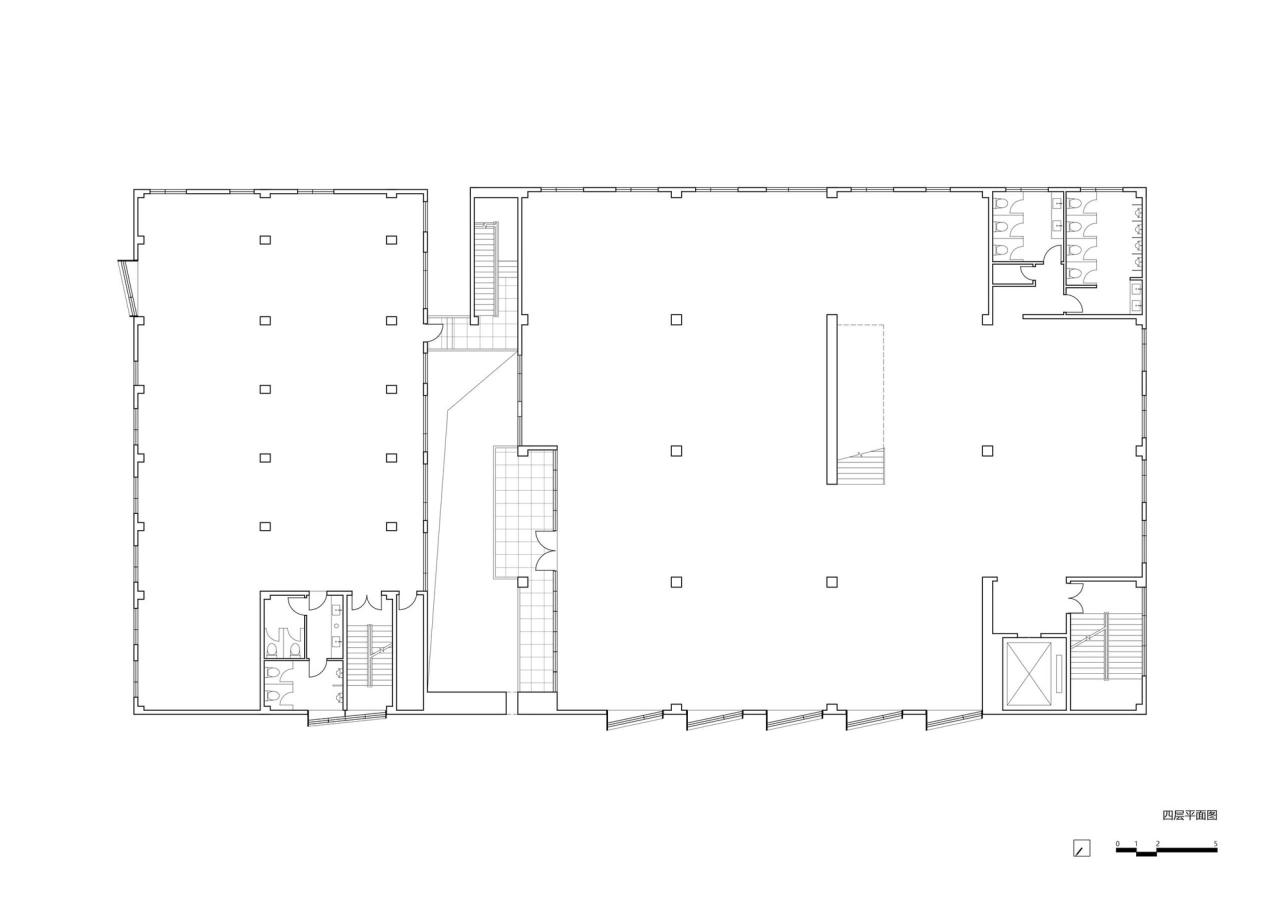
△四层平面图

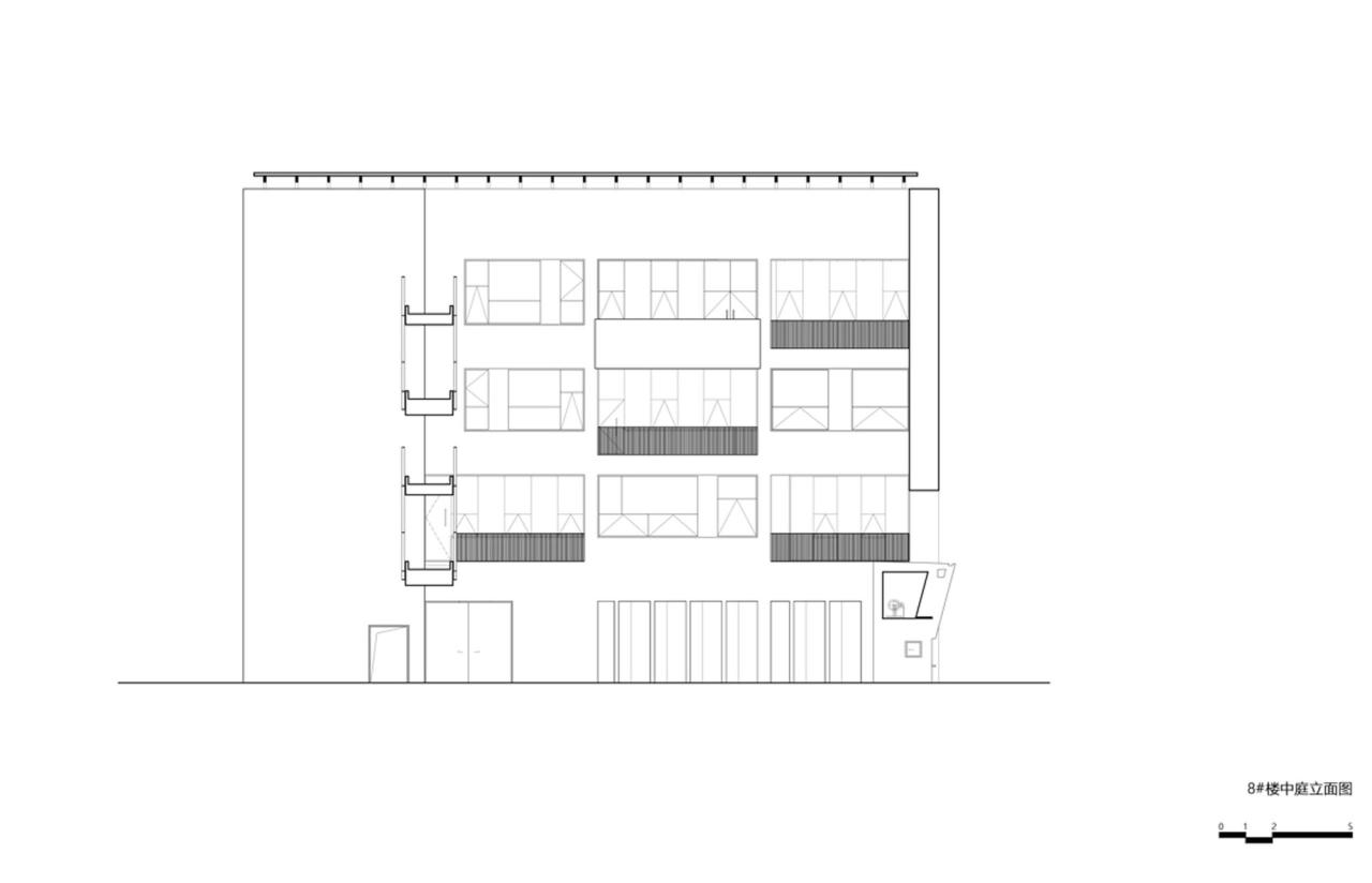
△立面图

△立面图

△剖面图

△凸窗大样图
项目信息
建筑师: Diagonal Architectural Design
面积 : 4113 m²
项目年份 : 2022
摄影师 :Ce Wang, Chao Zhang
主创建筑师 : 何啟帆、印实博、崔一松
幕墙设计 : 深圳市西格玛幕墙设计咨询有限公司
地点 : 深圳

BIM建筑网





评论前必须登录!
注册