
城市化的公共社区衢州礼贤未来社区位于衢州城西南侧,东至新元路,南至双港大桥,西邻衢江,与严家淤岛屿隔江相望。社区总体规划强调开放性;社区用地中心布局邻里中心和社区幼儿园,以实现社区资源的便利共享;社区将底层抬高,通过建立开放共享的立体架空慢行系统,连接社区内各居住组团、邻里中心和幼儿园,并跨江连接严家淤无车活力岛,在实现人车分流的同时,建立起一个真正开放、可达、可玩、安全的城市公共空间,模糊了社区与城市的边界;社区底层外围布置菜场、店铺、幼教中心、养老机构、创业支持等社区、城市公共服务与功能,让城市性在社区外围得以实现。


回迁安置户多为原周边工厂职工,因彼此相识而让社区具备“熟人社会”基础。因此,在满足高容积率等经济技术指标下,如何为他们创造一个有利于延续情感联结、又有体面生活感的新家园,成为我们要思考的要点。



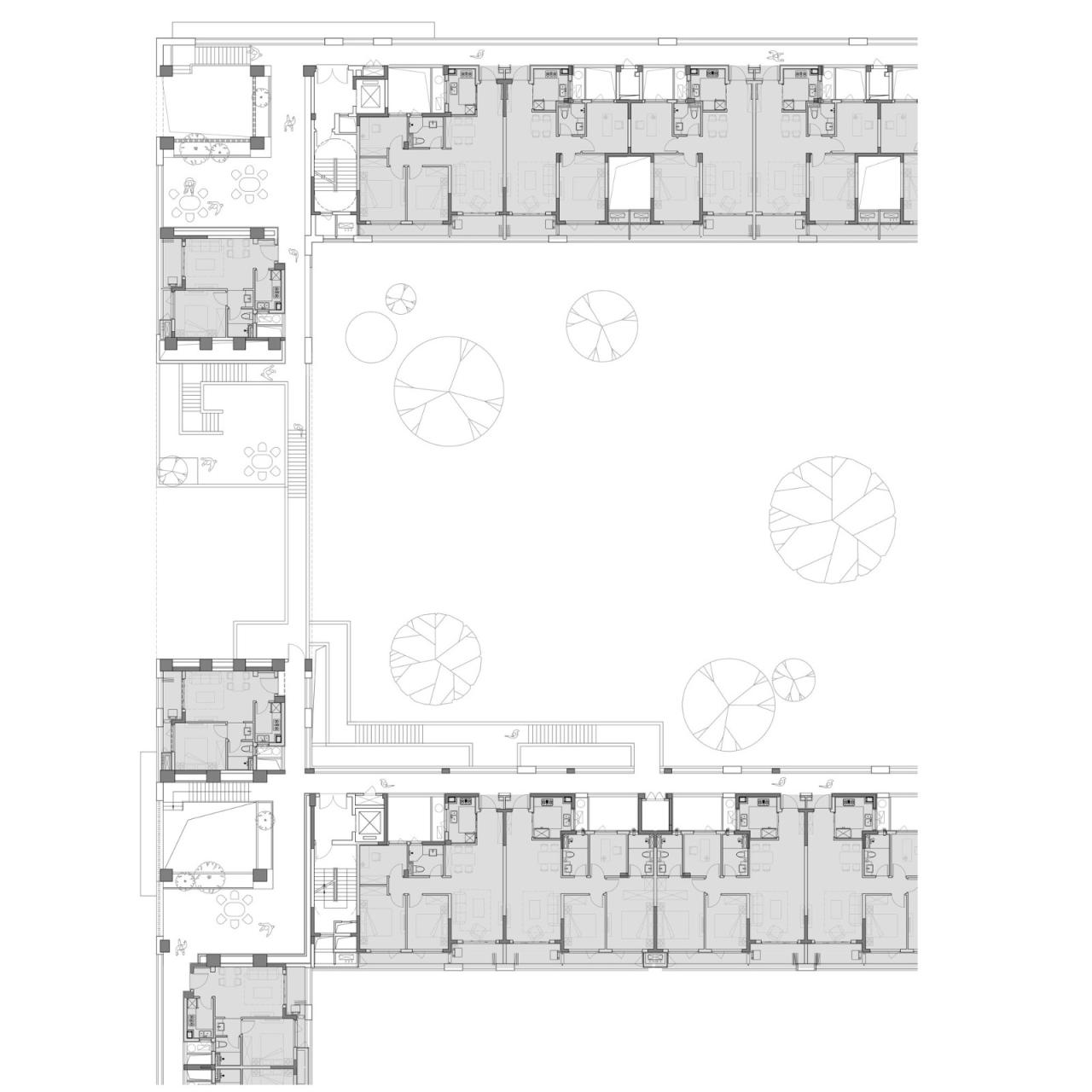
围合的居住组团在组团布局上,安置房位于社区中心区域,虽相较于商品房无法获得一线江景,但西邻邻里中心和幼儿园,东面城市公园,享有生活便利与另一种城市景观。



不同于常规商品房行列式布局下空间感的均质乏味,我们用围合的空间方式创造出更具归属感的内向空间。为了安置房后续的顺利分配,我们不挑战大众对“南北”户型的偏好,将安置房布置在组团南北侧,东西向则布置公租房与部分社区公共服务设施。人群混居、全维空间布局带来了更多视线、言语的交流机会,不仅为邻里互识创造条件,也形成社区“街道眼”,增强了社区安全感。



为了进一步提供交往发生的可能性,我们在1-7层设计了一套连接不同楼层公共空间的跃层、跨单元立体游廊系统,称为“立体街坊”。“立体街坊”有效地缩短了单元与楼层间的距离,消解了板式高层巨大的空间感知尺度;同时将原本只能在底层发生的单元间的交往活动扩展到竖向维度,并在底层和屋顶外创造了新的活动空间。



更利交往的户型组合安置房与公租房包含50-130㎡面积范围内共九种户型,为了让住户获得更好的居住体验,我们在设计上多采用双开间、三开间阳台,以最大限度地获取阳光、城市景观及内院等资源,确保无论南北或东西,均有所得。熟人基础让我们可以采用外廊式住宅布局,每层以4-6户为单元,在满足高容积率指标、不同户型灵活组合的需求下,实现了更多的交往与活动空间。而部分核心筒外置,不仅能为户型争取到更好的通风条件,其与外廊相连形成的更大平台空间,也为居民归家、停留和偶遇的发生,提供了更多的可能性。




回应传统的立面设计为了让空间尺度更亲切、舒适,我们用白色与木纹涂料分界7层空间上下;东西向立面采用预制镂空砖,用低成本的物理节能方法实现遮阳隔热。衢州古城门和传统民居给予我们形式灵感:大尺度的古城拱形门洞增强了居民回家的仪式感,高层立面的水平挑檐唤起“老宅披檐”的衢州记忆,兼有防水、防雨等现实功能……衢州礼贤未来社区安置房于2022年8月验收交付,得到了入住居民的积极反馈。面对这样一个有别于以往商业开发的住宅项目,我们将持续关注其使用状态,不仅是期待那些自发的新生活,也包括公共区域的使用效率、维护成本等,以验证或修正设计思考。






项目信息

△基地分析图

△平面图

△平面图

△剖面图
项目信息
建筑师:gad
面积 : 194900 m²
项目年份 : 2022
摄影师:侯博文
厂家:信义玻璃, 德普威, 江苏恒美, 浙江周旭
项目总监:张微
项目主创 : 吴轩,黄欢(建筑),解磊(建筑),李春(规划)
规划 : 张利杨,谢韩诺娃,程茵
建筑设计团队 : 肖俊,王伟东,郑俊杰,鲁金清,赖肖琼,任凯,陈炜,余星凯,周洪林,陈凤婷
结构设计团队 : 胡达敏,吴映栋,姚开明,王理军,朱伟,卢哲刚,郭俊锋,沈晓东,颜潇潇,汪群,钱垚,唐一萌
给排水团队 : 吴文坚,张斌,龚海,虞宇涛,史锦程,沈晓伟,程永清
暖通团队 : 崔大梁,杨宝军,陈德闯,钟田力,张震寰,张言军
电气团队 : 童昕宏,江涛,陈谨菡,杨光豪,刘荣
地点 : 衢州

BIM建筑网





评论前必须登录!
注册