
嵩县三馆合一建设项目位于伊河对岸的新城。在不足9000㎡的基地上,承载了博物馆、档案馆和规划馆等主要功能,地上建筑面积1万㎡,容积率高达1.14,对于文化建筑来说用地极为局促。同时这幢建筑又是县内第一座综合性文化设施,发挥着保存、展示嵩县的历史记忆与未来愿景的重要作用。


自然对人类而言,自然环境的山水特征是亘古不变的存在,构成了世世代代的心象记忆。当地的“嵩县八景”就是这种共同记忆的结构化呈现,其中伊水秋声、七峰叠翠是新城所依傍的近水远山,因此,以抽象的方式回应周边的自然山水是让这座建筑锚固于此地的直觉选择。


山与水的二元关系设计中将“山”与“水”的二元关系与体量的虚实、空间的开合、功能逻辑等整合考虑,运用几何形体的组合获得一种较为抽象的表达。博物馆、档案馆等功能空间在外部构成了“山岳”,公共空间的玻璃顶如溪流从山体间奔涌而下,在两个方向分别覆盖了共享大厅与档案馆门厅。


溪山行旅进入博物馆大厅后观者处于山体的包围之中,可以抬头透过屋顶看到高处的层峦叠嶂,以及屋顶下悬挑的巨石崔嵬。拾级而上,如在山谷间溯溪流行进,时而山重水复、曲折尽致,时而峰回路转、别有洞天。古人溪山行旅的意境与林泉高致的情怀,或能在游走中体验一二。

“远山无脚”“远山无脚,远树无根,远舟无身(只见帆),这是画理,亦造园之理”(陈从周《说园》)。三馆的底层体量虚化,四周环以柱廊和玻璃,将山体托举于其上,凸显群山的巍峨高远,与“远山无脚”的画意相合。


传统“三合院”嵩县当地传统民居一般为三合院,由正房和东西厢房(当地称“厦房”)构成,院落尺度相对宽敞,在冬季能获得更好的日照。三馆的空间布局可以看作一正一侧、一大一小两个三合院的组合,两个大厅是有玻璃顶的“庭院”,均直接进入,呼应了当地民居格局。


副阶周匝沿街两面的底层向后退进形成连续柱廊,类似于古代建筑的“副阶周匝”。柱间的宽高比控制接近√2,根据清华大学王贵祥、王南等先生的研究,这是中国古典建筑最常用的比例之一。正面共享大厅及柱廊先前凸出半个开间,宛如 “抱厦”。如流水泄下的玻璃顶在主入口形成雨棚,柱头和屋面之间用钢构件比拟传统的“斗栱”,避免了钢结构屋面的单薄感。



“斗栱”的形式探索日本建筑大师对斗栱形式的提炼早已闻名于世,采用单一类型构件叠合的手法充分体现了日本文化所追求的洗练和极致。三馆在斗栱的设计中探索了另外的方式,继续坚持“二元论”,把“斗”和“栱”进行各自独立的提炼,再按照传统逻辑进行组合。最终完成的钢结构柱头介于抽象与具象之间,保持了传统斗栱的构成关系。


现实问题之“城市”三馆用地处于周边高层建筑的包围之中。尽管自身用地局促,三馆仍努力在沿街面进行退让,形成前场空间。底层4米宽的柱廊为市民提供了随时可以利用的半室外活动空间。为避免对街道形成压迫,三馆的体量从道路交叉口沿对角线方向呈前低后高布置,让城市街道空间显得更为开阔。


现实问题之“空间效率”要在1万平米的容量内容纳博物馆、档案馆、规划馆和会议厅等多种空间,三馆的平面设计非常紧凑,公共空间以及楼梯、电梯、卫生间等尽可能共享使用;人流量大的规划馆布置在底层,2-3层为博物馆,二者围绕共享大厅布置;3-5层为开放度较低的档案馆,在西北侧有独立的门厅,会议人流使用档案馆门厅,避免与公众人流相互干扰。
现实问题之“材料与结构”主体部分采用浅色石灰石,底层檐口和柱廊采用深色花岗岩。石灰石板以三种尺寸进行拼贴,强化了整体的水平感和质朴自然的格调。为了实现虚与实、轻与重的对立统一效果,三馆的结构设计付出了很大努力,如以直径60公分的钢管混凝土柱承托大厅上方巨大的悬挑体量,大厅采用轻盈的张弦梁以避免玻璃顶棚的结构过于厚重,等等。


被动式绿建技术为了降低大面积玻璃屋顶在夏季的温室效应,除了采用三层带镀点Low-E中空玻璃以外,在大厅屋顶的下端和上端设置了电动可开启百叶窗,利用热空气向上流动的原理,通过自然通风将屋面下的热量带走。
求解最大公约数嵩县三馆的设计将地域文化拆解为自然、传统与现实的三个方面,努力寻求三种“函数值”的最大公约数。这种方法论希望所形成的建成环境,能够针对现实问题采用适宜的应对策略,回应人们对于延续文化传统与纪念性价值的期待,并映照出潜藏在吾乡吾民内心深处的原风景。






项目图纸

△手绘图

△总平面图

△一层平面图

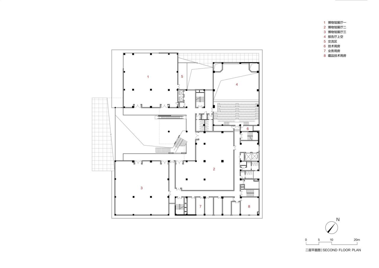
△二层平面图

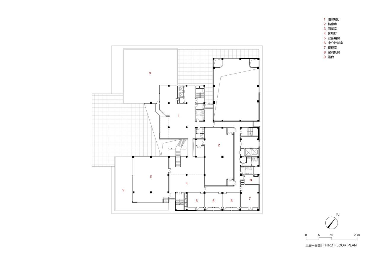
△三层平面图

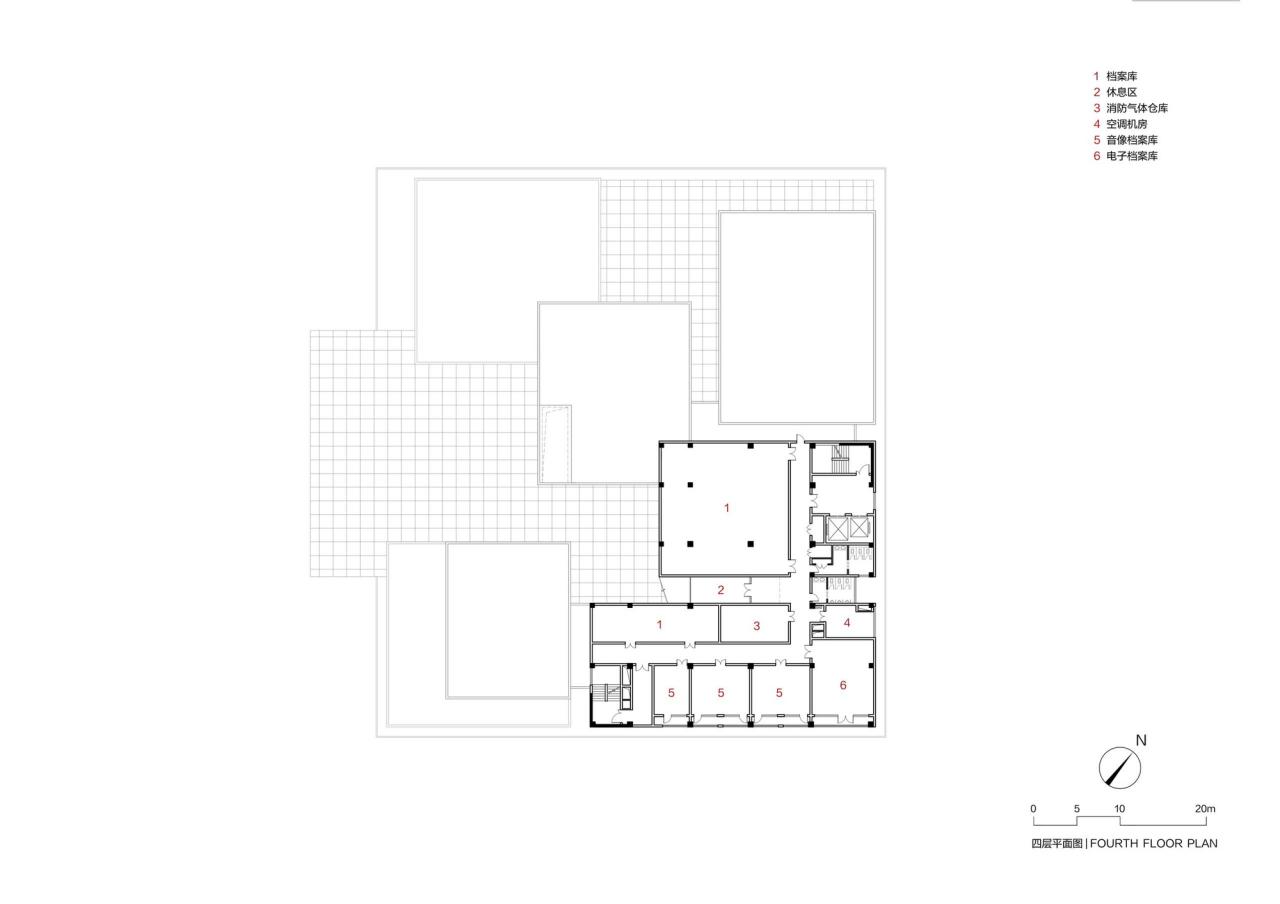
△四层平面图

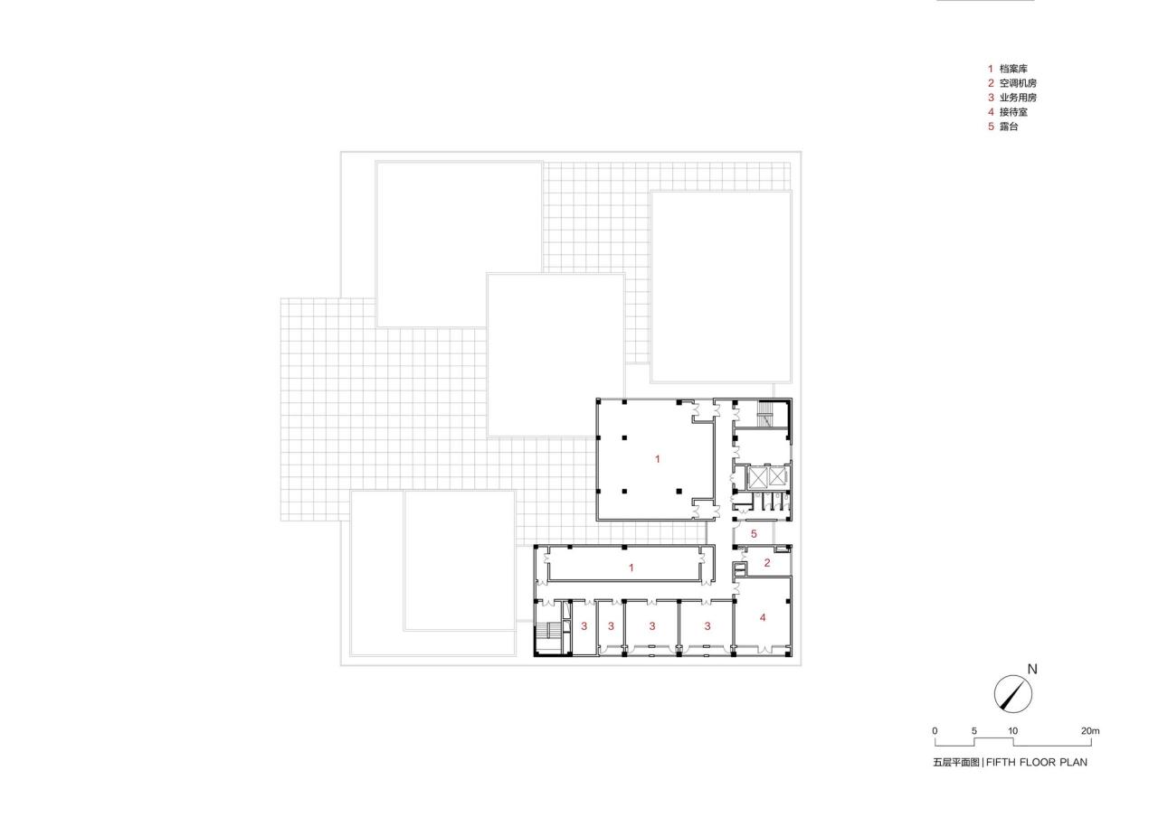
△五层平面图

△地下一层平面图

△立面图

△立面图

△剖面图

△剖面图

△斗拱分析图

△斗拱分析图
项目信息
建筑师 : 王晖建筑工作室
面积 : 8796 m²
项目年份 : 2022
摄影师 : ZY Studio
厂家 : STAD
主创建筑师 : 王晖
设计团队 : 王蓉蓉,朱明,曾雨婷,秦阗怡,叶佳成
各专业主要负责人 : 蔡辅奎(建筑),杨国松(结构),易远山(给排水),朱家泉(电气),张剑(暖通)
合作设计院 : 天尚设计集团有限公司
室内展陈设计 : 上海风语筑文化科技股份有限公司
委托方 : 嵩县住房与城乡建设局、档案局、文广新局
地点 : 洛阳

BIM建筑网





评论前必须登录!
注册