引子:潮起“两湖”
围绕西太湖、长荡湖,常州正在打造一个创新的生态湖湾城 。本项目位于 “两湖”创新区的核心区域,是规划中的中央创新轴和环湖文旅发展带的交汇点,占地约45亩。基地北侧为永嘉河,水景怡人;东侧为城市绿林,环境优美;西至西太湖大道;南临揽月路,隔路与揽月湾滨水公园相望。

△区位分析
规划展示馆作为“两湖”创新区启动的先行项目,既为市民提供了休闲观光的场所,又是城市历史、规划建设成果展示的窗口。设计团队致力于以现代手法融合江南气韵,打造亲民、互动、前瞻的“城市之窗”,让创新区建设更加可观、可感、可体验。
第一章:立意·缘起江南印
整个项目从设计到落成周期只有100天,因此,如何在高效中形成较高的空间品质和成为重要命题。

设计团队以 “一方江南印,数尽天下文”为设计主题。在方正严谨的建筑形体中中,通过“印章”的体量变化,形成错落堆叠的建筑形态。
第二章:布局·居游中行望
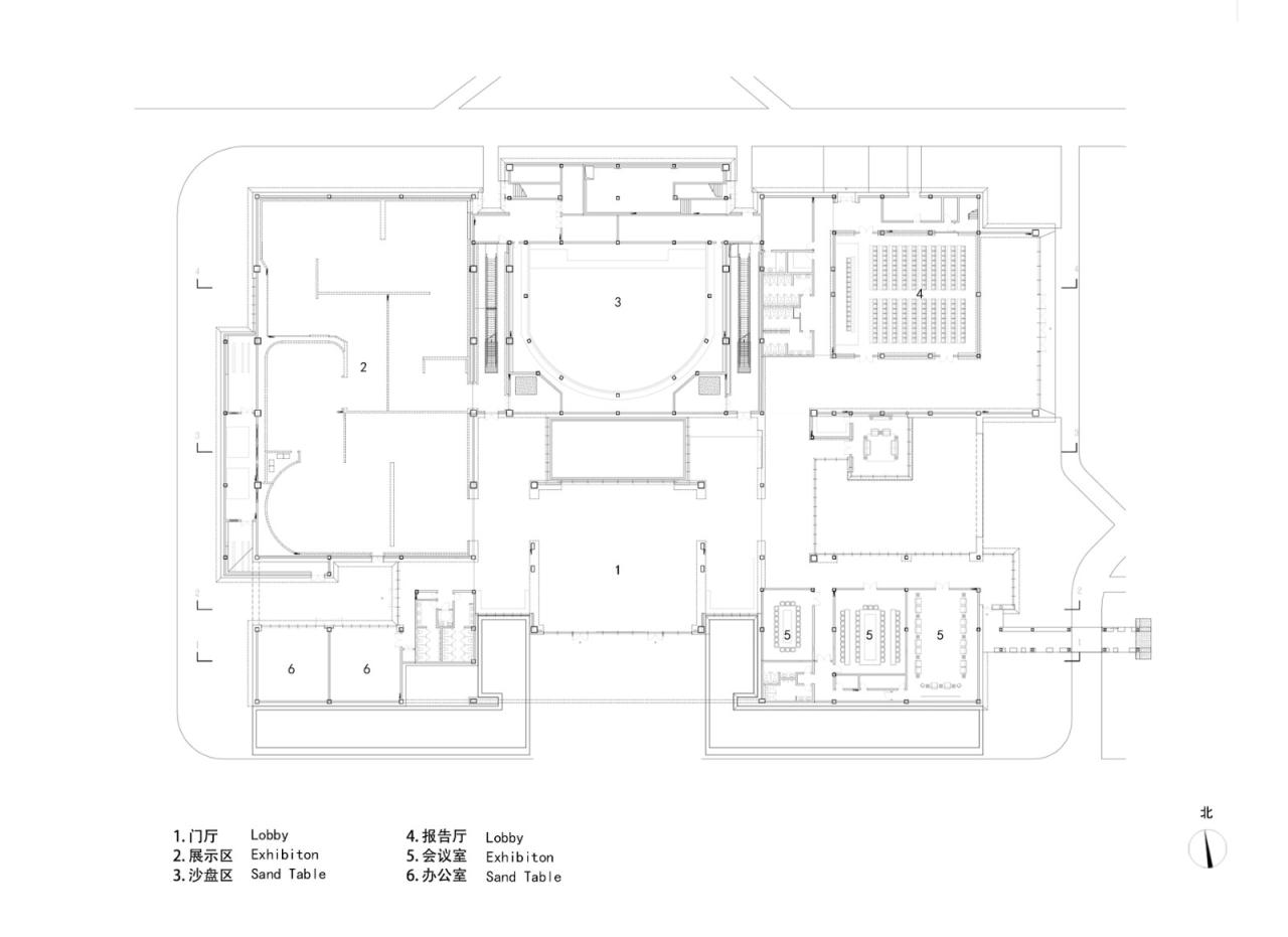
建筑布局借鉴江南的营造传统,力图创造“居、游、行、望”的江南空间体验。在用地的中部设置10*7的矩形体量,是展馆的主体部分,在其中嵌入4个庭院。
由于展示馆内部的功能块大小不一,用庭院去进行各部分功能的隔离和串联,通过实体与虚空的相互间隔,在相对完整的外边界轮廓中,形成了内部丰富的体量,也营造了空间的起承转合。展馆的东侧布置配套的办公附楼。附楼与主馆之间通过连廊相连。

江南的空间营造,纵向一进进庭院组织的起居空间应对的是日常生活中严谨的礼仪,而侧园或后园中取法自然的园林空间则是对山川对自在的向往,二者合在一起的“居与游”才是江南人完整的生活和人生。

“居与游”
从入口庭院到入口大厅再到中心庭院,是刻意严谨的轴线空间的塑造,一层一层的空间推进加强了这个序列的礼仪感,这是“居”的部分,让人们得以安静下来,转而进入展厅参观规划展示的内容。


从数字沙盘区出来,结束了参观的仪式感之后,向东侧就进入“游”的部分。东侧庭院的水景、庭院外的滨水景观,人们通过游廊在这里走走停停,完成了其中的“行”与“望”。
第三章:庭院·匠心巧造园

【引】入口庭院——见山
首先是南侧的入口庭院。入口庭院使得建筑的门厅向内退后,通过一段庭院空间再进入室内,丰富了空间的层次,加强了进入展馆的仪式感,同时也拉长了原本不算开阔的广场的空间感知。


入口庭院以浅水为镜,倒映南边公园和广场的景色。入口西侧以一棵松树迎客,树下曲水相绕,庭院纵深虽不大,通过留白和节奏的把控,植物的点缀和光影勾勒,也平添了生动。


站在大厅门口回望入口庭院,可以看到入口广场的对面是揽月湾公园层层叠叠的树木,而树梢之上揽月湾景观塔的圆顶恰入庭院画框,如同一轮满月。
【寻】中心庭院——寻谷
从入口庭院进入大厅后,正对面看见大厅北侧的中心庭院。中心庭院如同大厅的一幅屏风画,简约的景致在自然光线的变幻中,宁静深远。

庭院中简单而精心布置的两棵树和几颗球型灌木,白石环绕着几片草坡,颇似山谷,散发浓浓禅意,自为一方天地。从中心庭院向西可进入展厅空间,观展结束后回到中心庭院的东侧,再次与庭院邂逅,也为参观者提供了欣赏它的不同视角。

【探】东侧庭院——遇水
展馆东侧置入一个庭院,尺度在四个庭院中最大,视线在这里打开,让观众在参观展览后感受到放松。庭院东界面向外开敞,将滨水公园的景观纳入庭院的视野。院子的另外三个边形成环廊,组织起报告厅、会议室、接待室。


庭院设计为一个水院,水面的静谧能增加空间的深远,池中东南角孤植一棵红枫,西北角设置一个别致的茶亭伸入庭院,获得了绝佳的景观环绕,茶亭自身也成为庭院的一景。

环廊北端在报告厅的东侧放大为休息厅,外部设置了室外路演的场地,是报告厅功能的室外延展;环廊南端则通向二号楼,完成两栋楼之间的空间连接。
【栖】西侧庭院——游林
展馆西侧还有一个小院子,围绕着内部办公空间,参观间隙来如厕的人也会看到这个庭院。


庭院相对较窄,种植几棵高大乔木,造成一种静谧的氛围,傍晚时分,夕阳斜斜的射入庭院,透过树的枝叶,形成一片暖暖的斑驳。
第四章:框景·重重似画卷
庭院为展馆的空间铺陈确定了总体的格局,而重重的框景则加强了观景的视线引导,同时也为人们在空间中的游走提供了方向的指引。
纵轴:

从入口庭院的大门向北,经过展馆的大门、中心庭院的框景,形成了三道框景,最终将人的视线聚焦于中心庭院。且每向内侧一层,景框渐次减小,通过透视错觉拉长了景深。


横轴:

从入口大厅向西,通过两层景框,可以进入展厅;向东同样对称的两层景框,可以到达东侧的庭院回廊。横轴上的景框左右对称且尺寸一致,希望形成无限延伸的空间引导。



竖轴:

大厅空间,同时也是纵轴和横轴交汇的空间。在这里设置了一个竖直向的景框,抬头向上可以看到,一圈天窗隐藏在墙壁和顶棚之间,顶棚如同悬浮在空中,自然光线从悬浮吊顶的四周顺墙壁而下,形成一道光的方框。光的方框随着一天的时间变化,在大厅內框出变幻的光影。


第五章:外观·虚实韵水乡
外墙以白色为主基调,强化出简约的建筑体量,纯白的底色也作为背景更好的衬托出景区的四季风光,同时也暗合龙城水乡的白墙意蕴;

外墙材料采用通高珍珠白蜂窝铝板,保证平整度的同时方便现场快速施工拼装;以600、900、1500为模块拼贴组合,形成堆叠的肌理,同时强化“印章”概念的体量感和方正感。

几个庭院的周边使用通高超白玻璃,让视线在建筑与自然背景之间自由流动;同时又加入朦胧的金属丝网与铜制花窗,形成似透似隔的边界,朦胧感也传递着烟雨江南的特别韵味。


第六章:亮化·动静两相宜
“江南印、映江南”,灯光设计在南侧礼仪广场两侧设置了立杆投影,利用白色长幅立面,描绘动态江南画卷。

同时对各个庭院进行静态描绘:入口庭院通过灯光强化出进入的轴线和秩序;中央庭院的灯光配合白石和奇松刻画中式禅意;东侧庭院结合水景营造静谧;西侧内庭的林间赋予闲适幽静。


此外,从空中俯瞰,中央大厅的天窗在夜晚形成一个方形的光带,将江南印的主题在夜空中传递。
后记
快速创意、一体化设计、多专业配合、高品质落地。建成后“两湖”创新区规划展示馆,纯白的江南印泛着淡淡珠光,映着两湖的碧水青山,谱写夏去秋来、百日焕新的诗篇;展现常州生态之城 、秀美之城 、科技之城、创新之城、青年之城、未来之城的美好蓝图。
项目图纸

△总平面图

△一号楼一层平面图

△一号楼立面图

△一号楼剖面图

△二号楼一层平面图

△二号楼剖面、立面图
项目信息
项目名称:两湖创新区规划展示馆
业主公司:伟驰控股集团有限公司
设计公司:江苏筑森建筑设计有限公司-GEN简和工作室
建筑规模:9500㎡
设计时间:2022.5~2022.7
竣工时间:2022.9
主创建筑师:张旭、张承
方案设计团队:梁泽渊、米合来木·艾克热木、董超、余卿、沈云峰、钱韵、张皖莉、孟丹、郭嘉城
施工图设计:贾杰、胡宏、曲艳丽、荆烨、刘磊、姚一辰、吕燕姣、龚飞雪、江伟山、雷栋、徐秋玉
幕墙设计:沙克勤、王玉龙
室内设计:黄金东、张驰、汪健、谢人杰
园林单位:上海到特景观
标识单位:上海汝成
照明单位:上海徽之度照明
展陈单位:印象乾图
摄影师:筑作视觉

BIM建筑网





评论前必须登录!
注册