
初次探访前哨农场是在一个初冬的下午,驱车穿过前哨公路两侧齐整的水杉,便能看到高耸的水塔掩映在浓密的树丛中,颇有些柳暗花明的意味。踏入厂区,场地北侧一组颇具规模的锯齿形厂房传达着具有旧时织布厂记忆的宏大故事,而其余残破的小建筑散落在杂乱丛生的绿化之中,消隐在环境里。这组标志性的厂房与水塔作为场地的记忆,从环境中剥离出来,被我们保留了下来。



为满足防汛需求我们筑堤造景,形成了一条环场地的生态绿堤,这条生态绿堤体系在锯齿形厂房的东西两侧放大为节点,形成两组地景建筑,与主体厂房形成了一种并置的关系。建筑本身往往具有独特的场域感,空间的特质会如同涟漪一般由建筑向周边的场所逐渐蔓延开来,而并置的关系则会带来不同场域的交叠,因而产生了更多趣味性的空间,这种由并置而产生的交集传达了建筑与建筑间的关系,也是一种建筑与场所间的关系。


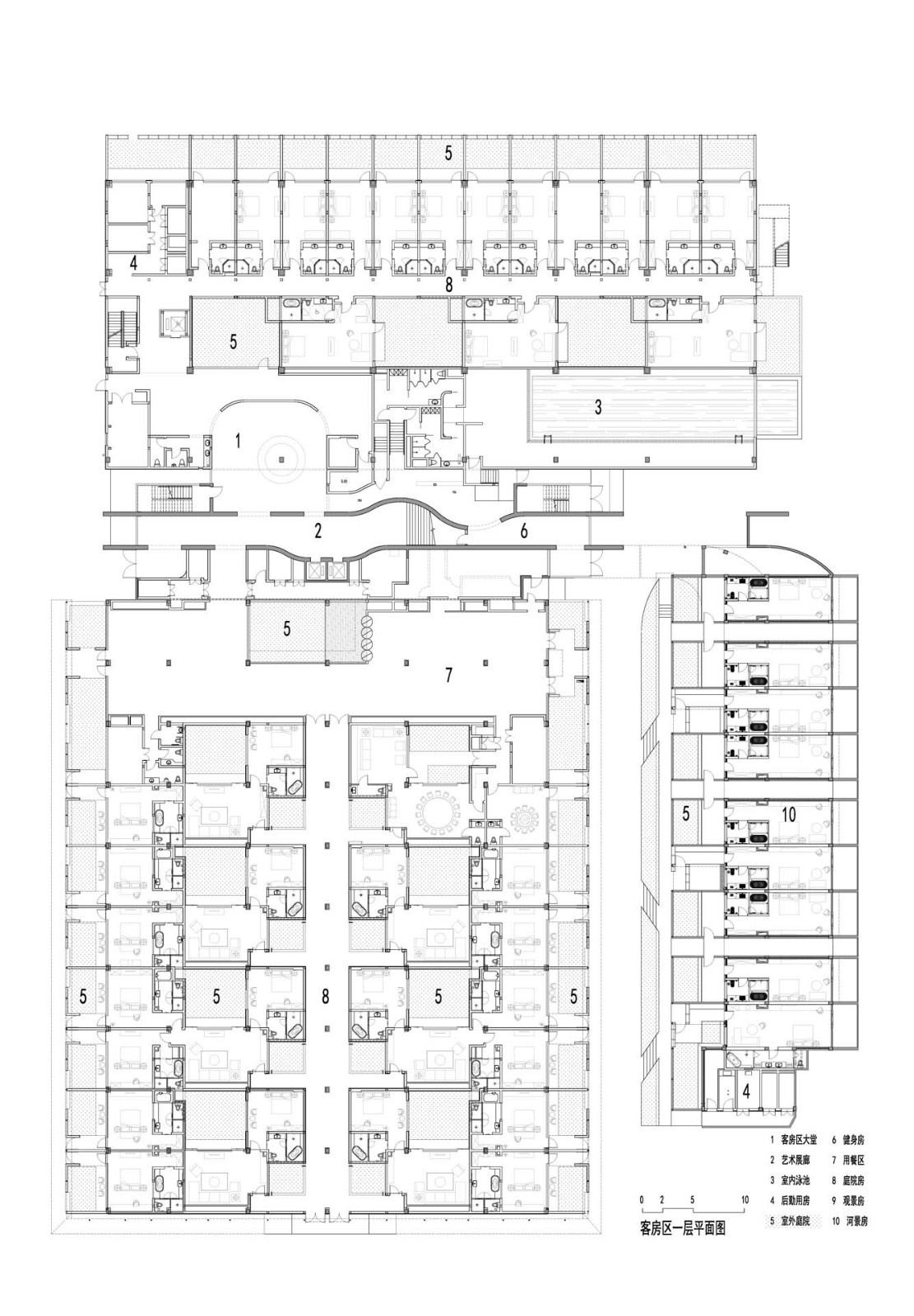
而选择以地景形式处理与主体厂房并置的两组新建体量,意在弱化新建建筑的形式感,使其外部简单化而增强内部空间的多样性,以趋于景观化的姿态并置于老厂房的两侧。西侧为会议中心,东侧临河的一组错落的体量作为特色的河景客房,与保留厂房形成了一组新老对话的街巷空间。



绿堤体系的弥漫式路径不断延伸,在两组核心的锯齿形厂房间也以另一种新的并置策略介入了其中。两片混凝土墙体从堤的体系中延伸出来,从两组旧厂房间的空隙中插入,向上升起、翻折托起悬置于空中的钢木结构体量。在场地的更远处观望,仿佛一个木盒子悬于老厂房的锯齿屋顶之上,有了些虚幻的意味。位于顶层的观景客房空间可以眺望下方绵延的屋面,在新的空间中找寻与场所记忆的关联。



与前面提及的并置关系相异的是,受到现状的空间制约,这种新与旧的并置是竖向的;而新体量下部介于老建筑之间的空间即是这种并置关系所产生的交集,这个交集是更具趣味性的;我们用通透的玻璃界面将其围合起来,作为酒店最为核心的大堂与共享空间。为了进一步增加空间的艺术感与趣味性,我们对两片混凝土墙体又做了进一步的演绎,墙体在空间内部发生扭转,使原本尺度规整的空间有了收放的节奏,弧形墙面也为艺术展示等复合功能创造了更多可能。


保留的两组锯齿形厂房中北侧一组内部空间尺度较大,同时坐拥北侧广袤的稻田景观,为提高空间利用效率考虑改造为两层空间使用。受到既有结构梁的制约,二层局部空间无法满足使用需求,我们通过局部利用金属平屋面替换原有坡屋面的形式为二层客房争取了更优的空间条件,同时也在屋面形成了别样的时间韵律。南侧一组厂房高度较低但较具规模,通过整体结构加固与局部去顶成院,我们将其改造成为特色庭院式客房,保留屋架的斑驳与庭院景观相映成趣;而私密性空间以异质的新增体量形式植入,形成了新旧并置的关系,而在这种形式上的并置间,空间仍是连续的,空间作为一种媒介将不同时期的建造形式联系起来。










项目图纸

△一层平面图

△二层平面图

△三层平面图

△立面图剖面图

△鸟瞰图

△分析图
项目信息
建筑师:同济原作设计工作室
面积:7267 m²
项目年份:2021
摄影师:章鱼见筑
主创建筑师:章明、张姿
设计团队 : 肖镭、席伟东、潘思、冯珊珊、黄晓倩、费利菊
设备设计 : 郭长昭、方涛、李菡茜、沈冰春、杨佳澎
照明设计 : 杨秀、顾兴花、卞晨、吴洋、刘宇、葛文静
结构设计 : 王瑞
标识设计 : 屹珂设计
室内设计 : 万景百年
建设单位 : 上海乾艺农业发展有限公司
地点 : 上海

BIM建筑网





评论前必须登录!
注册