
总体设计:在风土中陈酿,在传承中创新
风土(terrior)*是一个地方特有的自然环境(包括土地、山川、气候、物产等)和人的风俗、习惯的总称。是否能表达风土,一定程度是食物是否上佳的标准。永春有适宜酿醋的独特自然环境,空气、水质俱佳,又有制醋的古老技艺和家家户户酿醋的传统。在总体设计中,我们希望能塑造一个园区,让来访宾客能充分感受红粬醋在永春独特的自然风土中的酿造,深度体验酿造的魅力。同时,也希望参观者能体验到永春红粬醋在非遗传承中的创新,感知科技和匠心结合。


总体布局时在主入口位置努力保留了一片视野通透的开放空间,作为红粬醋陈酿和展示的场地——古法陈酿广场,而将相应的建筑体量集约地整合至用地东侧。这样,远山与河景就被引入到古法陈酿广场,形成了一个绝佳场所。



动线的有机整合经过与工艺工程师的密切配合,通过多种布局比选及推演,在极其紧张的用地之下,高效整合了生产动线和观光动线。两者相互独立,互不干扰,又有机联系。设计保留原有工业遗存的烟囱和旧建筑立面,新建建筑部分则采用天然花岗岩、钢等材料,形成微妙的新旧对话关系,呼应了工厂传统而现代的品牌调性。


在园区前段的古法参观动线中,天然花岗岩墙体贯穿始终,塑造了纯净、质朴的氛围,并限定观者视线,增强了观者对红粬醋天然而质朴之特质的感知。



古法车间:以当代回应传统古法车间,展示了永春红粬醋传统酿造工艺的手工制作全过程,是观光动线最重要的节点。在这里,参观者可以进一步感知到红粬醋文化的传承和创新。


现代车间、办公区及体验区参观完古法车间,可进入现代化车间游览,可以在独立的玻璃展廊内,参观实验室、大型发酵及灌装等生产线。















项目图纸

△项目模型图

△总平面图

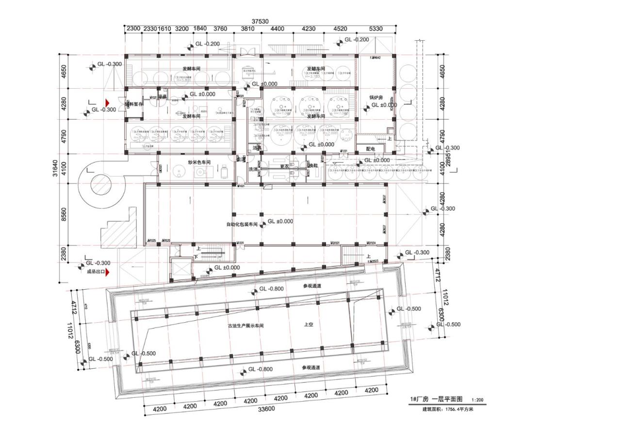
△一层平面图

△二层平面图

△立面图

△立面图

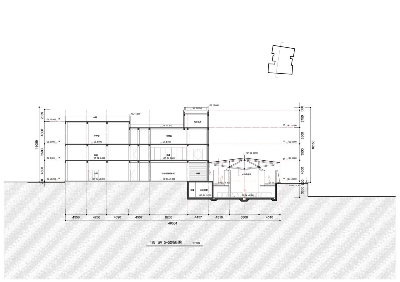
△剖面图

△爆炸图

△局部剖面图

△局部剖面图

△分析图

△项目生成图

△分析图

△项目分析图
项目信息
建筑师:LEL DESIGN STUDIO
面积 :9900m²
项目年份 :2022
摄影师 :朱清言
主创建筑师 :余快
规划及建筑设计 :罗赛、王志明、Ted HUANG、刘璐、吕琪、杨睿豪
室内设计 :罗赛、王一玎、张凡、于昊良、邹奎
景观设计 :罗赛、邵静、周雅雅
策划及品牌设计 :尤扬、康一、朱丹、李枫
体验设计、展陈及导视系统 :朱丹、周芮、黄珍妮、翟稚
项目总协调 :王子昭、罗赛
总承包 :李家海、张扬、龙曲、赖舒静;王晓莉;卢祥华、翁裕婷;卢建伟、陈婷;王峤;陈艺平、胡星桥
灯光顾问 :上海劢光光电技术发展有限公司, 杨义华、姚逾人、周兰天
撰文 :罗赛、余快、杨睿豪
幕墙顾问 :厦门深画工程咨询有限公司
地点 :泉州

BIM建筑网





评论前必须登录!
注册