
这座被动式设计的 3 层清真寺位于通勤车站前的密集居住区,底层是学校,同时也是周边社区的游廊。“建筑应该体现它的时间和地点,但渴望永恒。”——弗兰克·盖里(Frank Gehry)。

永恒的建筑早期清真寺是在中东气候条件下,依照伊斯兰传统建造的,往往主体建筑周边即为开放空间,没有明显的象征意义。伴随着时代的发展,以及自伊斯兰黄金时代开始的建筑技术的进步,清真寺设计的象征意义越来越强烈,周边更加开放(门廊),并具有一定的几何、材料特点以及绚丽的风格。在 Jami Al-Hurriyah 清真寺中,我们试图通过对现场环境的强处理,包括气候、文化、人们的习惯以及被动设计策略,设计出一座永恒的清真寺。



历史方法在公元 13 世纪伊斯兰教进入印度尼西亚之初(伊斯兰教诞生之后的 1200 年),许多印度尼西亚的清真寺仍然保持着原始形式,形似(例如)印度教/佛教寺庙,甚至东亚的宝塔,也有些采用了当地典型建筑的构造和装饰,进行本土化适应。在随后的发展中,清真寺建筑采用了更多来自中东的形式,例如,荷兰东印度群岛政府在殖民时期引入的洋葱头屋顶和装饰物。从本质上讲,清真寺建筑在形式上没有规定,重点在于礼拜和社交的功能。我们认为,清真寺的建筑形式可以在不同的背景下发展并具有独特性,因为它体现了它所庇护的社区的身份和一种成为周围社区的天才之地的力量。



建筑策略在 Masjid Jami Al-Hurriyah(光之清真寺),通过与这一场地的阳光、气候和高密度公共互动建立对话,并在建筑设计元素中加以“翻译”和体现,我们试图创造出一个不受时间束缚但具有强烈环境信息的建筑。这是对清真寺建筑的新理解。



3 个倾斜屋顶创造了序列屋顶分区将清真寺划分为迎宾门廊、梯田式礼拜区和主礼拜区三个部分。倾斜的屋顶可以遮阳、避雨并且隔热。每个屋顶顶部开有“天窗”,在礼拜者和时间之间建立起对话;自然光透过天窗显示一天中不同的祈祷时间。

用屋顶和尖塔的形状象征“安拉”从火车站方向的侧面看,3 个屋顶段和塔共同形成了“安拉”一词。


热舒适度这座清真寺没有设计人工空调,而采用了最大程度的交叉通风,木网格起到窗帘的作用并控制过热的渗透,使建筑能够保持热舒适性。


楼梯、露台和庭院作为公共空间清真寺的功能不仅是为了宗教目的,同时它也是社区互动的中心。通过不设围墙的庭院、可以充当座位的楼梯入口,邀请周围社区来进行活动。


项目图纸

△总平面图

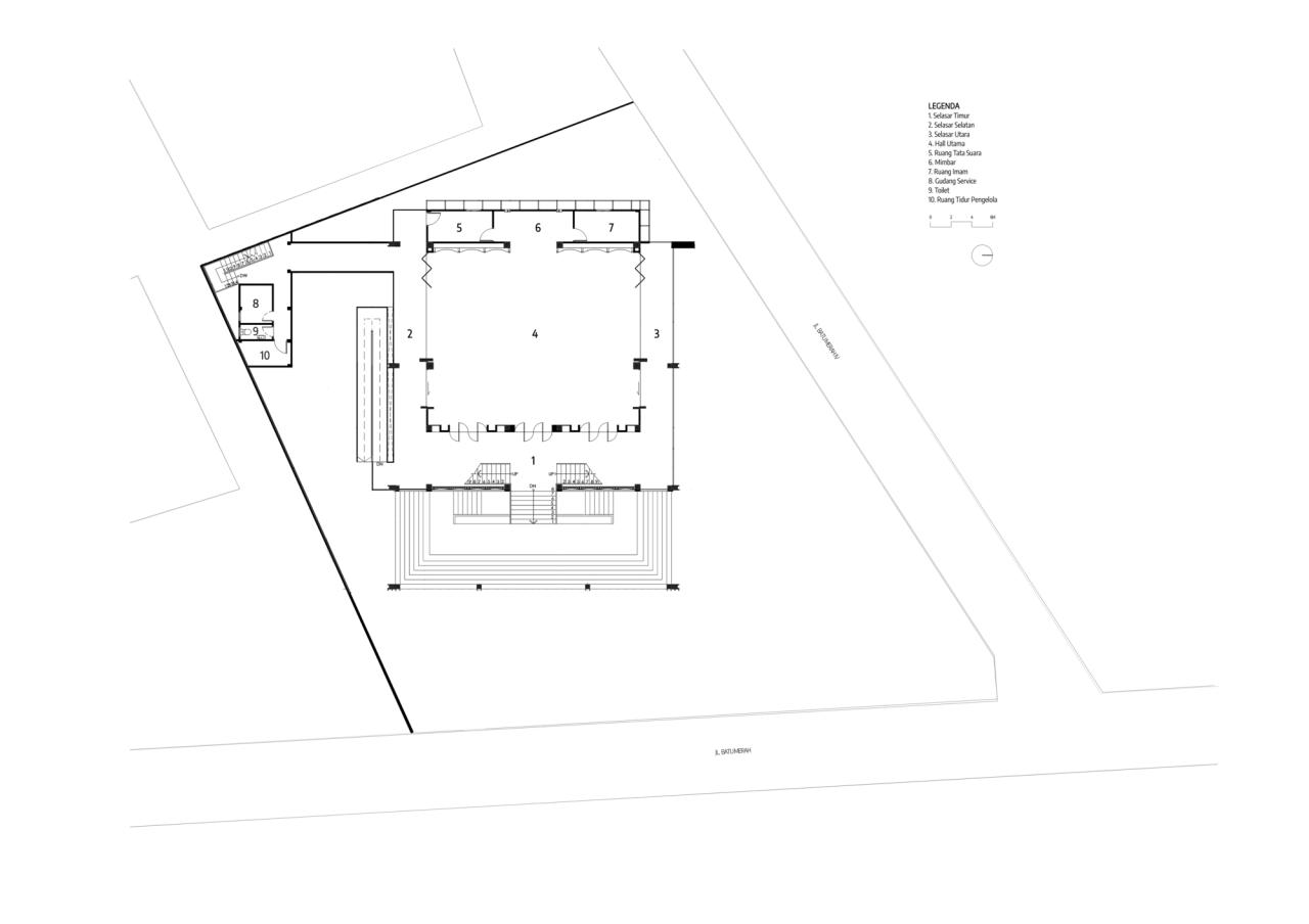
△一层平面图

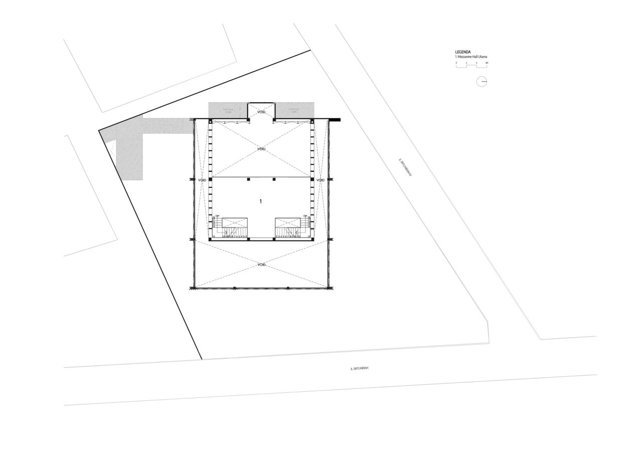
△二层平面图

△三层平面图

△剖透视

△分析图

△爆炸图
项目信息
建筑师:Ago Architects
面积:745 m²
项目年份:2020
摄影师:Kafin Noe’man
厂家:Conwood
主导建筑师:Abimantra Pradhana, Osrithalita Gabriela
项目建筑师:Muhammad Luthfan Rizal, Danindra Adrian Wicaksono
建筑设计:AGo Architects
承包商:Pt. Prodecon Mitratama
地点:印度尼西亚,South Jakarta

BIM建筑网





评论前必须登录!
注册