
西安曲江观光轻轨线是一条全长6.8km、贯穿了大唐芙蓉园及曲江池遗址公园周边的观光线路。沿线分布9个站点及1个维修站点,上部是站体,下部是辅助商业及便民设施等。2020年,在大力推进城市更新的新背景下,为符合新曲江的形象,轻轨线路启动了沿线站点的更新改造工程(即曲江5A级景区旅游观光配套项目辅助工程)。作为曲江富有特色的旅游新地标,改造除了满足轻轨本身的观光功能外,还需要重塑业态,活化城市空间。我们希望用温暖的城市公共空间承载起市民、游客对这座城市的需求,使这些被遗忘的空间重新融入城市生活。


设计策略:城市驿站由于每个站体所处的外部环境各不相同,作为公共建筑,站体一方面需要融于原有的城市环境肌理,一方面又可以强化自身环境的场所感,给予自身独特的空间属性。



设计通过研究各站场地环境的城市风貌肌理,归纳总结周边建筑形态及站点区位,将环境特点融入其中,设计与周遭建筑风貌、尺度、活动相呼应的站体空间;同时考虑曲江自然环境的特色,将建筑材料元素与之融合,做到建筑与自然的共生。项目引入TOD模式进行综合设计,以小型轻轨公共交通为导向,混合多用途的功能开发模型,在站点的基本交通功能之外提供不同的城市服务功能,与站点的人居活动共生,打造具有城市昭示性且富含生命力的都市驿站。



升级改造后的曲江轻轨,上部是月台层,下部是辅助商业。设计依据站体外部的风貌肌理、自然环境、社会活动等不同属性,将站点分为四大类型——乐活﹒亭、绿野﹒屋、水岸﹒特、风貌﹒存。


“乐活·亭”类型的站点都位于城市广场的一隅。乐活的理念,鼓励人们驻足停留。设计采用双层坡屋顶的形式,以大小屋面来化解3层的站体高度带来的尺度问题,使站点空间与周边空旷的环境相互协调。“绿野·屋”类型的站点置身于公园景区中。设计因势而为,提供了不同标高的休憩场所和充足的外摆空间。建筑呈现出森林小屋的外观,采用石瓦屋面,砌石墙面以及接近自然的立面木质材料,回应身处公园的“真实”。“水岸·特”类型的改造重点利用临水的环境优势,打造易于观景的空间,以及与水岸相协调的建筑形式。“风貌·存”类型的站点由于位置、风貌的特殊性,改造以适度更新为主,在尊重原风貌的基础上,融入现代的建筑设计元素,实现轻改造。各站点还设置了卫生间、座椅、智能设备等便民功能,同时分别设置用以休息、充电的功能空间,做到对环境、功能、和使用者的响应。




构造研究为了更好地平衡改造效果和成本之间的矛盾,我们将既有墙面及梁柱外包拆除恢复到原有钢结构状态,同时将月台层原有的柱梁重新替换成新的钢构,以此适应不同站点的结构效果。建筑以钢结构包木作为主体构造形式,吊顶采用裸露的钢梁结合复合木板及木纹铝板,屋顶选用金属直立锁边及石瓦屋面,以这样的搭配方式,还原真实的建造逻辑。我们期待,随着曲江轻轨站体的改造建设,这些微小的城市TOD能真正参与、融入人们的城市生活,成为有温度的生命体。











项目图纸

△路线图

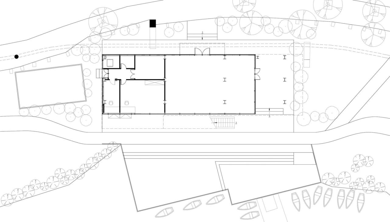
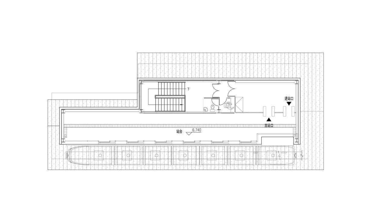
△平面图

△平面图

△立面图

△剖面图

△平面图

△平面图

△平面图

△立面图

△剖面图

△分析图

△分析图

△分析图

△分析图

△细部大样图

△细部大样图

△细部大样图

△结构说明图
项目信息
建筑师:DDB Architects
面积:6997 m²
项目年份:2022
摄影师:吴清山, 尹涵硕
厂家:奋安铝业股份有限公司, 洛阳北方玻璃技术股份有限公司, 陕西晶峰玻璃有限公司, 陕西铝幕墙新材料有限公司
主创建筑师:马庆禕
设计团队:滕露莹、林家豪、张庭维、黄紫璇、徐荣耀、邵鹏、邵帅、吴彬彬
结构顾问:吴宏磊、吴昊
委托方:西安曲江旅游投资(集团)有限公司
景观设计:陕西保利园林建设有限公司
施工方:紫旭建设工程有限公司
施工图设计:中联西北工程设计研究院有限公司
泛光设计 : 西安明源声光电艺术应用工程有限公司
地点 : 西安市

BIM建筑网





评论前必须登录!
注册