当下高密度城市环境,在高效运作的教学空间之外,未来校园应该是什么模样? 长江艺术工程职业学院,把连接性、社交性、地域性作为设计核心要素,凭借设计的创意和张力打造一系列生动的教学空间,让同学们在探索式、漫游式的校园中成为更好的自己。

△夜幕下的校园

△3#教学实训楼夜景
一、项目概览
在具有丰富世界遗产的荆州纪南生态文旅区中部,有一所全国唯一的手工技艺特色高职学院,学院内部更是建有3A景区荆州市荆楚非物质文化遗产技能传承院,是江汉平原非遗保护、传承、发展的共享平台——长江艺术工程职业学院。

△工匠小镇、非遗大学
二、设计理念
“山水园林城市”是从中国传统的山水自然观、天人合一哲学观基础上提出的城市发展构想,提倡人工环境与自然环境相协调发展。
正所谓“仁者乐山,智者乐水。”本案结合“山水园林城市”的发展观念,提出“游走于山水之间”的核心理念,阐述 “天人合一”、“道法自然”的山水意境。
中国传统山水文化讲究“以山赋行,以水生动”,本案“以建筑为山、以路为水、以廊为桥”构筑传统与现代相结合的“山水校园”。

△山水校园

△溪流峡谷

△山水庭院
1.聚庭成谷,拾级而上
本案建筑主体采用自由灵动的折线布局,与西侧的蜿蜒水系相呼应形成“山脊”,进而围合出三个三面围合的庭院,于东西两侧交错分布形成“山谷”,在围合出的庭院内设有大型景观坡道,营造出绵延上升的山体,山体之上设有外部楼梯,形似山道,保证流线的完整性和景观视野的延展性,形成“山坡”。通过“山谷”、“山坡”、“山脊”三段式的体量变化形成内外贯通而流动的立体轴线,丰富使用者的空间感受。

△庭院台阶

△东侧庭院

△侧庭院

△西侧庭院阶梯

△西侧庭院

△西侧庭院景观

△外挂楼梯

△架空层看大台阶
2.以路为水,山水交融
本案场地西临校园水系,在建筑主体与水系中间设有环水跑道,沟通“山”与“水”,我们通过将建筑北部主体的一部分架空于水系之上来制造一个水面上的非正式空间,用于承担学生的课余活动,也许是活动的集合地,或是午间的休憩所。

△环水跑道

△架空空间

△框景(架空层)
3.功能与空间
在满足教室的数量及通风朝向的前提下,于异形的体量里寻求规整的矩形空间承担教学功能,在保证教学空间完整性的基础上用灵活多变的休息空间增加其流动性,同时形成隐形的教学空间以及灵活多变的公共交流空间,自由的感官和建筑灵动地表达,碰撞出不一样的火花,正好适用于身心休憩及人际交往。大台阶下的合班阶梯教室,既是庭院空间,又满足了交通疏散。

△合班教室屋顶采光

△多样化的公共交往空间
4. 风格与材料
在建筑风格上采用传统中式风格与现代建筑手法相结合的现代建筑风格,在沿袭中国传统建筑精粹的同时,更加注重对现代教育价值观的精雕细刻,强调整体、统一的形式感,打造学校完整的对外形象。造价受限的情况下,采用大量的清水混凝土,以结构的真实性体现建筑空间的美感和光影。

△西南视角

△西侧庭院视角

△清水混凝土楼梯

△东侧入口

△楼梯内部

△庭院内景

△西侧视角
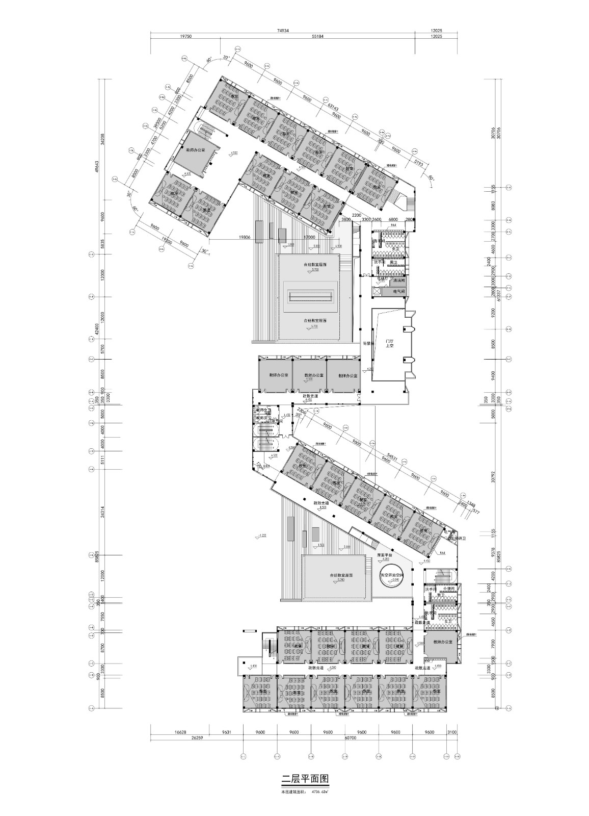
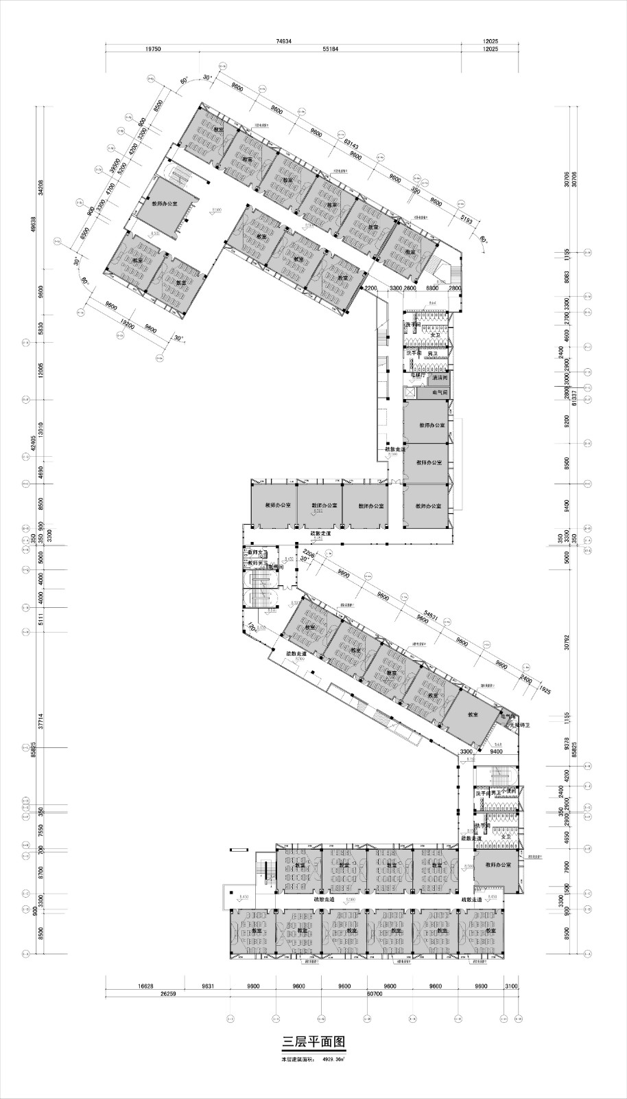
项目图纸






项目信息
名称:长江艺术工程职业学院3#教学实训楼
地点:湖北省荆州纪南生态文旅区
设计单位:湖北建艺风工程设计有限公司
校园总体规划:汤桦建筑设计公司
主创建筑师:邓翔
设计团队:郑辑宏、徐旸、彭卉、赵付伟、初洪涛、刘春强、沈炎、梅勇、陈祖强、蒋飞、洪云、乔少华、马明俊、李品成、郑昕晨、郑文锦、刘勇、曾琪、李双、甘源
总建筑面积:26647.04㎡
设计时间:2020年9月-2021年3月
建成时间:2021年7月

BIM建筑网





评论前必须登录!
注册