
近年来,国内以区域文化产业发展和传播为依托的大型室内主题剧场出现持续升温的热度,相关的建筑设计作品也争相呈现。重庆·1949大剧院是重庆磁器口·金碧正街大型文旅街区项目的一期工程,是大型红色历史舞台剧《重庆·1949》演出的专用剧场。


环境与构思设计师在思考项目与环境关系的时候抓住两个方面,第一,消解与共融;第二,控制与梳理。设计中通过空间手段弱化建筑的庞大体量,从空间、功能、流线等方面使建筑与周边复杂的环境要素更好地融合;同时,充分利用主题剧场在空间与形式上的特殊性和影响力,去控制和梳理和外部环境要素,形成个体与群体的相互制约与整合,真正实现场地边界的消解,场景行为的互适和场所精神的共通。


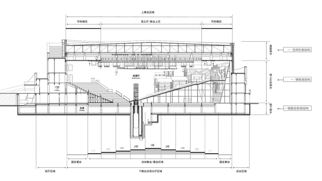
空间与技术建筑的主体是一个长80米宽72米高26米的观演合一的大厅空间,剧场内与观演相关的所有空间和设备如旋转看台、活动舞台等都与剧情的发展紧密相关。建筑形式采取了向心性螺旋斜面分割的方式,以位于形体中央的红色弧形玻璃幕墙为核心,形成了建筑从广场螺旋上升的形体关系。空间上结合共享理念出现咖啡厅、文创体验店、主题展廊等多样的空间类型,更好地激发场所行为,凸显空间活力。


建造与细节建筑中央的弧形主体部分是由包裹着红色浮雕墙面的透明玻璃幕墙形成的,浮雕墙面由不同字体的1949字样排列组合而成。建筑主体墙面使用的是带有肌理的GRC人造石材,同时对每一块板材进行人工剔凿,使得最终每一块石材都呈现出来不同的肌理。




探索与实践团队以自身对红色主题和地域文化的独特理解,诠释了重庆1949大剧院的在地文化内涵,很好完成了红色文化的延续和地域文化的输出。重庆1949大剧院在建党100周年成功开演,得到观众和媒体的高度评价,也迅速成为了重庆城市文旅项目的一张新名片。


























项目信息

△模型图

△手绘图

△总平面图

△平面图

△局部剖面图

△分析图

△分析图

△分析图
项目信息
建筑师: 悦集建筑
面积 : 25200 m²
项目年份 : 2021
摄影师 :PrismImage, Blackbow
主创建筑师 : 李骏、何飙、田琦
设计团队 : 李涛、李静宇、谭梦、吕毅、许景峰、吴静、胥向东、郭剑、宛良清、黄颖、王源盛、刘鹏、吴猛、王月冬、赵树东、谢成平、但承虎
设计顾问 : 何志强(策划)、熊刚(钢结构)、甘民(结构)、于群力(建筑)、陈金华(暖通)、赵颖(给排水)、李骏(电气)
委托方 : 重庆兴亚控股集团有限公司
施工图设计 : 重庆何方城市规划设计有限公司
地点 : 重庆

BIM建筑网





评论前必须登录!
注册