
Soiva 意为共鸣或音乐,是一栋为制作音乐而生的大楼。它有两所音乐学校,分别教授节奏音乐和古典音乐。这些机构为儿童提供游乐学校,同时为业余爱好者和专业学生提供教育,囊括从器乐和声乐到音乐技术和制作。


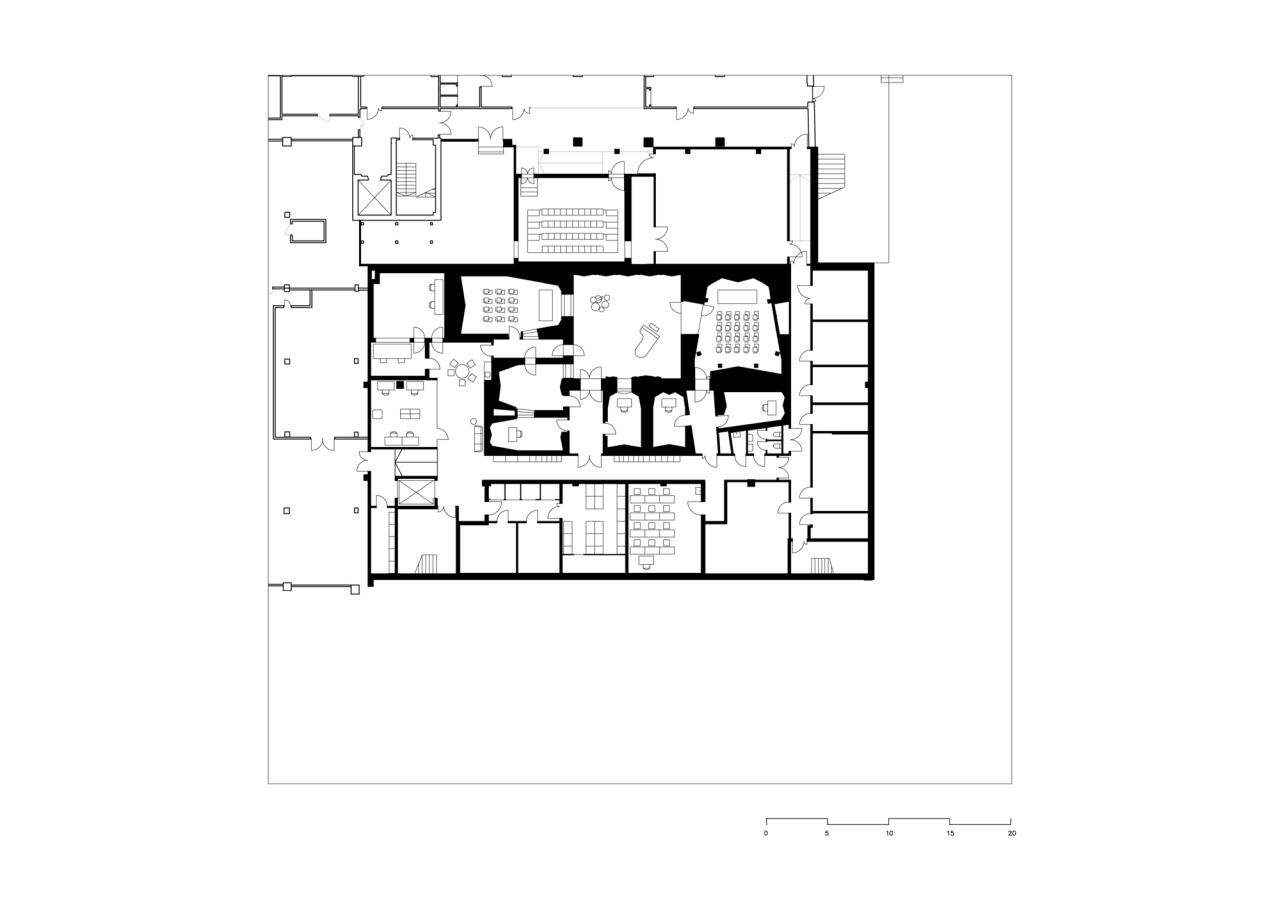
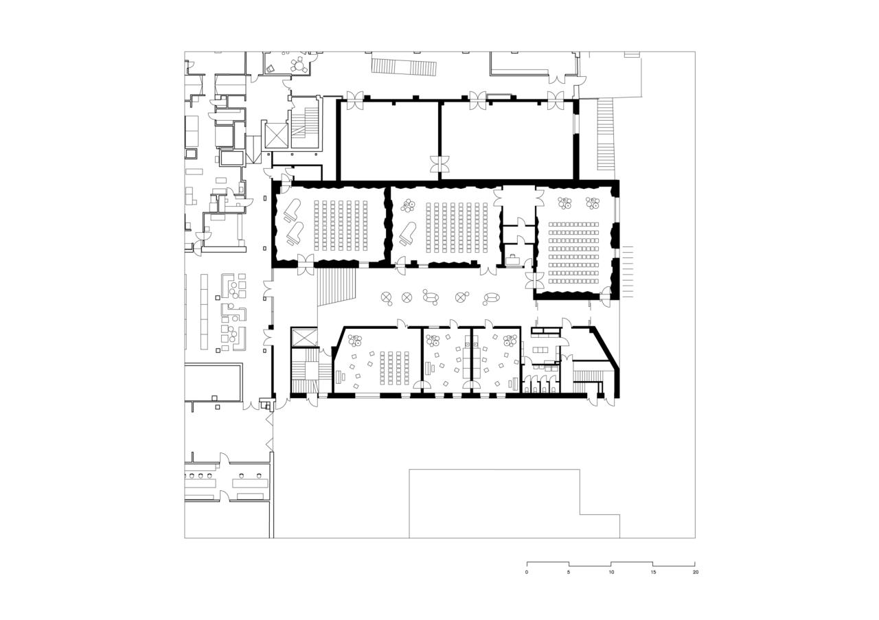
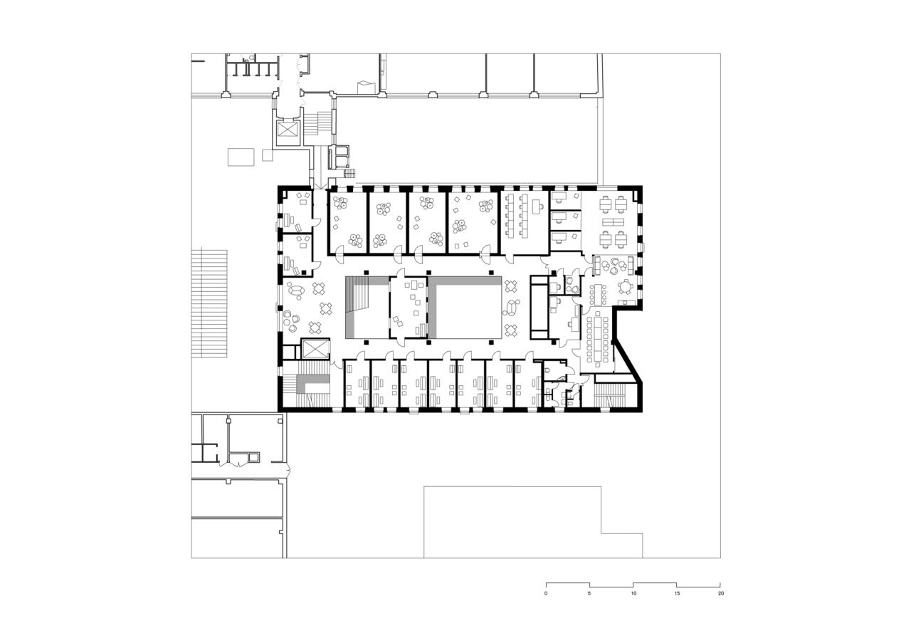
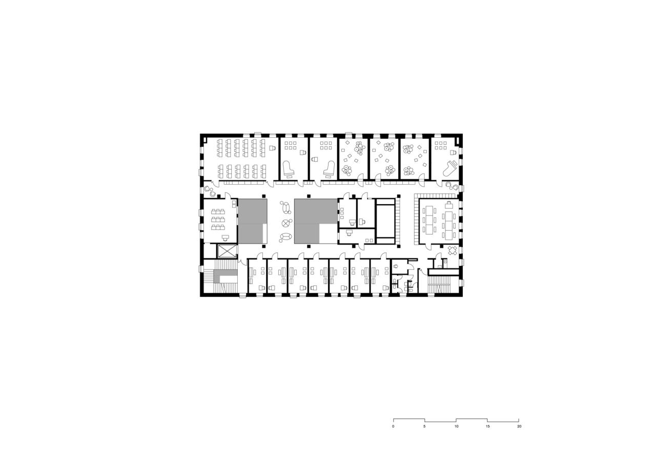
在与大楼使用者的合作交流中,Tommila Architects 将建筑组织起来,以满足来访者和各种常驻使用者的需要。内部五层楼高的空间都通过一个中央中庭整合在一起。一楼大厅兼作门厅,具有深色的基调和泥土的纹理,与上层外观更明亮、更柔和、更舒适私的人楼层相比,像更深的低音频率。

休息室和排练室在中庭上架起了桥梁,创造了一个多面的公共空间,自然光流经这里。这种设计激发了休闲会议的发生和建筑内两所学校之间的共同感。



学习空间被安排在建筑的四周,可以享受充足的日光和地平线上的美景。隔音设施经过调整,使建筑物没有噪音,但并不完全寂静;人们几乎可以听到门外的声音。这为学习音乐创造了最重要的宁静环境。



地下室的空洞演播室是创新设计的。几个监听和编辑室围绕着录音空间,因此它们可以在不同的组合中同时使用,这在教学法上是开创性的。在上面的表演大厅举行的音乐会也可以在这里录制。



外墙和内饰暗指音乐流派:摇滚乐的黑色和古典乐器的铜色。黑色砖墙上的窗户开口的节奏与音乐符号相呼应,使每个房间都很独特。一个表演厅通过一个巨大的窗户向街道开放,向城市演奏乐章。


Soiva 大楼是历史悠久的阿拉伯陶瓷厂的附属建筑,陶瓷厂曾经是欧洲最大的生产商,并以其设计而闻名国际。制造业已经停止,但设计和文化流行起来。Soiva 大楼与翻新后的工厂内的创意研究园区相连,并共享其设施。Tommila Architects 设计了整个园区。


项目图纸

△基地示意图

△地下一层

△一层平面图

△二层平面图

△三层平面图

△四层平面图

△五层平面图

△剖面图

△剖面图

△立面图

△立面图

△立面图

△立面图
项目信息
建筑师: Tommila Architects
面积 : 7497 m²
项目年份 : 2021
摄影师 :Anders Portman, Tuomas Uusheimo
厂家 : Alavus Ikkunat Oy, Bermanto, Inlook, Karkkilan sisäverhous, Puucomp, TECU®, Tarkett, Wienerberger
项目经理 : Miia-Liina Tommila
主导建筑师 : Yrjänä Vuojala
主建筑师 : Hanna-Maria Virtanen
项目建筑师 : Riku Piirta, Jussi Jokela, Laura Pasanen, Camilla Sundin, Stiina Ruusuvuori, Diana Rimniceanu, Otso Askolin, Niina Rissanen
合作艺术家 : Kaleidoscope Nordic AS
项目管理 : Indepro
主承包商 : SRV Rakennus
结构工程师 : Sweco Rakennetekniikka
地基工程师 : Pohjatekniikka
建筑声学 : Akukon
施工服务 : FCG Finnish Consulting Group
电力工程 : E-Plan
防火顾问 : Paloässät
室内建筑师 : Sistem
地点 : 芬兰,Helsinki

BIM建筑网





评论前必须登录!
注册