
场地本建筑位于一个典型的城市综合住宅区,既有独立住宅,也有公寓楼。我们认为,有必要保护居住者的隐私不受周围密集住宅和环境的影响,并保证采光,营造一个明亮舒适的空间。与一般的正方形住宅地块不同,本项目场地的形状和轮廓线呈钻石形,这也是我们即将进行的重要设计依据。


布局为了在有限的场地内满足业主需求的所有空间,我们选择了顺应场地形状,而没有采用直角布局,避免在不规则场地上出现死角。通过解读场地的独特轮廓和实地勘察,设计宗旨在于使空间多样化,希望这个建筑以自然的形状展现出来,而不是屈服于场地条件限制所得到的形状。首先,将住宅空间扩展到整个场地,并且根据当地建设规定和业主要求,在内部留空。通过这种方式创造的留白空间充盈着光线和自然,在保护隐私的同时,提供明亮和令人愉悦的空间。


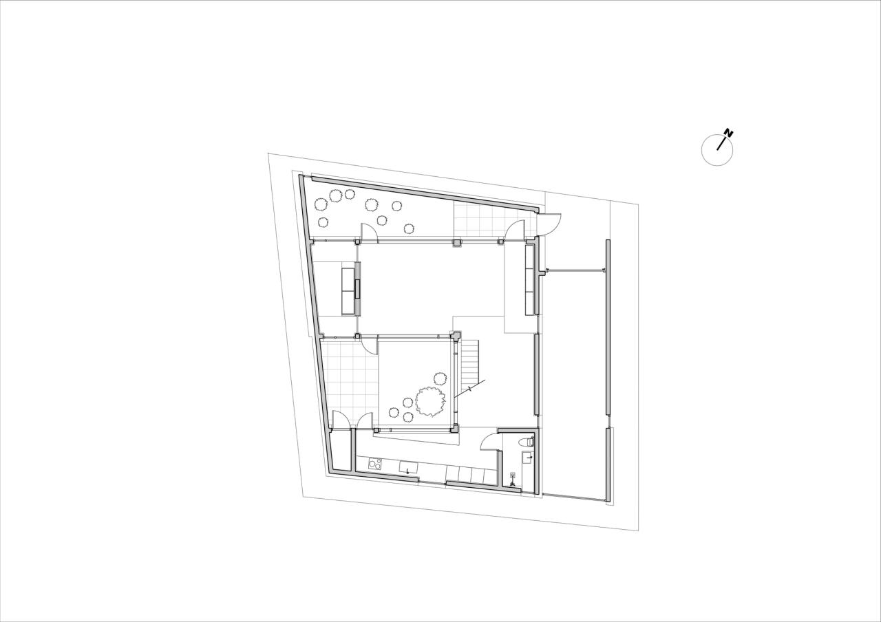
构图打开不锈钢外门时,首先映入眼帘的是一个狭长空间,里面布满各种石头和白桦树。眼前的小白桦林会让你暂时忘记自己身处城市中心,也成为住宅空间和外部道路的缓冲区。打开通往内部的第二道门进入时,你会看到客厅、餐厅和厨房围绕着中心排列,而中心区种植着山地阔叶树种。



位于山地枫树和小白桦树林之间的客厅和厨房、餐厅,使人随时可以感受到自然,成为远离城市日常生活的避风港。二楼的两个儿童房之间有一个规模不同于一楼的小花坛,以确认彼此的存在并协调彼此的距离。花坛和育儿设施旁边的多功能室也可以作为一个客厅,为孩子学习之余或夫妇小酌提供另一个栖息处。


室内在交叉点和室内的无序边界之间,室内空间向外扩展,外部空间向内延伸,交叉点的光、天、木、石自然成为室内的一部分。一楼的地板和墙面,有意保留为毛坯,作为光和自然的背景。带有卧室的二楼则采用米黄色调的地板,给人一种平静和温暖的感觉。


外立面不同于符合场地形状的一楼体块,立面在二楼的部分向内退进并略微扭曲,以减少街头行人的压迫感。白桦树在一楼和二楼扭曲的体块之间露头,界定了两个体块之间的界限,并提出了关于空间的问题。为了使扭曲体块的形状突出,改善单调的街道环境,我们选择了金属作为外立面材料。

一楼通过颜色加深的 luxe(彩钢板)增加建筑基础部分的厚重感。二楼整体明亮,并采用不锈钢百叶来减重。由于不锈钢独特的物理特性,被不锈钢百叶窗包围的二楼体块,随着时间的推移而改变其外观,为周围环境提供了节奏感。两种具有不同的物理特性和表面密度的金属组合,似乎与两个稍有区别的体块相类似,但又有别样的微妙和谐感。

项目图纸

△一层平面图

△二层平面图

△剖面图
项目信息
建筑师:Archirie
面积 :235m²
项目年份 :2022
摄影师 :Cheon Youngtaek
建筑师 :Yunchae Jung
建筑设计 :Archirie
地点 :韩国

BIM建筑网





评论前必须登录!
注册