
本项目是一所包含牙科诊所的住宅。客户是一名牙医,曾在兵库县芦屋市任主任医师,打算在和歌山县白滨市附近的田边市展开第二人生。该地块西侧是南和歌山医疗中心,沿街一带都是医疗机构。南侧是田边市艺术博物馆和新庄综合公园,充满自然风光。我们首先考虑的是牙科诊所患者的第一次就诊体验。我们认为最合适的是创造一个简单和放松的环境,消除压力和恐惧,打造一个让病人容易来访的地方。



另一方面,客户考虑的是,在田边市这个与芦屋市环境完全不同的地区从头开始开设一家牙科诊所意味着什么,以及如何重新定义牙医通常认为理所当然的事情,例如通过提供简单、无痛的治疗,创造一个让病人愿意前来的环境,并以这些为业务框架。同时客户也希望身为牙医能够通过这个项目对社区有所贡献。作为一个建筑项目,这个设计的本质是透过牙科诊所的管理理念与建筑方案相结合而体现的。


避免随意的设计——首先安排单人治疗间,旨在使病人不受恐惧感的威胁,而是看着眼前的森林感到放松。其余的空间根据牙科诊所的功能和需求进行分配。二楼实现居住功能,与一楼相比有所退进。解决方案不是首选敞开的空间,而是希望在其中创造一个治疗空间。为了以演绎的方式解决问题,设计从治疗空间开始,然后行进到其他元素,从而避免任何随意的操作,始终把患者放在首位去规划空间。我们的想法是创造一个便于病人前来就诊的牙科诊所,并且让他们成为常客。




顺应自然材料——外墙是由无漆雪松木包覆而成,内部则用结构胶合板装饰。通过在室内外都使用木材,使建筑物与自然环境融为一体。我们大胆使用了结构胶合板,它有很强的实木感,虽然每块材料的纹理都不相同,但这是源于自然纹理和真实形式,所以不过度清洁或控制是更加自然的。以这种方式,使用不同的材料来呈现自然。



预留更新空间的横断面规划——虽然目前二楼是客户自住,但他希望将来用于主要面对儿童的牙科治疗,所以采用双层楼板,保证了将来使用时安装管道的空间。我们将结构规划为一整个大空间,以便未来的楼层规划和想法能够灵活实现。




我们真诚地希望这里可以成为一个社区空间,成为一个患者可以心平气和来访的牙科诊所。







项目图纸

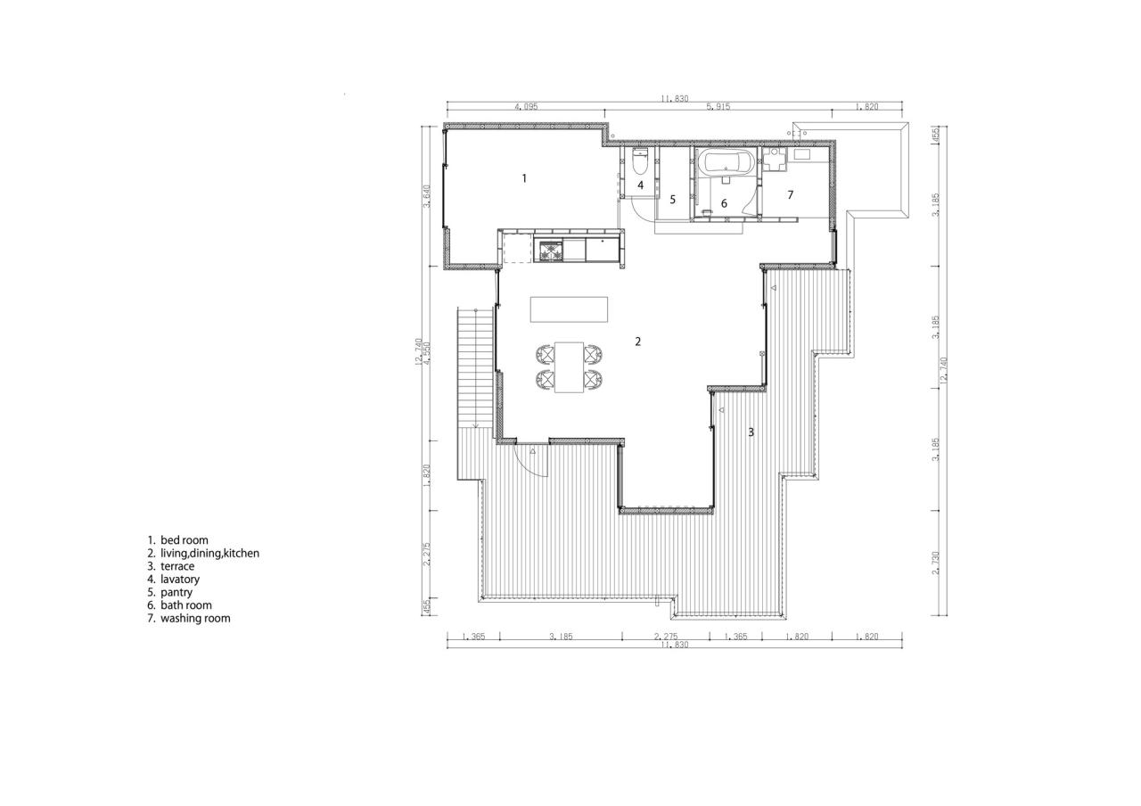
△一层平面图

△二层平面图

△剖面图
项目信息
建筑师:YYA / Yusuke Yoshino Architects
面积 :180m²
项目年份 :2022
摄影师 :Takumi Ota Photography
建筑师 :Yusuke Yoshino
总承包商 :Ko Hosokawagumi
景观设计师 :Hideyuki Ishii, Hakubun Ko
建筑设计 :Studio TERA
景观设计 :YYA / Yusuke Yoshino Architects
地点:日本,Tanabe

BIM建筑网





评论前必须登录!
注册