
项目概况社区活动中心位于几个村庄交汇处的村口,采用层层递进的院落布局,既可以作为村民文化活动礼堂,举办节日庆典、休闲电影、科普讲座,也可以为周边村里的老人和儿童提供日常休闲放松的场所。同时,作为改造提升的乡村示范,提供对外服务接待、文化交流


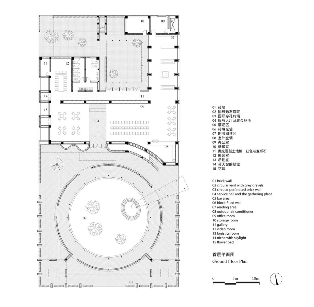
设计理念室外场地与建筑整体设计,成为一处全天开放的“立体游园”,包括四个主要空间:环形的仪式性聚集庭院,可以举办庆典活动和日常休息;以丘台为中心的屋面平台,可以远眺村庄和田地,适合晨昏锻炼,健身舞蹈,也成为孩子们上下攀爬的场地;廊院,围绕图书区和展廊,提供了较为私密安静的庭院;树院,北侧入口庭院,围绕场地原有杨树,用整面的砖墙和金属板形成了简洁的内外过渡空间。



主要的建筑材料和工艺,红砖和金属加工,都来自当地。手工砌筑的红砖,延续周边村落建筑的传统和文脉。长垣现代金属工业的快速发展,促进了金属的生产和使用,钢构件作为简便易加工的当地常见材料,其深灰色的材质和红砖通过对比,形成标志性的空间引导。


在相对不大的用地和建筑规模,以及有限的预算要求下,项目通过一系列设计策略,小中见大,提供了多样化的活动场景。村民们可以按自己需求,灵活使用地面庭院、屋顶平台及室内等一系列有识别性的空间,为减少运营维护,将社区中心分时、分区管理。周边村庄的老人、儿童、中青年人可以24小时随时来到这里,日常休闲和组织集会活动,重塑了久违的村庄聚落活力。











项目图纸

△总平面图

△一层平面图

△屋顶平面图

△立面图

△立面图

△剖面图
项目信息
建筑师: 清华大学建筑设计研究院
面积 : 635 m²
项目年份 : 2020
主创建筑师 : 宋晔皓、陈晓娟
设计团队 : 解丹、孙菁芬、褚英男、匡天宇、黄致昊、夏雨妍、岳文博
结构设计 : 龚政、张玥、田仲朋
施工图单位 : 上海颐景建筑设计有限公司
照明设计 : 清华大学建筑学院张昕工作室
地点 : 长垣市

BIM建筑网





评论前必须登录!
注册