
DUTS杜兹设计于2019年接受道生天合材料科技的委托,为其打造位于上海临港的总部办公园区,经过为期三年的建筑,室内,景观一体化打造与建设,园区已于近期(2022年)竣工投入使用。全新的道生天合上海临港总部包含人性化办公空间,全新的现代化工厂,配备世界一流设备的研发中心和先进生产线,DUTS杜兹设计也创新性的在工业建筑与办公空间中融入了更多文化体验,创造出具有“博物馆体验”的复合型总部办公园区。


世界一流的超现代化复合型总部办公园区“企业的办公环境和建筑特点要像企业的logo和VI一样,能够充分展现他独一无二的形象和个性,成为企业的名片,成为企业文化不可分割的一部分。”道生天合材料科技(上海)股份有限公司,是一家致力于研究与开发高性能热固性树脂材料的研发、生产和销售的高新技术企业,在环氧树脂、聚氨酯、丙烯酸和有机硅等产品方面,拥有一支超过20年成熟经验的技术团队,涉及领域涵盖:[风能产业]、[复合材料]、[汽车工业]、[光伏]、[电力]等产业。道生天合全新总部园区位于上海自由贸易试验区临港新片区,东接洋山国际枢纽港,北临浦东国际航空港,地处上海沿海大通道的重要节点,区位优势明显。项目占地面积32613平方米, 建筑总面积25802平方米。DUTS杜兹设计希望为道生天合打造的不仅是一个工业园区,而是一座节能环保、可持续生产的绿色家园,一座将智能化办公、数字化生产、先进实验室完美结合的智慧园区,一座在具有设计前瞻性,功能迭代性的现代化复合型总部园区。



结构功能化的建筑设计,在工业建筑中加入文化体验整个园区统一布局与规划,集合总部办公、研发中心、生产中心、休闲与展示等多种功能,人性化的办公环境和功能布局,能够充分满足企业和员工的使用需求,部分区域具有重新规划和功能迭代的潜力,能够根据企业未来的发展状况做出相应的调整。“我们希望能在工业建筑与办公空间中加入更多公共文化空间的体验。道生天合是一家非常有社会责任感与人文关怀的企业,他们希望为员工创造一种开放,生态,利于交流与创新的办公氛围,因此我们在工业园区融入了公共文化建筑中“灰空间”的设计手法,并通过将结构功能化,给工业建筑注入了一种“博物馆式的体验”。杜兹设计创始人,建筑师钟凌这样提到。



面积达2000平米的镜面水池在40米的超尺度悬挑建筑下徐徐展开,设计师在入口处去繁就简,只保留了一条浮于水面的丁字形步道。水平如镜,天光自中央入口区上方投下,将客人引至中央入口,为身处其中的人们营造出如公共文化“灰空间”般的放松与舒适感。水的柔性衬托出建筑的力量与魅力。结合空中花园的布局,为员工的交流与互动带来更多的流通性和便利性,创造一个空间与环境共融的世界级的现代工业园区。


建筑、室内、景观一体化的设计策略,创造独特的空间体验随着工业化向数字化的发展,更多的新型工厂也不再仅仅是单一的生产场所,而是结合当代设计美学与现代生活的复合型业态,企业的总部办公楼既能顺应日益变化的新工作方式,也是展示业主的形象、产品与服务的平台,是员工工作、生活和社交的空间,传达着企业的价值观和责任感。DUTS杜兹设计在园区的打造上采用了建筑与室内一体化的设计策略,让建筑亮点与室内功能有效结合,利用建筑造型创造出独特的空间体验。利用悬挑的建筑造型在室内形成自然的落差,设计师为道生天合的总部打造出错落有致的开放式办公空间与阶梯状的大型报告厅,结合有序排布的室内布局,创造出更加开放、多元、复合与共享的总部办公体验。


利用建筑自然引入的光线,给员工带来生态化,花园式的办公氛围。室内装饰材料整体选用了工业感的灰色,与整体大气的空间氛围形成呼应,也符合道生天合“从复杂的自然规律中提炼出简洁稳定的解决方案”的企业理念。在一层与二层的连接空间,设计师通过质朴的木色创造出温暖而明亮的空间氛围,让空间呈现出自然的高级感,也为员工营造具有人文感的办公体验。


设计师希望为员工创造一种“在自然中工作”的感觉。两层全通透的内庭玻璃幕墙使360º的花园景观成为可能,中庭花园通过交叉通风和自然采光营造出一个舒适的小气候。办公空间的设计语言是现代简洁的,生机勃勃的中庭景观成为最浓重的色彩。不论是从一层步入花园,小憩停留去感受自然,或是从二层向下俯瞰,一座随季节更替、勃勃生机的花园正渗透入建筑的各个空间,让使用者既能欣赏风景,本身亦成为“景中人”。通过建筑形态在建筑内部创造的花园,带来了更多人与自然之间的互动可能。设计师在室内空间中通过大幅镜面形成天然的取景窗,引入自然光线与四时变化。空间内的另一侧,用质朴的木色做包裹与铺展,与自然景观形成呼应与对话。整体的空间设计没有采用复杂的装饰,而回归了自然的质朴,也与业主绿色环保的企业愿景相符。



精细化工程管理,把握项目中的点滴细节DUTS杜兹设计也为业主提供了精细化的工程管理服务,确保项目推进过程中的点滴细节。我们相信,一个好作品是在需求方和设计方的共同孕育中完成的。建筑的体验来源于一个整体,从结构骨骼到空间表皮,从理性需求的满足到感性细节的触发,需要把控到结构、空间、布局、材料、灯光每一个细节,来呈现一个内在基因与用户连接沟通的作品。全新的道生天合超现代化企业总部园区,创新的建筑形态及空间布局,工业融合文化的丰富体验,世界一流的研发实验室,可持续发展的高效环保型生产线,将会是国内乃至全球高科技材料行业中一道亮丽的风景线。


项目图纸

△区位分析图

△总平面图

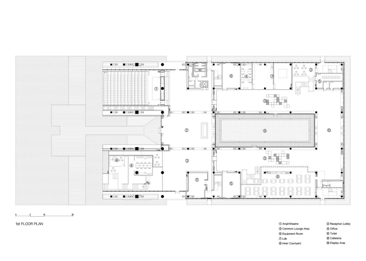
△一层平面图

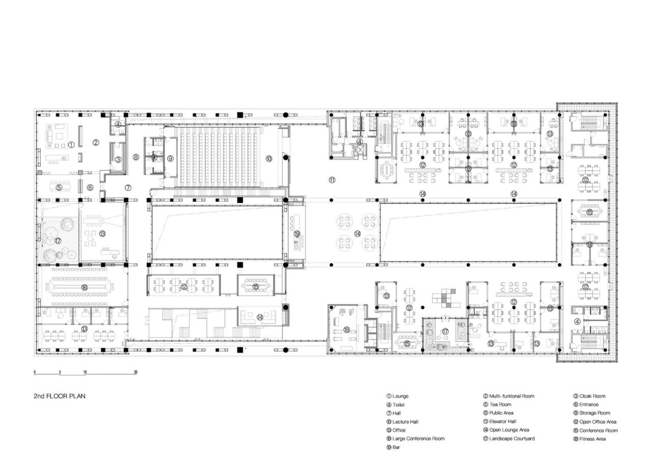
△二层平面图

△立面图

△立面图

△立面图

△立面图

△立面图

△剖面图

△剖面图

△剖面图

△功能分区图

△位置分析图

△室内功能展示

△结构分析图
项目信息
建筑师:DUTS 杜兹设计
面积 :25802m²
项目年份 :2022
摄影师 :吴清山
厂家 : UNITED (大峡谷),爱特尼特
主创建筑师 :钟凌
设计团队 :胡颖祺、万涛、董锋、陈晓锋、王琪
室内设计 :施望刚、刘颖、赵慧、Bruno Rodriguez、顾恬阳、苏蒋健、邬旺达
景观设计 :刘小慧、刘小璇、谈嘉悦
结构设计 :方向,张茂明,魏一昌,顾颖慧
顾问 :张文杰、邹抒
地点 :上海

BIM建筑网





评论前必须登录!
注册