

姬沐苒是个小女孩儿,父母为了让她童年过的轻松自在并且能在环境优美空气新鲜的环境中度过,所以决定为她在乡村“量身定制”一所房子。




△改造前
改造前的房子是一个比较中规中矩的,在北京周边常见的民居,房子两室一厅没有中庭。



我们与业主沟通后决定流留出中庭,并且丰富内部空间的流线关系。“回”字形流线是我们的首选,这样可以使空间的趣味性及功能性得以最大化发挥。



将地面做出高低差保持层次丰富,目的是为了沐苒在这个房子里可以“玩儿”起来。



中庭北侧是客厅,南侧留有一门可以经过建筑南立面上外挂的楼梯通往屋顶上面,一家人在房子里就可以感受四季的变化。



建筑南立面的外挂楼梯从功能上讲是必不可少的,放在这个位置是想与对面山脊上的长城产生对话关系。建筑东立面位于一条上坡路的中段,是邻居们回家的必经之路,所以我们将建筑入口和一个半户外的阳台留在这个立面上,希望可以保留和感受乡村的“人情味”。


我们保留了两间卧室的原始设计,不过位置有所变动,放在了建筑的南侧,并为两间卧室分别开了大窗,透过窗户可以看到对面山上郁郁葱葱的树林和山脊上的长城。












项目图纸

△模型图

△模型图

△模型图

△模型图

△模型图

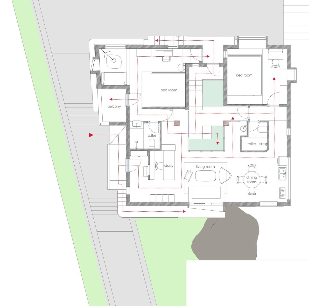
△平面图

△屋顶平面图

△爆炸图
项目信息
项目名称:姬沐苒的家
建筑事务所/公司/机构/单位:阿穆隆设计工作室
公司所在地:北京市朝阳区草场地艺术区
项目完成年份:2021.12
建筑面积:145㎡
项目地址:北京市延庆区石佛寺村
主创建筑师:阿穆隆
微信公众号:xuebim
关注建筑行业BIM发展、研究建筑新技术,汇集建筑前沿信息!
← 微信扫一扫,关注我们+

BIM建筑网





评论前必须登录!
注册