KEEP PATCHING
我们希望用点滴努力
无限更新
明日生活方式
–ifanr

Wutopia Lab 受数字潮牌爱范儿(ifanr)委托在广州 TIT 创意园中创作了 Popped Orange——未来社 HOUSE 于 2022 年 9 月落成开放。这个以「光塔」为枢纽,以「糖」为隐喻的垂直微型社交综合体是甲方爱范儿联合 Wutopia Lab 以一次开放的设计实验方式进行的,以一次名为 Keep Patching 的城市社区和生活方式更新活动,它是一个探索咖啡,酒吧,展览,剧场及观光等灵活场景于一体的社区试验场。它也是 Wutopia Lab 自 2015 年推行的城市微空间复兴计划的第一个广州样板。



两位创作者的野望
爱范儿的创始人 Wilson 认为,「人生何尝不是一个打补丁的过程,凡事未必都得推倒重来」。补丁(.Patch)并不只是修补,也是构筑明日生活方式的武器;自我更新(self-augmenting)也是一种生活哲学。最后这个观点被抽象为著名科技和生活方式媒体爱范儿的价值主张:Keep Patching(无限更新),并形成了涵盖 People、Art、Tech,City,Howto(Tool)五个领域的「 Patch_in LAB 社区实验」。爱范儿在这些领域集中探寻:什么是更智能和高效的生活,更可持续的生活,更注重美感的生活,更平等包容的生活……Wilson 认为社区实验既是我们探索明日生活的方法,而本身就是一种明日生活方式。


Wutopia Lab创始人Shanghailander俞挺相信复杂系统这个新范式可以打破以经典力学为基本范式的建筑学内卷的状态。我一直把接受的项目看成具有超文本链接的复杂系统。建筑不仅仅是我们习惯讨论的那些陈词滥调,它和多样多元的身份以及生活甚至我们试图隐藏的各种思绪还有庞大的虚拟空间都有着重要的联系。建筑不是作为物体而是作为事件而存在。



两位不同领域的创始人,Wilson和Shanghailander在不同的方向思考并取得共识,最后决定在未来社HOUSE这个项目上合作。


开放的设计并不意味着冒险
未来社HOUSE一边是广州纺织机械厂原址改造而成的TIT创意园,另一边则是将要建成的大型城市公共建筑广州科技馆,美术馆。它正好位于边界。你可以把未来社HOUSE看成是城市更新迭代中的一个橙色补丁:介于过往与未来,跨越线上与线下。



日本社区设计师山琦亮说过:不是设计只让 100 万人来访 1 次的岛屿,而是规划能让 1 万人重访 100 次的岛屿。所以我决定在丰富多样生长的TIT园区里创造一个抽象纯粹的椭圆形岛—白花园。而岛上的主体就是作为一颗糖的立方体未来社HOUSE。这是我设定的最初的plot。但我没有强化细化每个细节,因为我决定做一个开放设计的实验。它规则简单。可以容错,可以容纳不同人的意见甚至小情绪,可以升级,可以创造我不知道不理解的事件。多样多元,通过打补丁,它甚至是一场永远不会结束的设计实验。作为Plot的「未来社HOUSE」是这个复杂系统基础程序。它可以不断打补丁,更新升级。有固定的部分,也有生长延展,设计代码被有机的组合在一起形成一套具有完整形象但不断扩张生长的可持续的复杂系统。


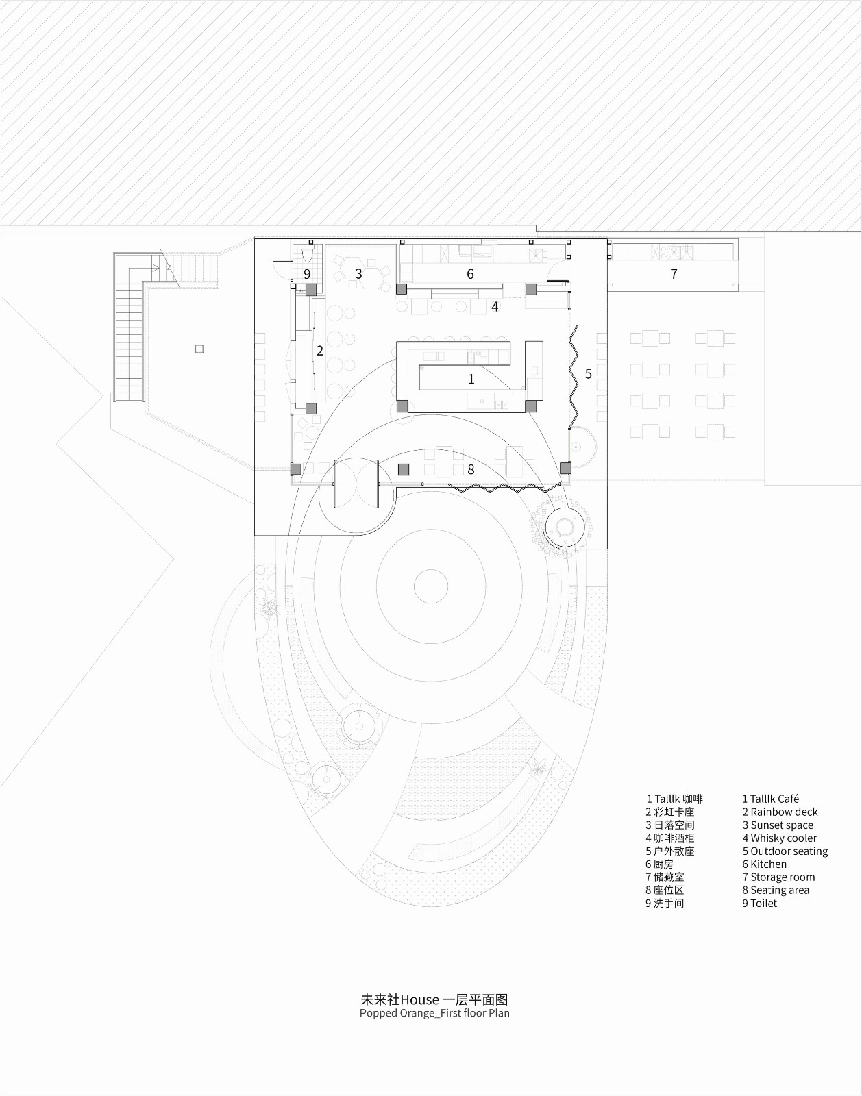
作为基础程序的未来社HOUSE有三层
第一层 底层
Sunset Room:
未来社HOUSE 首层内部的中岛环形吧台是整个空间强化社交氛围的主角。座位环绕吧台自由布局,内部空间可容纳约60人。当折叠门开启,咖啡空间与白花园合为一体,变成了可容纳180人的派对场地。这样使用场景就会更自由,更多样。


TALLLK Café 及「日落俱乐部」— Sunset Club
Wilson曾问室内的橙色圆形会不会太多,我,Shanghailander的回答是:恰好。如同落日的光,不同橙色嵌入墙壁, Popped Orange空间中的橙色圆形/半圆形,加以反射和照明,实现了日落时分的放松、愉悦、温柔,这恰巧与未来社的「日落俱乐部」不谋而合。Sunset代表着白天和黑夜的切换,夜幕降临,灯光开启,咖啡吧台,在夜晚变身为《女神游乐厅的吧台》,夜间模式下背景墙上的温柔灯光,穿过酒柜上的酒,把醉意调和到了空气中。


首层的日常运行是 TALLLK Café、Black Host(手冲咖啡)、Spirit Line(酒)。而特别运行可以依据不同品牌合作/快闪在这个场所举行多元经营和运营的实验。爱范儿刚刚发布的产品品牌「制糖工厂」在这里开展了一个生活场景与桌面周边结合展示的 ReMake.Space「桌面计划」。



第二层 中层
中层是漂浮于白花园之上的橙色立方体,是建筑的主要实体,象征着爱范儿的产品理念「好产品就是一颗糖」,未来社 HOUSE 就是 TIT 创意园里的一颗橙色水果糖。

Air Show—天台美术馆 :
二层内部空间应运营需求而灵活多变,不设置固定隔断。3m 高度以下为白色展墙,以上保留原混凝土,内部利用活动阳光板隔墙,围合活动空间。透过长形条窗,方形天窗,玻璃门,自然光也加入到了空间渲染。在试运营期间的第一个活动,是由爱范儿和苹果公司联合举办的「 Shot on iPhone 街头拓印· 影像作品展」,以街头手工艺人为主题,「拓印」那些不应消失的城市影像。未来这里会发生更多精彩的事件,每当你到达二层入口,永远可以享受开箱惊喜。



二层的日常运行是Air Show 天台美术馆(展览空间),应特别运行可以变身live house、分享空间,表演空间和Party空间。


第三层 顶层
Secret Roof:
屋顶是花园,也是秘密的 Party 乐园。无遮挡的天空,让人晚上可以看到月亮运行的轨迹,这便是一个月光营地,Moon Camp。Wutopia Lab 设计了两条到达屋顶的路径,让动线可以根据运营需求,调整屋顶活动的入口和出口。


Port与天空连接 :
活动期间,西侧可以看到TIT创意园中的砖墙老厂房,东侧可以看到建设中的广州科技馆和已建成的广州美术馆,背靠老工业遗址,面朝科技新生活,这个天台拥有广州甚至全世界独一无二的景色,这不像是一个秘密地点,更像是你站在了历史河流里某个秘密时间点上观察广州这座城市,在这时,你更能感受到风的速度,而广州塔就在不远处。

屋顶的日常运行是 Moon Camp(月光营地),而特别运行是Port(光塔),是有趣、有仪式感的场所更可以是 Party 舞池,露台营地,尽情烧烤撸串。

人生是一段不断打补丁的旅程
开放的设计就意味着在设计过程中需要随时应对现场情况做出不改变设计原先框架的调整,这就是打补丁。


光塔
应Wilson提出的户外钢梯要艺术化。Wutopia Lab用钢,阳光板和白色创作了一个作为未来社HOUSE 橙色主体的下句:作为光塔的楼梯。 我的要求是结构高度11.27m的光塔不能和主体粘连,而且要轻,结构不能作为表现要素。不负所托的老胡(出现了好几次的结构工程师)仅为光塔设置了一个300mmX300mm独立钢柱就让楼梯矗立起来。


半透明的光塔既作为垂直交通联系了未来社HOUSE的三层空间,同时也是一座户外立体公园或者是户外展廊。楼梯围绕结构钢柱盘旋上升,形成四个方向的休息平台,休息平台悬挑无支点,梯段互为支承共同作用,这样的空间结构受力复杂,与常规的平面结构不同的是需要有足够的抗扭刚度,老胡按空间结构进行计算分析和设计。特将钢踏步板置于两根梯段梁的内侧并焊牢,钢踏步成为整体受力的一部分。以空间3D建模计算更好的模拟了实际受力状况,保证设计出来的构件截面更轻巧。游客经过二层的展厅和三层的天台后可以继续到达光塔的顶部。这时的楼梯功能独立成一个眺望远方的景观位,于是广州塔,赤岗塔,TIT水塔,以及正在建造的广州科技馆、美术馆以及花园里三棵树的微微摆动的树梢都在视线掌握之中了。


白花园
Wutopia Lab在地面层创造了一个无边界且保留了现场的乔木的椭圆形白花园。我的要求把原来微坡且杂乱的场地变得纯粹干净。首先要保证椭圆的准确完整来把有些零散的边界明确。第一步确定同心椭圆圆心的定位,结合场地景观设施布局密度,确定形成圆心15°X24的圆心角均分,利用角度、弧长、圆心到各椭圆距离等复合性定位,从多方面确保场地放线的精准与数据相互校正的可行性。


其次需要通过测绘保留树木位置和土层标高,使之与花园改造高度匹配。精细的地勘察测绘可以避免改造过程中临时遇到的现场旧有设施的冲突导致设计无法保证执行。建筑师通过缝隙式排水沟的应用,景观线性灯带的暗藏,水景溢水口与排水口设置于景观桥底等一系列对不利于景观效果的设施与元素进行针对性细部设计即设备消失术的方法,保证了一个完整纯粹的白花园镶嵌在TIT园区中。



我坚持用了白色水洗石做地坪。用红色水洗石做舞台地面。经过比较,接受Wilson和阿兔的建议,放弃了天蓝色水洗石做水池。白花园中这条白色月牙形的水池,区分了花园的内外场。游客可以跨过拱桥到达被弧形座椅环绕的内广场,进入爱范儿(ifanr)的「ifland 如果宇宙」。树池和建筑入口的圆形元素,就是小宇宙中的一颗颗行星。

平日里,可以端一杯柠檬冷萃,坐在树下享受独处,亦可以三五好友下班后,来听一场露天音乐会,到周末更有未来社多样丰富的社区活动:集市、脱口秀、Yoga、Swing Dance。这里是有趣人类事件发生地,而当室内帷幕落下,花园又成为了观众看台。ifanr的多元的运营模式,打破了行业边界。KEEP PATCHING,于是这个花园一定不是一成不变的,她将不断生长,更新,保持“未完成“的状态。

Lighting
未来社HOUSE的日常运营模式包含了非常丰富的社区场景,场景模式分为平日咖啡模式和深夜酒吧模式,通过Lighting.patch来一键切换。景观照明有冷暖两种色温,橙色体块被色温3000k的建筑泛光烘托的更加温暖,而光塔上从半透明阳光板上洗下来的4000k冷光源,优雅的回应着主体的热烈,仿佛一对儿舞伴,在夜曲中起舞。





室内照明则兼顾商业展示和社区生活双重需求。首先灯光勾勒出原有结构线条,营造温柔自然的光线基调;接着用轨道灯对主角「吧台」进行重点刻画,如剧场追光,顾客可欣赏咖啡师拉花,调酒师摇酒,加强表演属性。卡座区立体灯光组合,形成富有节奏的空间光影;在临窗的座位区,控制合适的亮度与外界相融,避免较高的照度破坏舒适度与空间氛围。



基于ifanr对于未来社区的探索和塑造有着强烈的先锋意识,照明提供了触摸未来形态的载体。未来社HOUSE的Lighting.path将建筑设计、景观设计、运营活动以及场地象征调和在一起,而构建出有生命力的光与影。


Popped Orange
Wilson发给我一张未来社HOUSE白色立面的现场照片。我突然改变主意,把白色立面改成提炼自爱范儿(ifanr)标识里的橙色。白色是大家都能想到的,但橙色则需要有语不惊人死不休的勇气。经过一次调整,把橙红色改成橙色。最后它就是在灰色工业遗址中跃然而出的Popped Orange。

条纹屋顶
因为疫情,我和团队无法去现场。更新的速度也很慢。这反而给了我可以调整和细化的机会。那天我注意到橙色立面在屋顶女儿墙压顶线结束,屋顶和女儿墙内侧均为白色时,心念一动,为了纪念被拆掉的阿那亚海魂屋,我决定在以屋顶天窗展台、入口以及露天吧台为源头,拼出橙色几何构成纹路作为第五立面形成屋顶的视觉形态。它最后将Popped Orange这个视觉主题完整表达了。


东立面
我在照片中看到面对科技馆的东立面上出现了凸出墙面的壁柱和落水管。这施工破坏了原设计一面光墙的要求。我没有要求恢复光墙,而是请阿兔设计了类似格栅的肌理在视觉隐藏了柱子和落水管并使得东立面有了一些装饰主义的味道。

胶布人:HELLO,I’m .Patch
爱范儿相信除了众所熟谙的图文和视频外,建筑、沙龙、课程、艺术展、咖啡馆……一切可以表达理念的,都是媒体。对多元文化的尊重和不同媒体形式的大胆探寻,衍变出「胶布人」的理念——胶布人是由胶布和补丁勾勒的符号体,是爱范儿(ifanr)所提出的 .patch 理念的视觉 IP 体现。既然未来社 HOUSE 是胶布人的家,我就把一个巨大的胶布人呈现在立面上作为宣言。




理解和尊重才是甲乙方应该有的基础
甲方如同君王主宰乙方,或者于此相对,乙方顽固地拒绝甲方的任何意见。我认为这两种关系都是不正常。尽管Wilson是个建筑爱好者,但他理解尊重我。尽管我有些行业名气,但我乐意学习和倾听Wilson许多有趣的不止于建筑的想法。我尊重他的信任,并从他的想法中激发自己未开发的思考而创作出超乎他想象的作品。这种甲乙方相互激励理解尊重的关系才是保证这个开放的设计不是一种冒险的基础。

落成仅仅是开始
Popped Orange/未来社HOUSE作为一个令人向往的社区,必然是可以让志趣相投的灵魂相识相知,源源不断迸发出新鲜的创意和灵感。它落成的当天仅仅是更有趣的开端。Wutopia Lab联合爱范儿的制糖工厂发布了限量版硬糖充电头。这个吸收了未来社 HOUSE 视觉特征的充电头是建筑设计的一次周边化。而未来,建筑设计并不拘泥于所谓的物理空间场所而能够以更细微的触角进入我们的生活而影响我们。

建筑是一件华丽的工具
帮助我们创造
日常的奇迹
–Wutopia Lab
项目图纸




△建筑生成图



△展厅变化

△西立面图

△东立面图

△北立面图

△南立面图

△剖面图

△剖面图

△折叠门示意图
项目信息
项目名称:Popped Orange/未来社HOUSE
设计公司:Wutopia Lab(建筑、室内、景观)
主持建筑师:俞挺(Shanghailander)
项目建筑师:李灏(阿兔)
设计团队:王志铮,蒋心平(实习)
照明顾问:张宸露,尉诗羽,杜雨轩
深化公司:上海三益建筑设计有限公司
建筑专业:祝宇梅,杨佳
结构专业:胡文晓
机电专业:石佳莹,毛浡,茅娅倩,邹雨恒
室内设计:于兵,沈睿,邵彬
景观设计:王粲,郭雨琪
摄影:吴嗣铭 ifanr
视频:吴嗣铭
(未备注©ifanr均为吴嗣铭拍摄)
建设单位:爱范儿
施工单位:河源市御宸居装饰有限公司
景观施工单位:珠海御园景观工程有限公司
项目地址:中国,广东省,广州市T.I.T创意园
建筑面积:177.8㎡
设计时间:2021.12-2022.1
竣工时间:2022.8

BIM建筑网





评论前必须登录!
注册