
楔子
芯光大厦位于苏州高铁新城站前广场视廊上,是高铁新城区域第二至高点,这个集150米超高层办公、街区商业,幼儿园等多种业态于一体的地块,成为高密度开发的典范,苏州高铁新城的南部门户。
项目概况
芯光大厦位于苏州高铁新城核心区西南角。基地三面临城市主干道,是中央公园和滨河景观两条城市天际线的重要节点;基地南侧为滨河绿地,北侧为中心公园,景观资源得天独厚;基地周边配套完善,靠近三个地铁站,商务办公优势明显。

△ 区位分析
苏州高铁新城中轴线上的地标
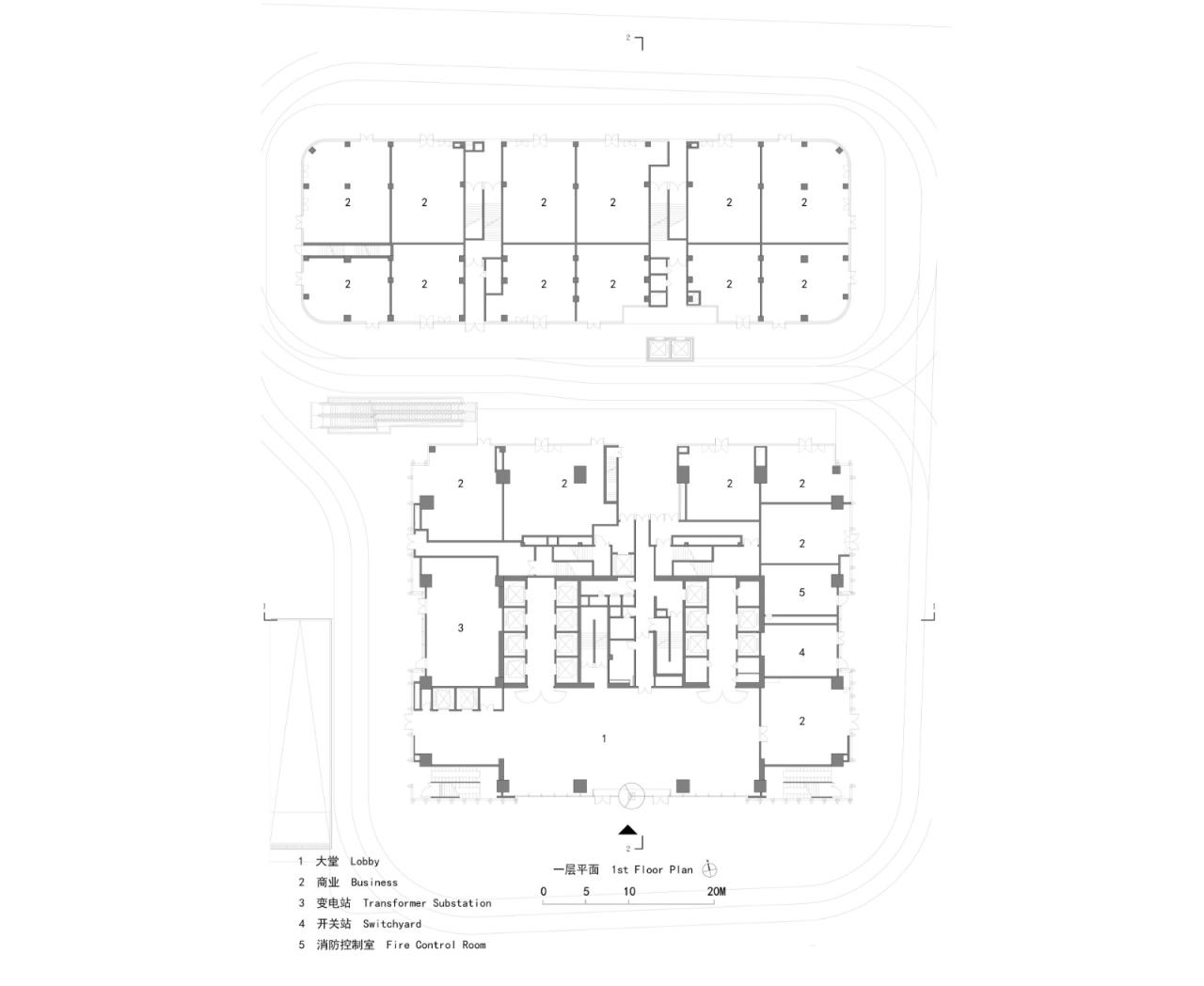
芯光大厦地块用地面积1.5万㎡,项目容积率高达5.0,总建筑面积11.2万㎡。规划条件中要求在本地块设置一座占地不小于3000平米的12班幼儿园。在如此高密度的地块中,如何高效的组织街区商业、超高层办公及幼儿园流线,使之互不干扰,成为此次设计的难点。

△形态生成
本地块与东侧的三个地块构成了连续的商业内街,故将商业和塔楼置于地块东侧,同时将超高层塔楼落位于高铁北站中轴线上,突显出塔楼的尊贵地位;商业裙房与东侧地块统一打造整体性、宜人尺度的商业空间。幼儿园位于地块西侧,用地独立,主要朝向西南方向,减少塔楼对幼儿园的日照影响和压迫感。

立体交通系统
由于地块周边道路等级较高,加之地块本身高容积率的特点,与幼儿园接送交通叠加影响,交通压力不容小觑。地块共有两个坡道,从南侧道路进入,北侧道路驶出,单向交通能够最大程度缓解淤堵,实现快速进出。

△幼儿园接送流线
设计团队为幼儿园接送设置了地面临时蓄车通道和地下接送区;当需要泊车接送时,机动车从南侧坡道下地库,到达负1层幼儿园接送机动车等候区,停车后就近沿扶梯上至地面到达幼儿园门口接送。通过立体的流线设计缓解了地块交通压力,使接送更安全高效。


塔楼交通设计
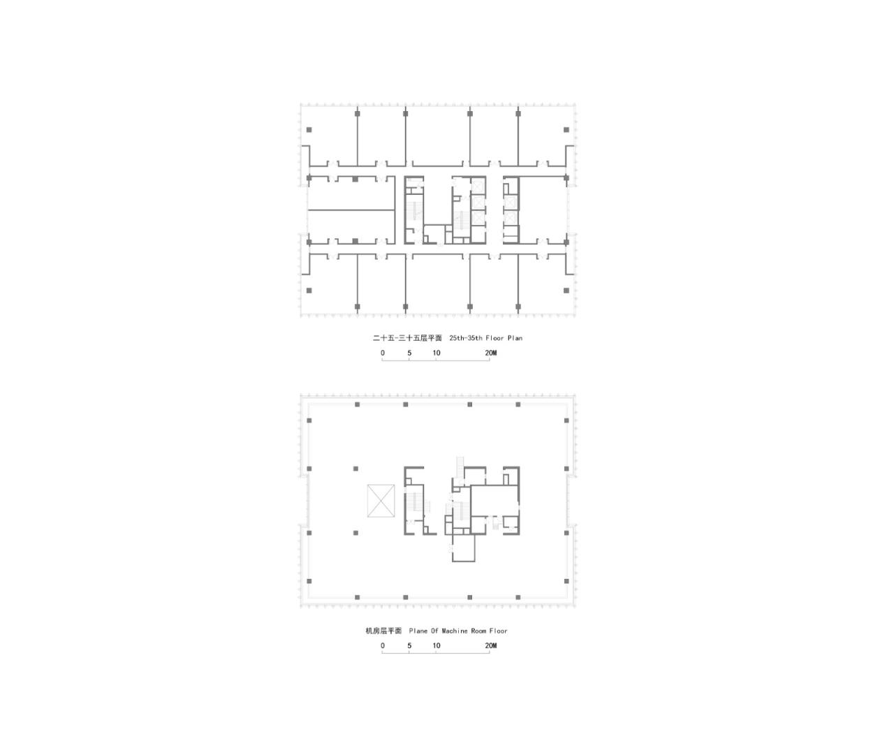
芯光大厦是一栋150米超高层,共35层。其中1-4层为挑高大堂和商业裙房。塔楼标准层面积约1800㎡,办公层高4.15m,净高2.75m。在超高层塔楼设置两处避难层,两个避难层自然地将塔楼分为低中高三区,每区各有4台电梯,以及一部上下贯通的消防梯兼货梯,共计13台电梯。

立面:高山流水遇知音


芯光大厦以及东侧MOC芯光里商业街区的主题都是音乐,作为本区域最高的建筑,建筑表皮引用了《列子·汤问》中伯牙鼓琴的典故。竖向错动的折线装饰铝板形成波纹状的韵律,像高山流水般倾泻而下,又似琴弦波动时形成的波纹般跳跃。

T1塔楼标准段幕墙系统:标准塔身采用竖明横隐框架式幕墙,上下左右错动的折线装饰铝板即是装饰元素,也隐藏了背后的开启扇,通过侧面的穿孔板达到通风效果。

T2塔楼塔冠幕墙系统:为保证塔楼整体效果,塔冠后侧背衬铝板,遮挡结构构架与设备。泛光照明结合竖向装饰条布置,突出建筑天际线效果,打造城市地标。

T3塔楼幕墙系统:芯光大厦塔楼采用VRV系统空调系统。在东西两侧立面设置通风百叶,遮挡设备平台,在设计之初将设备百叶纳入设计考虑因素,可以使设计更完整。

T4塔楼凹槽幕墙系统:塔楼形体组合而成,使塔楼视觉比例更挺拔。在凹槽采用颜色更深的玻璃,强化凹槽的阴影感。凹槽处取消竖向装饰铝板构件,而是采用横向通风器的形式隐藏开启扇。

细节之处精益设计
开启扇设计

竖向装饰铝板构件作为项目的点睛之笔,细节经过推敲,一比一放样,最终确定了尺寸和穿孔板图案。为了追求视觉上的“挺”,每个构件都由三块一层通高的铝板构成,其中侧面两块穿孔,形成一定的“阴影”效果,强化了立体的关系。构件最窄处截面梯形设计,一方面避免四块铝板交于一点的误差,另外也让观感精致而不过于纤细,保证整体形象简洁大气。

入口幕墙及雨棚设计
大堂中间三跨挑空空间幕墙采用悬挂式竖向幕墙支撑系统,最小化的抓点和超白玻璃实现视觉最大化通透效果。悬挑4m的雨蓬采用与立面装饰铝板一致的梯形设计元素。梯形底面为实体铝板,侧面为穿孔铝板,顶面有彩釉夹胶玻璃防雨。这种设计可以使白天阳光穿过百叶照亮入口。雨棚运用两种灯具,分别是顶部照明用的筒灯和雨棚端头照亮三角斜面用的泛光灯。雨棚上方隐藏一组百叶用于大堂排烟。

室内设计
室内设计延续了立面“高山流水觅知音”的主题,提炼竖向错动的线性元素加以演绎。大堂核心筒墙面采用斜切内凹的元素,与立面装饰折板呼应。整体采用米白,灰色,铜色及木色为主色,以现代轻奢的风格呈现时代脉搏,打造高品质商务办公气质。





结语

△施工现场
作为苏州高铁新城景观轴线上的地标建筑,芯光大厦项目通过对地块合理的布局,立体交通系统的打造,最大化挖掘了项目的潜质,通过合理的流线设计,商业动线设计,使不同业态之间分区合理,运营高效。精益化的幕墙设计,营造出简洁有力的建筑形象感,成为苏州高铁新城的重要商务新地标。
项目图纸

△总平面图

△一层平面图

△平面图

△平面图

△立面图

△剖面图
项目信息
项目名称:苏州高铁新城12#地块设计
业主公司:新城控股沪苏大区苏州城市公司
设计公司:GEN简和工作室
建筑规模:10.8万㎡
设计团队:沈迎、丁焰、付仲凯、逄忠辉、邹峰、苏书文、刘玉婧、王鹏
施工图团队:朱鲜红、马丹、冷竹青、蒋露、张建新、陈蓓、毛统斌、
周志伟、李叶芃
园林设计:广州山水比德设计股份有限公司
幕墙设计:浙江中南建设集团有限公司幕墙设计研究院
室内设计:上海飞视装饰设计工程有限公司
灯光设计:深圳普莱思照明设计顾问有限责任公司
建筑摄影:筑作视觉

BIM建筑网





评论前必须登录!
注册