
巴勒珍藏馆(The Burrell Collection)是欧洲最好的博物馆之一,也是为数不多的 A 类苏格兰战后建筑之一。珍藏馆拥有约 9000 件精美和装饰性的艺术作品,极其丰富的藏品来自的年代横跨 6000 年。



1983 年,巴勒珍藏馆被安置在由三位年轻剑桥建筑师学者 Barry Gasson, Brit Andresen 和 John Meunier 设计的、广受好评的博物馆建筑中。这座开创性的 20 世纪建筑由红色 Dumfriesshire 砂岩、抛光混凝土、不锈钢、木材和玻璃制成,位于距格拉斯哥市中心 4 英里的 Pollok 郊野公园的森林中。2016 年,代表格拉斯哥市议会提供文化、体育和学习活动的慈善机构 Glasgow Life 任命 John McAslan + Partners 为建筑师和景观设计师,领导博物馆的五年翻新和提升项目。



建筑师与专家团队合作,聚焦于三项关键目标:借助“结构优先”的翻新方法以无缝修复建筑物并改善其环境性能;加强建筑物的公园环境;并且在经过仔细考虑后于内部开辟选定区域,以通过画廊空间表达水平和垂直运动,继而在任意时间实现收藏比例的大大增加。


设计方案。建筑师在保留的现有入口东面增加了一个独立入口,其可从毗邻的铺砌广场进入,营造了一个体验增强的自然环境,游客还能于此放松和野餐、享受从东南角咖啡馆溢出的环境氛围。建筑师还在入口序列旁用一个全新的定向体块将博物馆与上侧的夹层画廊和下方全新开放的花园楼层串联;后者目前容纳了一个展览和一个与可见艺术存储空间、工作室、焕然一新的咖啡馆和远处公园相连的活动画廊。



John McAslan + Partners 事务所还为巴勒收藏博物馆设计了景观空间,事务所景观与都市设计工作室的总监 Andy Harris 全程操刀。他这样描述道:“建筑、公园和林地之间的关系是 1980 年代最初设计方案中的标志性表述。由此,我们对景观空间的‘更新’尊重了原初的设计愿景,并细致整合了全新元素以吸引新一代游客。”



就画廊空间而言,参观者将看到按主题策划分类的藏品,而沉浸式叙事手法也是该收藏博物馆策展的指导愿景。总的来说,与早先的展览安排相比,本次设计增加了 35%的画廊空间,并且大部分藏品都可于现场观摩,采用了轮换仓储的方式。更新后的巴勒收藏博物馆还获得了 BREEAM 的优秀评级,使该博物馆跻身英国节能建筑前 10%的行列,这对 A 类保护建筑的翻新和保护来说是一项重大成就。

















项目图纸

△总平面图

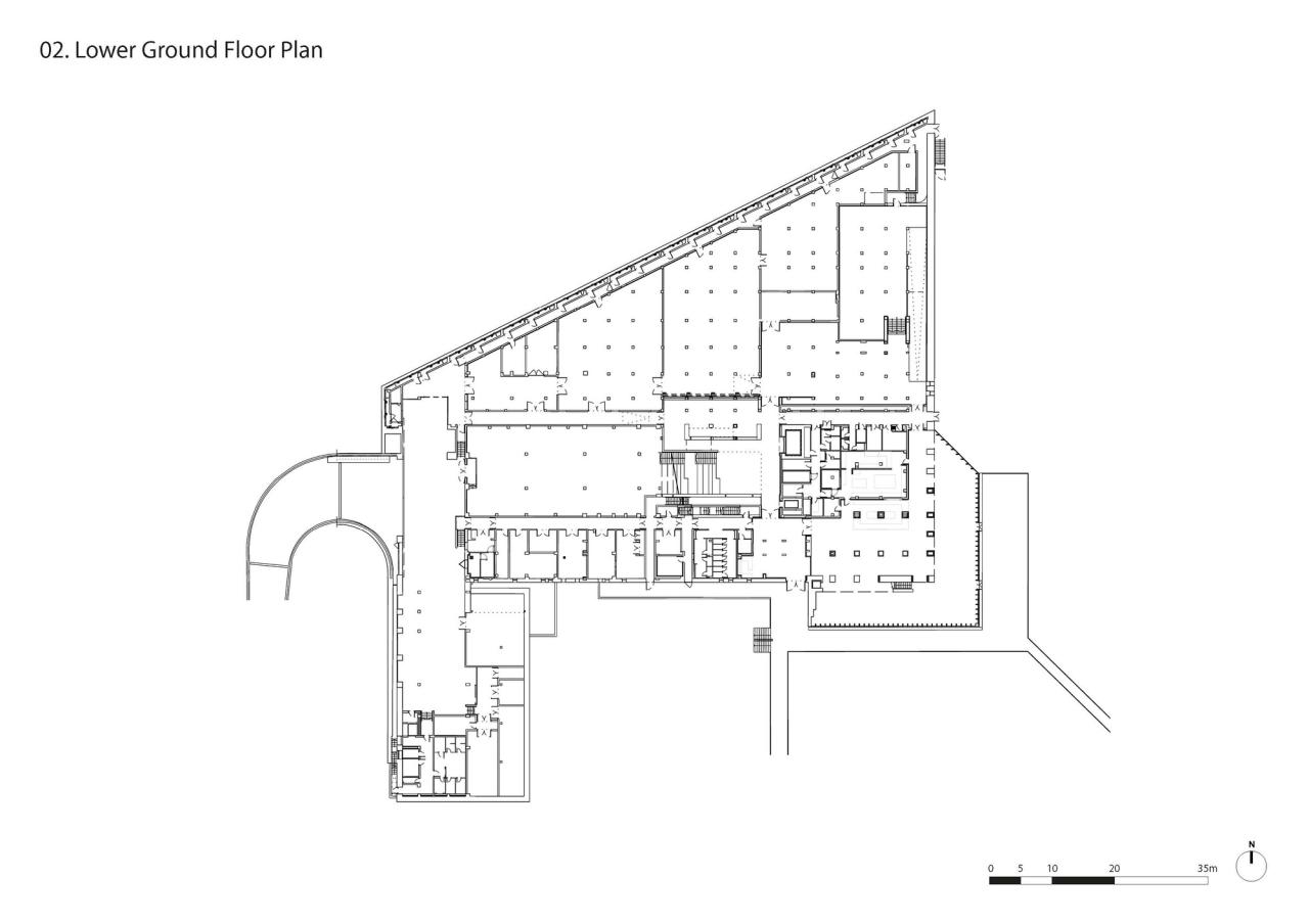
△负一层平面图

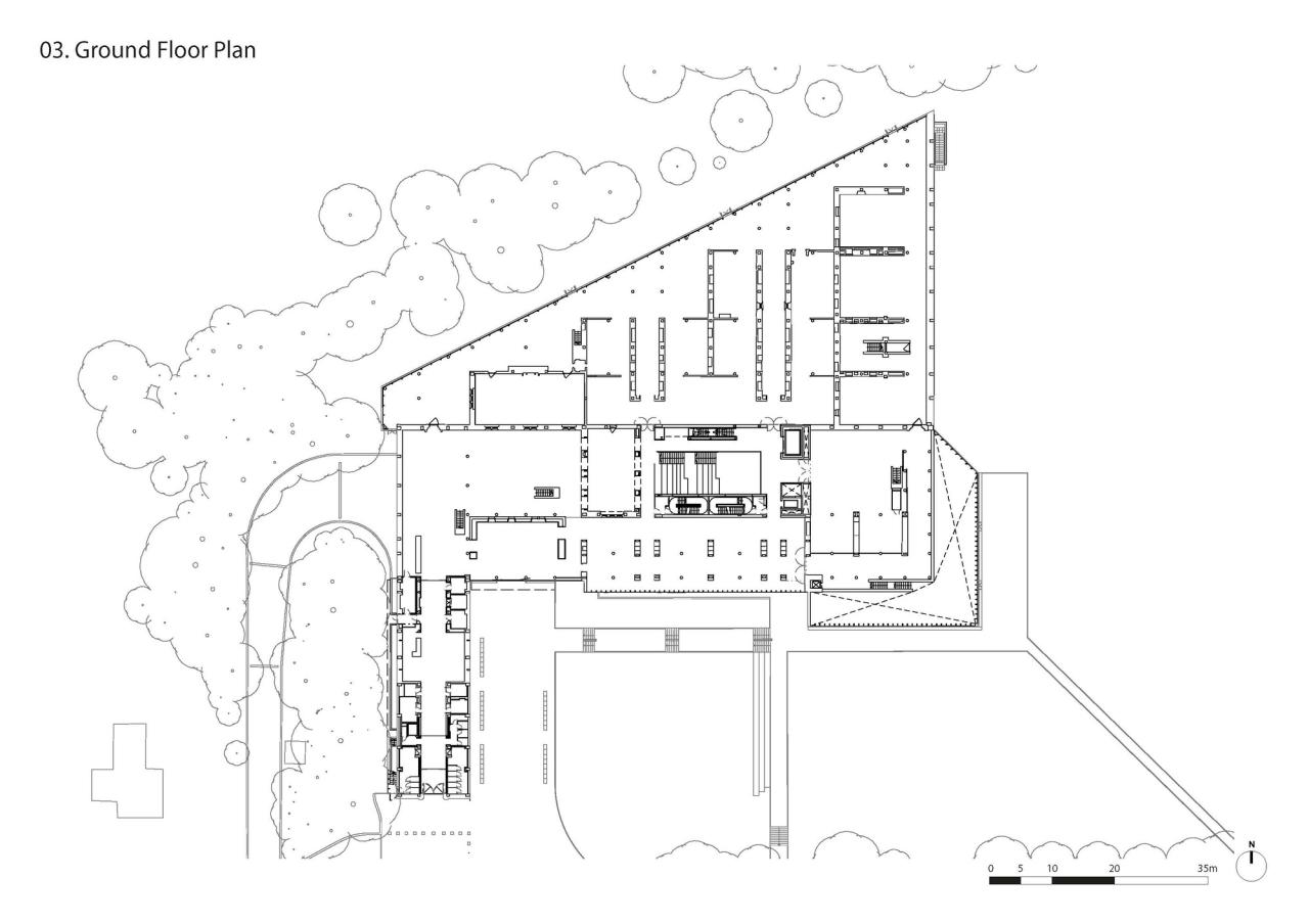
△一层平面图

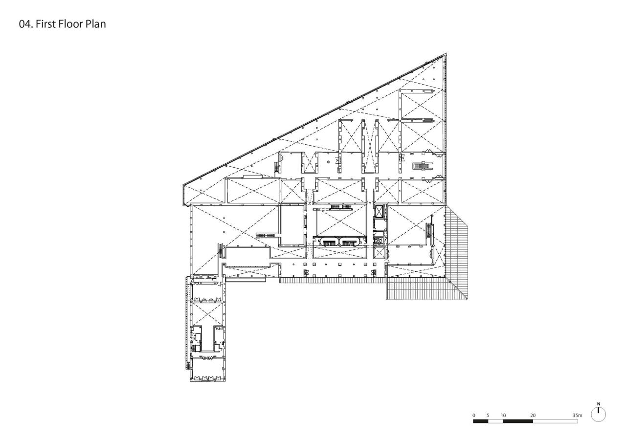
△二层平面图

△三层平面图

△屋顶平面图

△立面图

△立面图

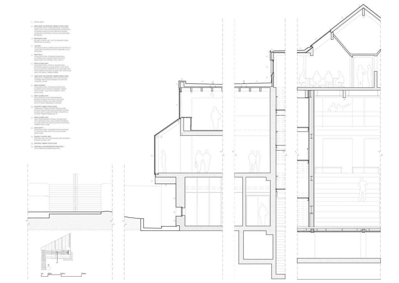
△剖面图

△剖面图

△剖面图

△结构大样图

△结构大样图

△结构大样图

△结构大样图

△剖透视
项目信息
建筑师:John McAslan + Partners
面积 :1325313253.0平方米
项目年份 :2022
摄影师 :Hufton+Crow
厂家 : Barrisol,CMS,Guthrie Douglas,Hunter Douglas Architectural (Europe),Kingspan Insulated Panels,Lazenby,Optima,Ronacrete
主创建筑师 :John McAslan
项目负责人 :Paul East
设计团队 :Chris Ravenscroft, Heather Macey, Katherine Watts, Tom Roberts, Paddy Pugh, Hannah Lawson
景观设计负责人 :Andy Harris
景观设计团队 :Celia Guerreiro, Kit Bullas, Kevin Simpson
业主 :Glasgow Life
建筑师 :John McAslan + Partners
防火工程师 :Atelier 10
立面顾问 :奥雅纳
结构设计 :David Narro Associates
主承包商 :Kier
项目经理 :Gardiner & Theobald
声学顾问 :Sandy Brown Acoustics
可达性顾问 :David Bonnett Associates
展览设计 :EVENT Communication
餐饮顾问 :Jo Headland
零售顾问 :Seeking State
导视设计顾问 :Studio LR
地点 :英国,格拉斯哥

BIM建筑网





评论前必须登录!
注册