
Vista Del Mar 成立于 1908 年,是一家拥有 114 年历史的非营利组织,其社会服务始于在南加州建立的首家村舍孤儿院。如今,他们提供了一系列应对创伤的社会服务,保障南加州儿童、青年和家庭的生活幸福。


位于 Vista Del Mar 校园中心的一座 1950 年代寺庙被改造和扩建为 Glorya Kaufman 表演艺术中心,该中心将成为 Vista Del Mar 创新疗愈表演艺术项目的所在地。该中心为学习和表演舞蹈、音乐和戏剧作品提供空间,同时也是 Vista 的犹太生活项目课程和假期服务进行的场地。艺术中心还配置了后勤、舞美、更衣、排练和教室等辅助空间。


这座建筑被设计成一系列表现动感、音乐和错动的小体块。半透明的外立面包裹着整个建筑,到了晚上,当灯光亮起时,艺术中心便成为了校园中一颗发光的心脏。除了增加独特的美感外,耐用的聚碳酸酯外墙由 100%回收塑料制成,并且可以在其生命周期结束时再次被回收。该设计的关键的挑战是尽可能多地保留现有结构。


寺庙的地基和结构楼板被保存下来,成为新建筑的框架。在立面的正后方,一系列有节奏的柱子创造光影效果。由此产生的渐变图案与主楼梯和大厅相得益彰,二者的平面宽度不断变化,创造出压缩和扩张的空间感受。这个概念的灵感来自Martha Graham 的舞蹈作品“哀悼”——舞者在服装中挣扎,隐喻许多自闭症患者每天经历的痛苦。



该建筑提供了舒适并能被灵活使用的学习空间,整体为浅色调,同时还具有照顾声音敏感人士的声学系统。独立房间的设计可容纳多种功能,早上可以用作教室,白天可以用作排练空间,晚上可以用作休息室。




10,550 平方英尺的艺术中心预算有限,但材料都经过了精心挑选,通常选用标准的现成饰面,因此具有几个关键的设计特点:包括剧院中带有声学效果的木梁,一个能适应不同表演要求的实木弹力地板舞台,以及在售票大厅、楼梯和入口大厅中使用的闪亮的白色水磨石。



















项目图纸

△手绘图

△手绘图

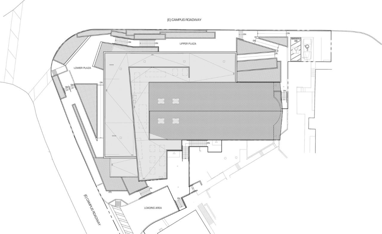
△总平面图

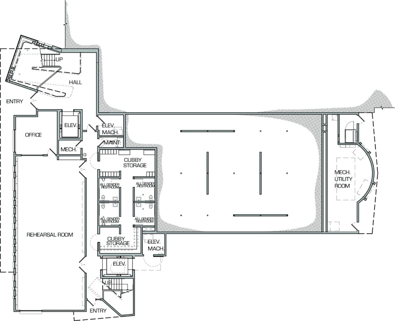
△一层平面图

△二层平面图

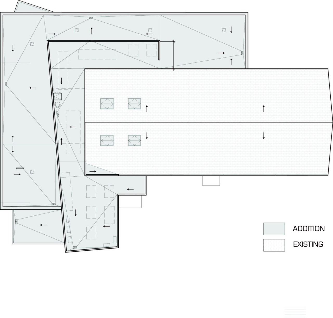
△屋顶平面图

△立面图

△立面图

△立面图

△立面图

△剖面图

△剖面图

△材质示意图

△材质示意图

△材质示意图

△材质示意图
项目信息
建筑师:AUX Architecture
面积:10550m²
项目年份:2021
摄影师:Nic Lehoux
厂家:Kohler,American Lead,American Standard,Arcluce,Armstrong,Babcock-Davis,Bega,Benjamin Moore,Bobrick,C.H.I. Overhead Doors,Caesarstone,CertainTeed,Corradini Corp,Custom,Daltile,Extech, Exterior Technologies, Inc.,Guardian Partitions,Harlequin,Johns Manville,Lightwall 3440 system, +17
设计师:Brian Wickersham
项目管理:Gardiner & Theobald, Sabina Lira
高级助理:Matthew Aulicino
项目建筑师:Sean McCusker
项目负责人:Taylor Nunes-Agins
总承包商:Shawmut Design and Construction
结构工程师:Nous Engineering
土木工程师:VCA Engineers
MEP:South Coast Engineering
照明设计:KGM Architectural Lighting
标识设计:Newsom Gonzalez
景观设计:SQLA
地点:美国,洛杉矶

BIM建筑网





评论前必须登录!
注册