
凤凰湖CBD是浙江嘉兴地区全球细分行业头部企业最密集的区块,从2010年起,随着振石大酒店和振石总部大楼建成,凤凰湖一南一北两座高层成为了城市标志。期间随着实体产业成为国家经济重心,全球玻纤领域排名第一的中国巨石集团也发展迅速。
2016年,客户再度找到栖城,开始就巨石科技大厦的定位进行探讨。对于快速变化的环境,客户希望建筑既能适应近期使用状态,同时要有灵活的空间管理效能,为未来留下更多价值转化的空间。

▲从大楼望见湖南岸的振石大酒店, 是环湖最早的超高层酒店,2007年栖城设计©栖城设计

▲凤凰湖CBD已经成为嘉兴地区全球细分行业头部企业最密集的区块,上图左一是振石总部(栖城设计)©栖城设计

▲从湖面看大楼,切面呈现出光影变化©栖城设计

▲切面和斜线构成的张力©栖城设计
巨石科技大厦位于桐乡市凤凰湖CBD中轴,面南向凤凰湖公园,东侧紧邻CBD的中央公园,于2022年5月正式投入使用。
功能体搭建
当前科技进化和工作模式迭代速度加快,确定性的功能和空间维持越来越短。这种情况下,我们需要重新思考办公空间存在模式。在空间使用中,边界越精确越低效,因此基于适应性的宽容设计是这次的重要点。

▲形体生成©栖城设计
大楼主体由120m和60m两座塔楼构成,南向湖面形成最佳观景视线,塔楼之间有2层活动中心连接,这个处于垂直中段的空中连接体成为大楼的活力场, 各办公层的人到达都很便捷。


▲从内院看向天空走廊©栖城设计
主楼副楼和空中活动中心三个体量以“┏┫”搭接,在观景面比例最大,分合自由度,经营的灵活性,服务效率等方面均能获得最佳,这也是最终选择这一形体的主要原因。
为了让塔楼和连接体的构成关系更加自然,我们将三个体量做了不同的切面处理,并让立面的机理顺应这种形体削切关系,与垂直面构成12°倾角,以此构建独特的幕墙体系。

▲主要功能分布© 栖城设计
裙房部分主体是沿着两幢大楼投影延伸的服务功能体,包括大报告厅、餐厅、接待中心、游泳等辅助功能, 裙房间形成的内院与入口大堂在一轴线上。

▲塔楼和配套裙房通过中庭院子组织©栖城设计

▲轴测图© 栖城设计
天空走廊
天空走廊位于副楼顶部60米高处,二层钢结构体被切面后生成5片倾斜的玻璃面,包含展示、会议设施、员工培训、休闲吧、健身等功能。平台顶部设置屋顶花园向着湖面展开,在这个高度可以一览凤凰湖全景,是整个片区内最佳的员工休闲活动中心。

▲通过空中活动中心,两个塔楼连接在一起©栖城设计

▲切片状幕墙叠合产生的丰富层次©栖城设计

▲体块搭建,天空走廊是位于中部的功能转换区和活力场©栖城设计

▲剖透视,内部楼板错位产生的通高中庭和通达屋顶花园的小院© 栖城设计

▲从天空走廊看凤凰湖,幕墙斜构件是通风窗,在室内呈现协调的变化©栖城设计
大堂和院子
两座塔楼的底部2层贯通,形成约百米的横向空间,纵向与水景庭院连接,形成 T型大堂。宽阔的横向空间是接待、人流组织和仪式性的场所;纵向庭院的回廊连接起主楼和辅助功能,庭院水景延伸到大堂形成柔性中轴,增加了进入的画面感和进深感。大堂采用了10m通高的超白玻璃,玻璃构件是上部斜向幕墙肌理的延续,并在接近地面处收缩收尾。

▲幕墙构件在大堂位置产生变化©栖城设计

▲大堂两边是10米高的通透超白玻璃,与院子景观连接在一起©栖城设计

▲内院水景和连廊©栖城设计
非对称的雨棚
雨棚由两片三角折板完成塑造,与大楼整体的切面手法对应,以主楼充满韵律的幕墙肌理为背景创造了一个显著的到达体验场,非对称的处理对于一个集团总部大楼而言有争议,这也是整个大楼中最后定的部分,好在客户尊重了设计师的建议,最终呈现效果也令人欣慰。
雨棚主材是阳极氧化铝板,在各种光线下都能透出浑厚的金属光感。



▲每块4米长的阳极氧化铝板构成的简洁入口雨棚©栖城设计
12°斜幕墙
大楼的体块做了多次斜切,形成些微小倾角,顺应切角,大楼主体采用的是12度斜的单元式幕墙。幕墙分格区域是平行四边形,这些斜线在展开面上是连续的,环绕建筑上升。斜线也是“幕墙结构体系、通风器、室外亮化系统”等功能汇集带,隐藏在玻璃间的通风器具有隔音功能,可24小时持续通风换气,基本不受室外环境的影响。
幕墙灯光位隐藏在斜线中,我们既要满足各个视角方向的灯光可见,又需要保证白天人视不可见光珠,因而采用了灯槽外侧加飞片的构造。同时,对飞片进行开槽处理,既保证效果,又在幕墙构件上产生了新的细节。

▲幕墙斜杆件是是“幕墙结构体系、通风器、室外亮化系统”等功能汇集带© 栖城设计

▲幕墙杆件上的通风器和飞片©栖城设计


▲每块幕墙玻璃是平行四边形,银白色幕墙杆件环绕建筑体连续上升©栖城设计
凤凰湖已经成为新城市中心, 今年5月,“桐乡发布”官宣了巨石科技大厦正式投入使用。这也意味着经过15年时间,在不同时期,我们与城市及客户达成了价值共识,我们设计建成的一系列作品,正在慢慢为凤凰湖CBD区域的自然生态、企业成长、产业发展乃至城市进化带来全新而美好的变化。

▲使用中©栖城设计
项目信息

▲总平面图,Site-plan © 栖城设计

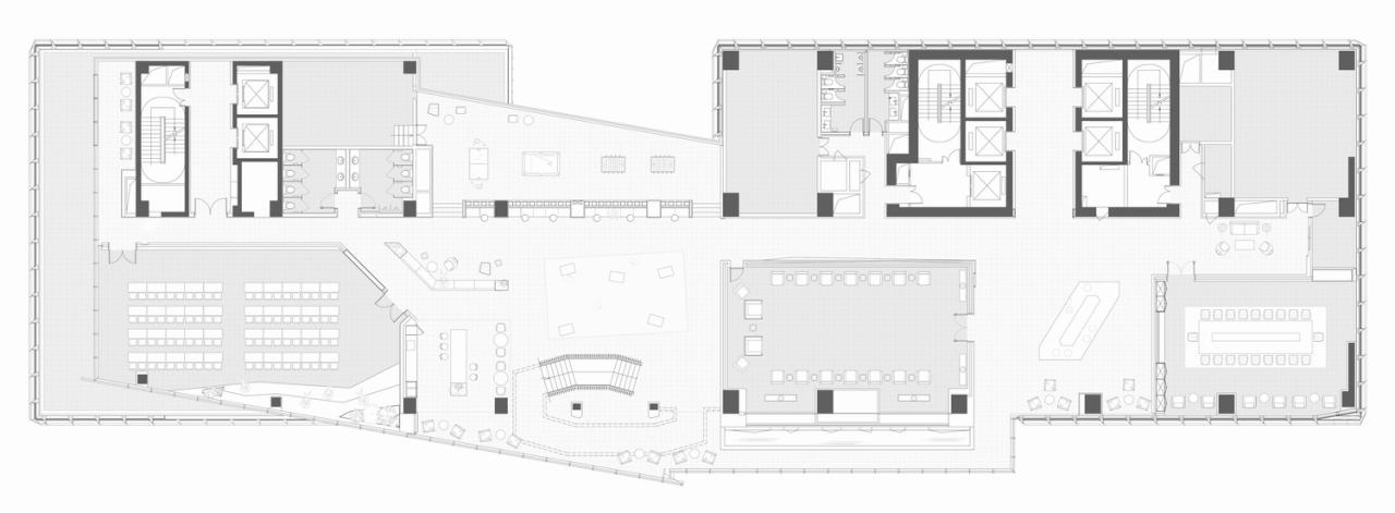
▲一层平面图,Plan level 1©栖城设计

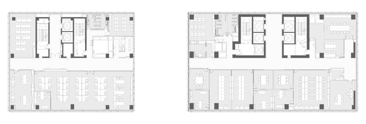
▲8F标准层,8F The standard layer©栖城设计

▲12F©栖城设计

▲13F©栖城设计

▲14F©栖城设计

▲立面图,Elevation©栖城设计

▲剖面图,Section ©栖城设计

▲剖面图,Section ©栖城设计
项目信息
项目名称:巨石科技大厦
项目位置:浙江桐乡
建筑面积:6.16万平米
业主单位:中国巨石股份有限公司
建筑设计:栖城(上海)建筑事务所有限公司
主创设计师:沈利江、施政磊、丁豪
设计团队:沈利江,施政磊,丁豪,于文彬,周畇姊,尹桂林,胡文渊,胡腾蛟,李奕昂,李壮壮
项目负责:施政磊
施工图设计:平安建设集团有限公司
室内设计:B+H
幕墙设计:陆启跃
景观设计:杭州原艺景观设计有限公司
灯光顾问:南京孔雀蓝照明设计有限公司
主要材料:玻璃幕墙、超白玻璃,氟碳喷涂铝板,阳极氧化铝板
建成时间:2022年
建筑摄影:梁文军

BIM建筑网





评论前必须登录!
注册