
云之园游客服务建筑坐落于深圳市南山区高新园南区的社区公园——云之园内,毗邻周边鳞次栉比的高层办公楼群,以水平向延展的开放空间服务于往来人群。2021年4月建筑师被邀请于公园景观设计基础上,设计一座小型建筑以服务公园游客。限于紧张的项目时间要求,并考虑减少现场施工工序对周边办公园区的影响,建筑师选用钢结构形式进行快速搭建,最终于2021年12月建成并正式向公众开放。



建筑设计概念呼应以“云”为主题的科技创新型社区公园定位,并回应场地景观设计中已有的圆弧形几何元素。建筑师提出用一条连续的云状屋顶连接起散落在环形慢跑道旁的书吧、卫生间、室外座椅和花园,为游客提供遮阳避雨的室内外休息空间,并以优美的弧形屋檐勾勒出天空、树木、云朵与城市的不同景色。


弧形檐口在景墙与地面上形成圆弧形的光影轮廓,并随日光流转不停变幻着,构成了随时间变化的阴翳礼赞。而从围绕在四周的科技园高楼俯瞰望去,恰似一片轻盈的白色云朵漂浮在树木花草的掩映之中,形成建筑与自然的互动对话。



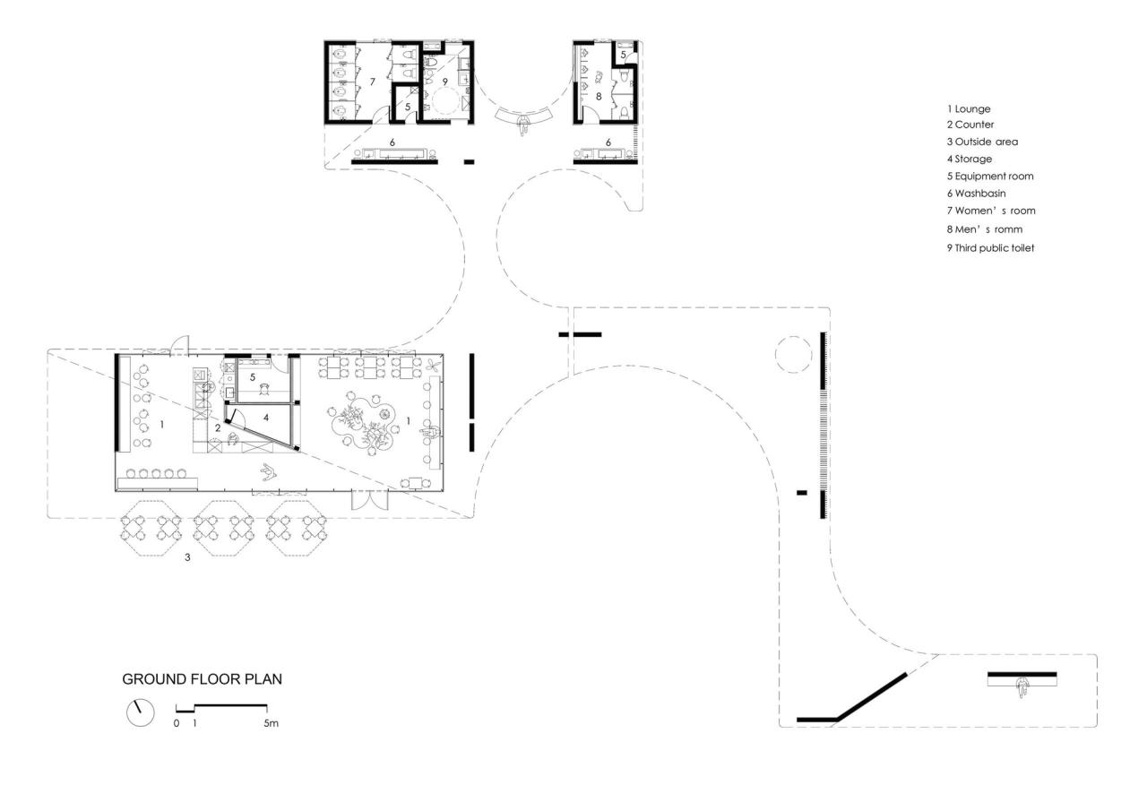
建筑室内由书吧和公共卫生间两部分组成。书吧室内以通透落地窗面向四周公园景观、并以木饰面温润的质感为匆忙经过的人群提供安静小憩及休闲交往的场所。室内外屋顶采用同色金属板及嵌入式灯光令室内外形成连续的空间体验。设计师特别定制了以“云”为主题的餐桌以及门把手等细节。



卫生间内部则以明快的色彩材质、尽可能通透的视野为游客提供现代时尚的空间体验。卫生间外墙采用露骨料白色水刷石工艺,室内墙面与地面采用带有石子纹路的水磨石材料,为现代化设施齐备的卫生间增添了与自然亲近的材料肌理。


在户外花园部分,设计师运用数字化设计工具定制出云浪花园起伏的户外座椅景观,成为亲子游客喜爱的地形花园。云之园游客服务建筑建成之后,书吧以及户外廊架区域成为服务周边工作人群的午餐茶饮去所。围绕着建筑举办了例如艺术写生、烘焙工坊等运营活动,逐渐成为汇聚了社区人气的场所。








项目图纸

△总平面图

△天花板反向平面图

△一层平面图

△屋顶平面图

△剖面图

△剖面图

△轴测图
项目信息
建筑师:一树建筑
面积 :190m²
项目年份 :2021
摄影师 :Chao Zhang,CRLAND
厂家 : Dasso,Egger,TERAZO
主创建筑师 :陈曦
项目建筑师 :朱静
设计团队 :黄家杰、何孟凝、翁策楷、朱珠、许焕诗、孙子越、张鹏
景观设计 :林俊英景观工作室 – 深圳市造源景观旅游规划设计有限公司
施工图设计 :中科(北京)建筑规划设计研究院有限公司深圳分公司
施工单位 :深圳市华邦建筑工程有限公司
地点 :中国,深圳

BIM建筑网





评论前必须登录!
注册