
现代汽车集团全球合作伙伴中心及庆州大学校园区坐落在韩国庆州市(Gyeongju)阳南面下西里(Haseo-ri)及素廉里(Suryeom-ri)的山坡之上,其场地海拔高度为 30 米。项目东侧及南侧拥有大海和海岸线宏大的景致,其北面及西面则与延伸至太白山脉顶端低处的山脉直接相连。这一园区是现代汽车蔚山(Ulsan)工厂及其为商业伙伴打造的全球合作中心的庆州大学校园区。而云观览者们往往会带着一个问题开始对项目的探索:“这一企业培训中心和度假酒店有什么区别?”


度假村或是酒店往往用于休息和放松,但这一项目却同时需要动态的张力及宁静的氛围。出于对此的考量,建筑师参考了如修道院等类型性的传统和功能型建筑。由此,这一项目旨在于场地上打造了两栋独立的培训中心。两座建筑各自有着ㄱ、 ㄴ的形态,并组合成为了ㅁ形排列的建筑群,从而在中心围合区域构筑共享的公共空间。建筑简单的体块致力于实现其简单的设计目标及愿景,从而以“极简”的手法丰富环境,同时与场地内的主、客观条件向融合。庆州大学校园区与全球合作伙伴中心被分别布置于两个层次的空间。此外,建筑与场地地形及景观相互作用,使其内部空间布局更为多元。并且,为了实现简约的大型体块,建筑采用了巨型桁架以支撑大跨度空间。



为了体现作为建设企业出身的现代集团的先锋精神,建筑师设计了跨度 50 米的无柱架空空间,这一区域如桥梁一般连接了两个主核心筒。“悬浮”架空空间的北侧空间享有庆州连绵山脉的景致,其南侧则直接向蔚山海岸线开放。此外,室内空间采用了与外部相似的设计手法,由此让其更具有城市色彩,并且室内的光线将随着自然采光量从早到晚的变化而随之增建。同时,中、小型培训室也可以作为通识教育空间使用,其大型或阶梯式培训室则是为这一园区度身打造的。另外,建筑还囊括了由桁架及幕墙定义的教室、一个仿佛藏匿于山间的圆形剧场般的开放式礼堂、一个像公园步道般的阶梯教室、“黑盒子”培训室、玻璃“盒子”及白色“立方块”空间。



此外,庆州馆(Gyeongju Hall)及合作伙伴厅(Partnership Hall)为典型的教育及展览空间。建筑师将庆州馆打造为档案区,并将合作伙伴厅打造为与商业合伙人共享的活动空间。同时,项目西北角两个培训中心大楼“相遇”之处也象征着这个企业的开始。


项目东南角处的建筑均采用了悬挑架构:这一空间向大海延伸,并展示了企业面向无限未来的愿景。对此,建筑师打造了可以产生“双重反应”的空间,由此让在此培训的学员可以以公司的潜力为荣,并同时享受大海的春暖花开。庆州大学校园区现在也作为大邱地区的新冠疫情日常防护中心使用,而现代集团全球合作中心则是旨在培训可以改善企业集团及其商业伙伴间关系人才、并受到韩国全国瞩目的培训中心。













项目图纸

△总平面图

△负一层平面图

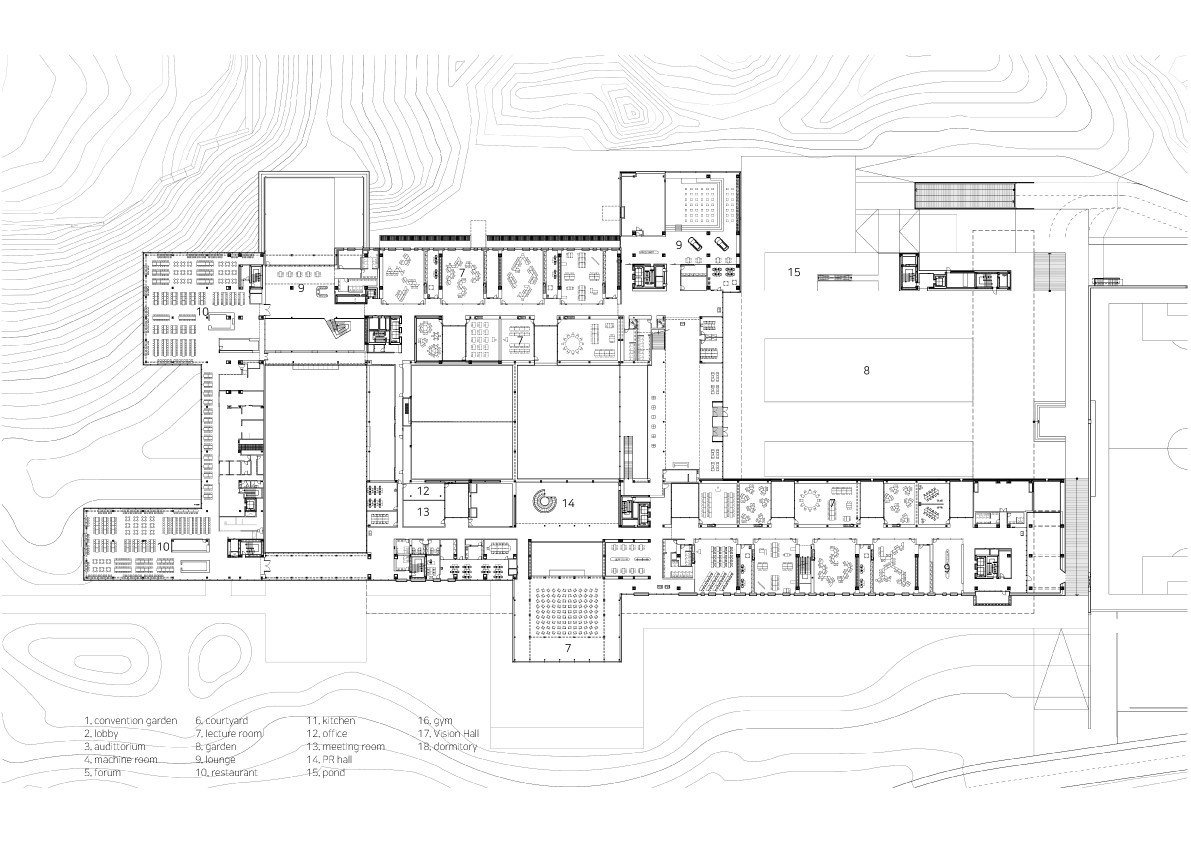
△一层平面图

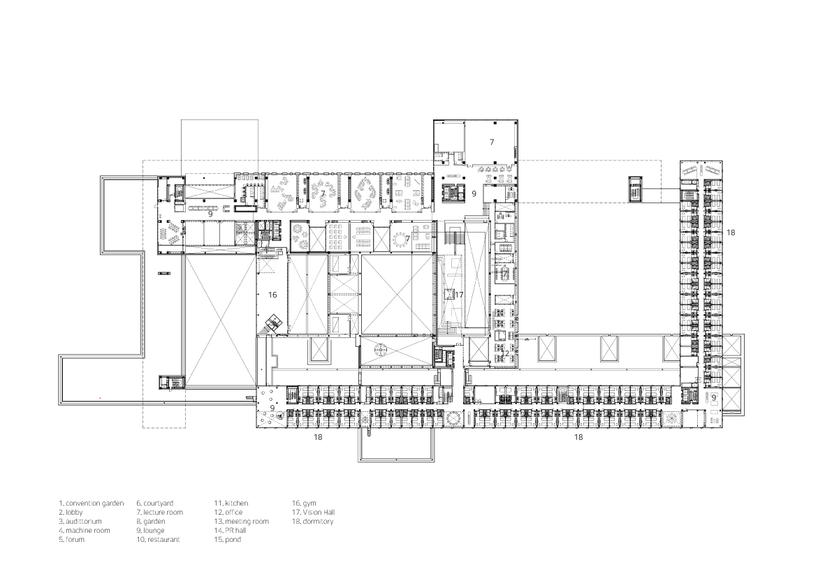
△二层平面图

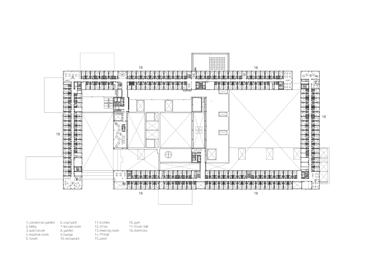
△三层平面图

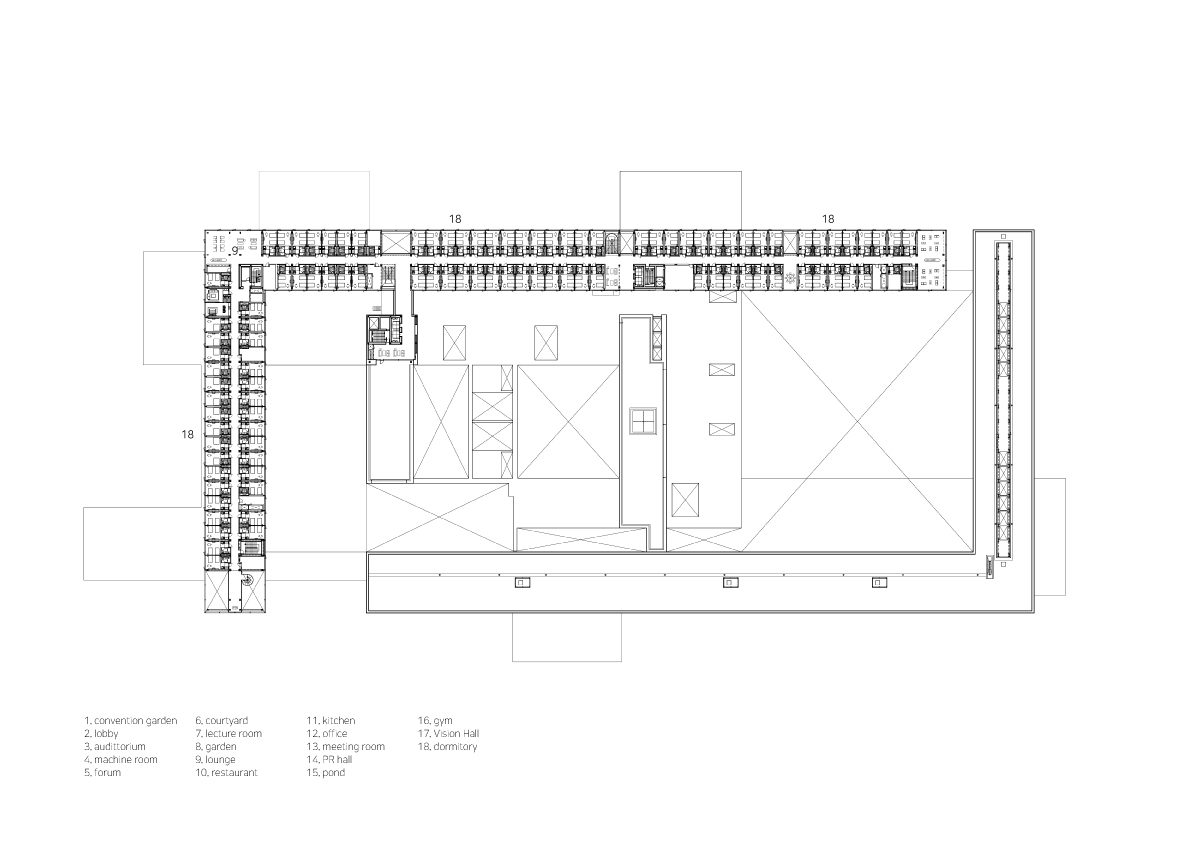
△四层平面图

△立面图

△立面图

△剖面图

△剖面图

△分析图

△分析图

△体块生成图
项目信息
建筑师: Hyunjun Mihn, mp art architects
面积 : 21180 m²
项目年份 : 2020
摄影师 :Jong Oh Kim
原文撰写 : Mihn Hyunjun
建筑师 : Hyunjun Mihn, mp_art architects
结构工程 : YOON Structural Engineers
建设 : Hyundai Engineering
机械工程 : JungIn MEC
电气工程 : DAEGYEONG Electric Planning Office
景观设计 : Office PARKKIM
地点:韩国, 庆州市

BIM建筑网





评论前必须登录!
注册