“观自在菩萨,行深般若波罗蜜多时照见五蕴皆空,度一切苦厄。”——《心经》

设计师为项目起名观自在,确是想把生命体验和思辨内观结合在一起。
落在这栋城乡交汇处的自宅时,这种结合的基础是求真——对遥远的、自然的、人心的求真。
假如它恰好为乡村振兴这类大问题做了注脚,那么是这一基础衍生的意外之喜。
一 /介入
不预设目的

项目地处北京海淀区,闻名的京西水稻和乾隆御田已不太为年轻人所知,在西山山脉和永定河水的滋养下,城乡交汇处的村落结过城市发展递上的接力棒,乡村住宅有条件成为插序格局下涟漪的中心,影响新时代的村镇和这里的人。
村书记委托TANZO天作设计师王大泉为他们宅基地上的一栋二层小楼完成景观及内部设计,这栋由当地工人完成的红砖建筑与村子中其他住宅并无差异。主人则对内部构造设计持全开放的态度,这为观自在的完整呈现打下了基础,但完全自由带来的失去参照也让设计师确立了介入方式——
不预设目的,以客观的自然环境以及主人的习惯为根本规律逻辑。这样即使过程笨拙一点、慢一点,也会确保在正确的方向上,事实也不断证明了这一点。
二 / 顺势
然后恰当



为了处理空调管线并确保通风,设计师将门头随形处理成双面斜坡顶,远看像一座小塔,这是之前没有预料到的,业主非常喜欢它“步步高升”的寓意,门外围合的黑色半墙,给进门的行为赋予了登台和隐退的双重意味。
这样顺势而为的处理贯穿整个设计过程,只有身在其中才能体会村庄远非静止。比如在设计师还沉浸在前后住宅老屋脊形成的组块风景时,前屋主人已经拆盖了附带不锈钢栏杆的二层小楼,而楼体间狭窄倾斜的排水缝隙也进一步推动了室内结构线的调整。




设计师在房子的中央插入了一个类似亭子的区域,把紧张的、人工的内部空间打通放进环境里。水泥围合的下沉区嵌入薄薄水面,小孩们常在庭院的水池间来回跳跃,水面的宽度刚好适合他玩耍的步幅。
在这个形似钥匙的小小区域围炉而坐——头顶亿万星,月光手边荡。文人式的浪漫和乡村融化在一起,钥匙“开启生活”的含义粗浅却可爱。顺势让强调变得松弛,观自在也有了机缘。
三 /兼容
创造体验




放在大尺度上,房屋本身就是在实践和外部的兼容性,设计师首先要做一个容器承载。在有风景的立面开窗,根据景观决定窗的尺寸,西山和屋前的河景从立面窗口涌入,天窗则收集自然光,人在一层和二层向外看到的风景是不同的。厨房的开窗让厨师变成了舞台上的角色,埋头烹炸以外工作似乎有了更多乐趣和互动,被看见的另一种表述是得到尊重。
室内构成的线条都基于建筑本身的筋骨牢牢握在一起,与凝聚了上世纪70年代情感和工匠精神的红砖和屋顶一起撑住整栋建筑。拆除旧扶梯后部分裸露了砖墙,与入口新建的白色旋转扶梯不断交换怀旧与新知的故事。
从立面到内部,材料的使用延续尊重感以及合理性。使用水泥、实木、主板、玻璃和钢板,通过拼贴组合创造丰富感和张力,同时用自然和材料本身的质朴将空间氛围控制在舒适得宜的自洽里,材料的受限反而给出方向。
四 /即兴
生命力涌动

每一笔下去都给材料和自然留有余地,带来了空间和自然与人的交融,这种动态平衡让空间饱含生命力。


北京的天空有时候是灰蒙蒙的,大面积的白色墙面把底色净化出来。庭院里种植大量竹子表意东方,营造出区别于村镇所在的另一个自然,像是北京对江南。无论阳光、雨水还是声响都没有被隔在外部,远道而来的南方芭蕉和北方植物一起分享花房,新旧、内外、南北、城乡在进退皆有余地的表达下消融了边界。


业主在设计完成后常常在一天里的不同时段带朋友在房子里走一走,每一次感叹于变幻莫测的植物形态和流动光影,来做客的人无需招待就自己找到了位置坐下来,孩子们则一直发明新游戏,浩大沉静的即兴演出全天无休。
五 /乡村
传统当代化的介质





王大泉喜欢那些“活在自我意识里”的设计,室内家具全部来自国内设计品牌,在一起时又因为先验的共性而融洽;器物则从更远处而来,明清的茶器盛具在这里回归日常;珍贵的摩崖石刻和光同尘,与时舒卷;花艺师万宏斟酌很久的一剪成全了走廊尽头**的宋意;正对庭院水池的飘窗榻上,一把提梁壶端然;废弃酒厂的女儿红酒缸经过处理,给庭院的夜晚增加了无尽乐趣。
庙堂的和江湖的同处一个空间,乡土给了一个广阔天地,中国人的传统精神体验在当代乡村呈现出舒展自然的状态,设计的介入就像掸掉一层浮土,珍贵的东西袒露出来。
设计从解决问题出发,慢慢走到文化和情感的部分,就像稻子从泥土里生长出来,自然且有迹可循。
结语
“我更愿意关注一个地方的空间特质和体验。用空间,光,声音的调和去打动人,不用刻意为之,也能让事物拥有超乎想象的人性。”
除去房屋主人给予的充分信赖,现场工人也充分发挥了他们的创造力,因地制宜地和设计师共同处理了许多复杂难解的施工内容,这是一次由许多人共同参与的创作,我们在其中看到了可贵的工匠精神。

许倬云谈及中国文化的精神都是人与自然动态的调和,单从这一点来说,乡村和它孕育的人更有先一步感知洞察的禀赋,设计做了一次内观,然后静待其变。
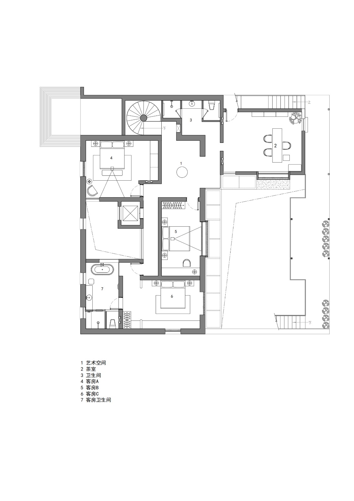
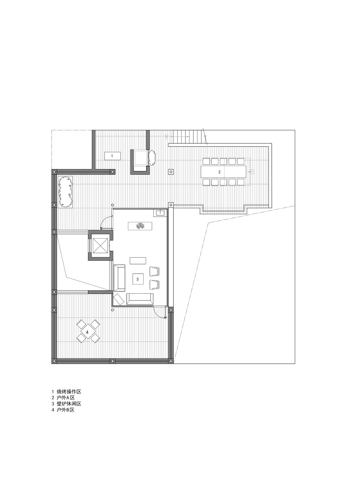
项目图纸

△一层平面图

△二层平面图

△三层平面图
项目信息
项目名称:观自在
项目类型:室内+景观
项目地点:北京市海淀区
设计单位:北京天作空间设计公司(www.tanzospace.com)
主创设计师:王大泉
设计时间:2021-2022
项目面积:442㎡
灯光设计:光宴盛品
家具品牌:素元,梵几,壹集
花艺:万宏
图片:史云峰
影片:杜鹏
文案策划:NARJEELING那几岭

BIM建筑网





评论前必须登录!
注册