
会议中心位于织布厂厂区西北角,场地原始的痕迹是一组残破的小建筑散落在杂乱丛生的绿化之中, 树丛掩映之中与北侧广袤的麦田自然衔接了起来。为了延续这种场所景观的连续性,我们采用单层地景建筑的策略整合并重塑了原有的建筑及空间。基于自然景观条件的优势与空间延展的特质,在设计初始这栋建筑是作为一个特色艺术空间来打造的,后续因园区总体功能规划的需求转变为会议中心以满足多样性的活动需求。


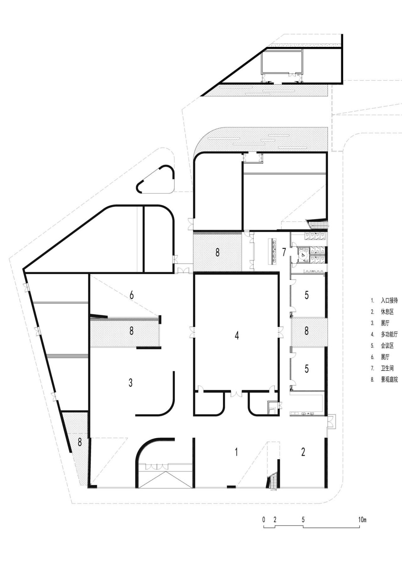
这栋清水混凝土建筑的空间形态逻辑更接近于在一张纸上进行纵横两向的局部切割,弱化其完整性的同时却仍保持纸张的连续性;这种分割也伴随着一定尺度上的差异性,为而后形成多样性的空间埋下伏笔。随后我们对纸张进行塑形,一部分切割出的边角被掀起,一部分反向向下翻折,平面的纸张呈现了立体的维度,空间的异质划分与多样性也就因此产生,实现了简单逻辑下的多样性空间建造。通过翻折的形态操作也形成了尺度与高度各异的内部空间塑造,在最为标志性的起翘屋面下方我们打造了一个面积约300平米、跨度13米的无柱空间,室内最高点净高约8米,可满足多样性的会议与活动需求。


经过塑形的开口进一步扩大成为尺度不同的庭院,院落空间作为景观媒介嵌入地景建筑之中;作为景观的容器,为较大体量的单层建筑提供采光条件并实现了空间的进一步划分。景观空间系统的植入在丰富空间层次的同时实现了建筑体量上的消解,亦回应了场地上原有建筑组团的小尺度肌理。


伴随局部向下翻折的形态,我们还植入了经由院落空间到景观屋面的路径,形成了游目观想的立体漫游体验,在绿意盎然的景观屋面眺望东侧具有连续韵律的锯齿形厂房屋顶,一种时空的对话由此而产生。








项目图纸









△平面图

△屋顶平面图

△立面图、剖面图
项目信息
建筑师:同济原作设计工作室
面积 :2638m²
项目年份 :2021
摄影师 :ZY Architectural Photography
主创建筑师 :章明、张姿
设计团队 :肖镭、席伟东、潘思、冯珊珊、黄晓倩
结构设计 :曹炜、成戎、刘东
设备设计 :郭长昭、方涛、李菡茜、沈冰春
建设单位 :上海乾艺农业发展有限公司
地点:中国,上海

BIM建筑网





评论前必须登录!
注册