
就像一个放置在清水混凝土墙上方的金属容器,这座房子与周围环境建立了两种类型的关系。上层可以 100%封闭以阻挡阳光,保证隐私性和隔音的私密空间。如果需要另一种模式,立面可以在照明和通风的节点打开。



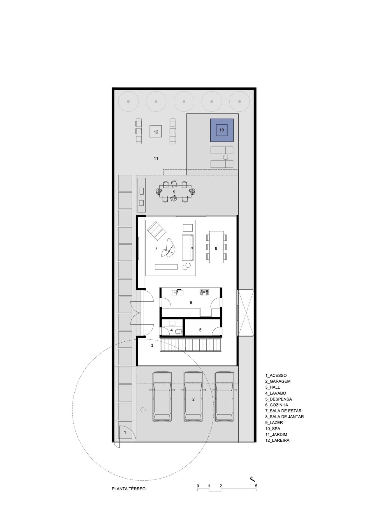
与之相反,一楼以一种流动的方式向花园开放。室内外的概念被大型玻璃开口弱化了,而家具则在建筑和巴西风艺术作品之间建立了和谐的对话。建筑师设计了其中一些,如巴西利亚咖啡桌、全套式餐桌、箱边桌和可移动长凳。




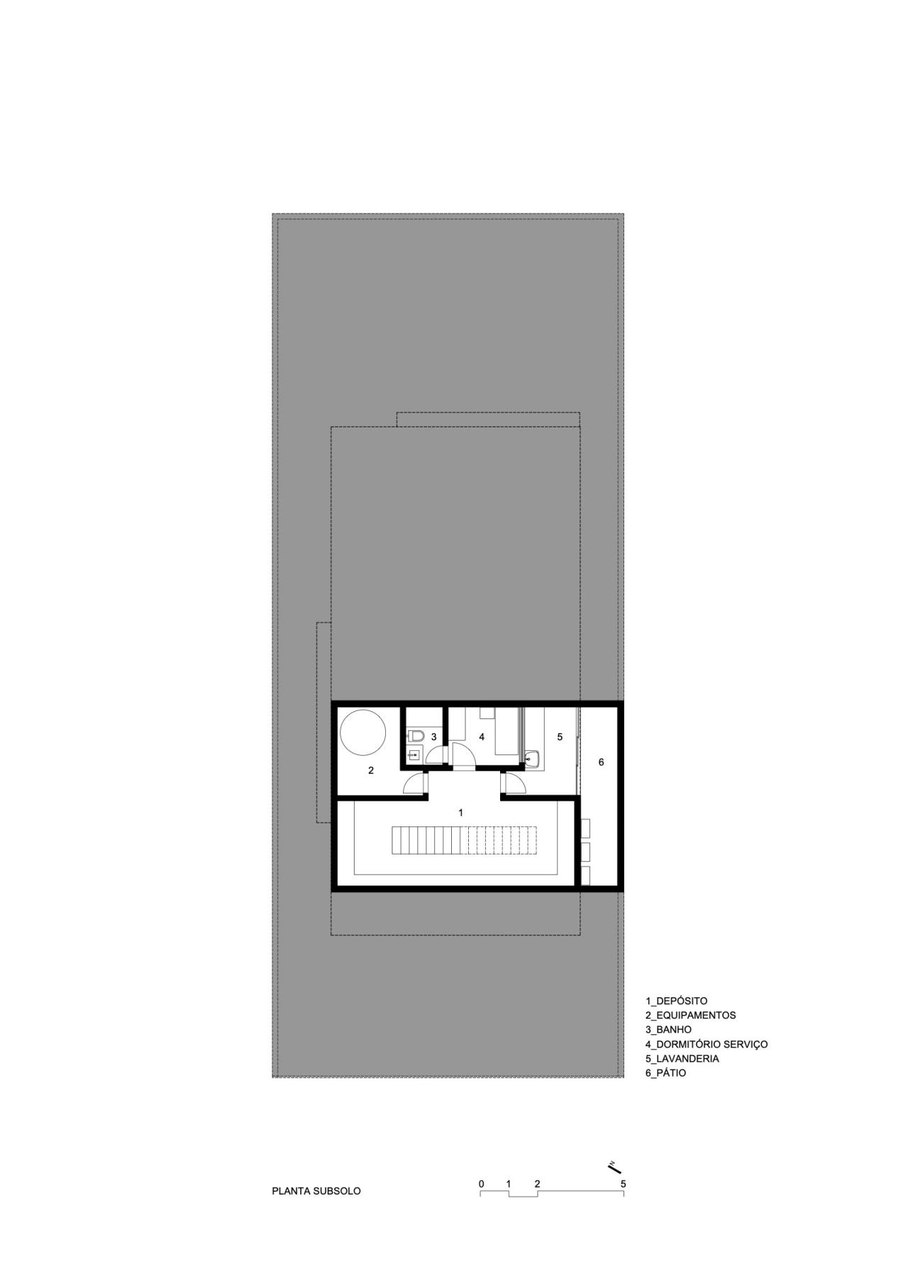
开放的一楼之下是全地下室,这样不会遮挡周边花园的景观。该项目是为一对有两个小女儿的年轻夫妇设计的现代城市住宅。因此,功能性是至关重要的。



所使用的材料是真诚、不加修饰的。钢材、木材和混凝土都呈现出他们原本面貌,每一种材料的自然磨损证明所采用的概念是非常受欢迎的。




从公共街道上看,Bento 住宅显得羞涩而谨慎。上层的折叠金属板和大门形成了视觉屏障,当踏进住宅后,游客可以感知底层空间与花园融为一体,如同圣保罗城市肌理中的一片绿洲。


















项目信息

△地下一层平面图

△一层平面图

△二层平面图

△屋顶平面图

△透视图
项目信息
建筑师:FCstudio
面积:424m²
项目年份:2022
摄影师:André Mortatti
厂家:Arthus Mármore e Granitos,Braston,By Kamy,Casual Exteriores,Casual Móveis,Construflama,Creatto,Deca,Di Mármore,Dpot,Esquadralum,Logitec,Lumini,Líder Interiores,Maneco Quindere,Mezas,Portinari,Tapetah,Tauna,Uniflex, +1
建筑和室内设计:FCstudio
照明设计:FCstudio
施工:Lock Engenharia
垂直花园顾问:Sergio Medeiros Paisagismo
电气和液压装置:Engeplot
项目结构:Praxis Engenharia
地点:巴西,São Paulo

BIM建筑网





评论前必须登录!
注册