项目基地
归来兮桠溪庄园酒店位于距离南京90公里的高淳“国际慢城”荆山竹海景区。50平方公里范围内无工业污染,山青水净,田园牧歌,宛若室外桃源。

△项目用地及周边景观

△总平面图

△场地模型
BACKTO自然 | 隐于林伴于水
本项目业主专注于有机农业和健康生活领域,提倡“归来兮”精神,采取适应当地生态,不伤害土地的生产方式,让农业生态得以平衡发展。与之相应,本项目的核心概念,是让建筑回归自然,“隐于山林,伴于湖水”。
酒店整体采用分散式布局,一系列单体散布于山谷林间,其中,接待中心作为酒店门户,是客人体验“归来兮”生活的第一站。

△鸟瞰

△鸟瞰

△南侧效果图

△南侧实景
地形的挑战与机遇
项目基地的形态特殊,位于一处水坝之上,北侧为仙塘水库,南侧为稻田,地势高差较大,为设计带来挑战的同时也充满了独特的趣味。

△场地剖面
坝顶与北侧湖面高差3米,与南侧稻田高差9米。设计师采用了“错落层叠”的场地策略:将建筑嵌入坝体,顺地势布置,减少土方量,保护原有的生态环境。特殊的高差关系赋予了建筑体量独特的双面性:北侧临水为单层体量,减少了对湖面天际线的干扰;南侧的立面共有三层,向稻田展开,逐级退台,形成丰富的层次。裸露的混凝土、多层露台棱角分明的转折线、虚实交错的表面以及倾泻而下的光影共同勾勒出建筑形体。

△剖透视

△水岸一侧视角

△稻田一侧视角
立面造型:转折横向线条与地形的结合
逐层退台的手法减弱了建筑的体量感,每层楼板用横线条收边,与两侧的山体等高线相呼应,消解了现代建筑的精致感,增加了山野的粗犷感,形成独特的视觉语言。

△外观

△外观

△外观

△外观

△外观
在地化的材料 & 简洁的构造
设计师希望最大限度上实现设计的本土性,采用本地的、自然的材料。重竹木挂板,清水混凝土挂板,仿石质感铝板,高透玻璃幕墙,打破了室内外的边界,营造出建筑融于自然的氛围。

△材料细部

△材料细部

△材料细部

△材料细部

△墙身剖面

△墙身剖面
功能布局 & 平面组织
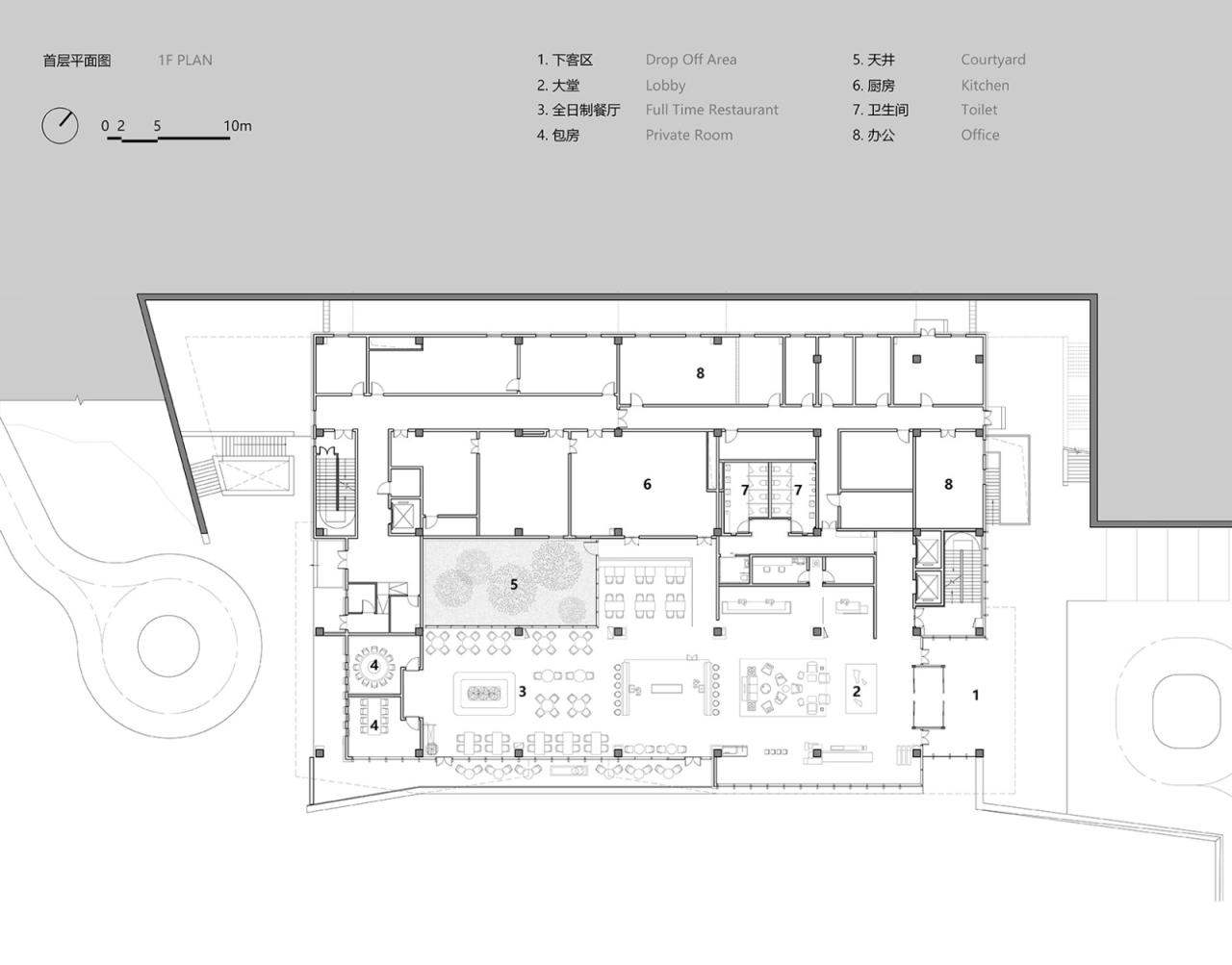
主入口及迎客大堂位于首层西侧。大堂吧和用餐区朝南布置,坐拥良好的视野;多功能吧、茶室、书吧及零点餐厅布置在二层,北侧紧邻湖面;健身娱乐功能布置在负一层南侧,并配有被稻香环绕的户外泳池。

△功能爆炸图

△接待大堂

△全日餐厅

△健身房

△次入口

△主入口

△主入口

△屋面露台

△湖岸露台

△负一层平面

△首层平面

△二层平面

△立面图

△立面图

△立面图

△立面图

△剖面图

△剖面图
设计中没有偶然与巧合,每个决策都是多重因素导致的结果,而设计师的工作就是保持这些因素之间的平衡。在业主的大力支持下,设计最终克服了场地和功能中的种种矛盾,实现了体量、空间、材料和光线的平衡。我们希望作品有扎根于自然并与自然常在的关系,让人慢下身心,远离尘嚣,回归生活本身。
项目信息
项目名称:归来兮桠溪庄园酒店 综合接待中心
项目业主:江苏舒曼投资有限公司
项目地址:江苏省南京市高淳县桠溪镇国际慢城
建筑方案设计:建识(北京)设计咨询有限公司
主持设计师:杨金昂
设计团队:徐恺,王震东,黄川汇,张正,王会娟
建筑面积:3200㎡
建成时间:2022年2月
施工图设计:南京回归建筑环境设计研究院有限公司
室内设计:深圳市于强环境艺术设计有限公司
酒店管理公司:南京金帆酒店管理股份有限公司
摄影师: 一丨影像

BIM建筑网





评论前必须登录!
注册