
△实景图

△效果图
眉山东部新城·三中心一基地项目,位于眉山市仁寿县贵平镇(未来眉山东部新城核心区),包括市民服务中心、人才中心、邻里中心、企业总部基地。为催生更多的市民活动空间,方案新增了独立的会议中心、图书馆,以完善整个项目的配套服务。

❶市民服务中心❷会议中心❸邻里中心❹ 人才中心❺ 图书馆❻ 企业总部基地
与自然融合
在眉山东部新城建一座文化地标,她首先应该是一个自由、开放、生态的市民空间,具备更多的活动场所,让来到这里的人有一种与自然对话的可能性,其次才是作为建筑的使用功能。
场地现状为自然丘陵,设计范围内有两座山体及三处水体,场地整体呈“半山半水” 的自然生态格局。


尊重场地、保留山水,设计遵循”遇山不挖、遇塘不填”的环境友好原则,延续“青山绿水”的场地基因,让建筑与自然相互融合。
“一粒种子,孕育一片森林”,作为眉山东部新城的起步区,本案正如一粒“新城种子”有机的生长在这“半山半水”之中,即将孕育出一个自由、开放而又生态的市民活动场所。

△实景图

△效果图
用设计善待生态
项目规划的核心为整合场地内原有的三处独立鱼塘水体,形成一片完整的中心湖区,同时保留原有的自然山体,建筑布局结合场地分散的现状环湖而居。
在规划上,市民服务中心及邻里中心,需具备较好的外延性及城市昭示,以方便市民服务及商业服务,分布于临红星路南延线一侧。



为打破传统市民服务中心的严肃空间印象,市民服务中心依山而建,“外”借山、“内”藏山。
会议中心作为市民服务中心的延续紧邻布置,人才中心取山之型,以层层退台的方式与远山及背景融合。总部基地位于场地最深处的山坳之间,以简洁、散落的体量营造静谧、优美的森林总部办公环境。



灵动的建筑语言
在这里,建筑不再是刚性的,而是柔性的、适应性的、流动性的。群体建筑拥有鲜明而强烈气场,在连贯的群体之中也拥有合理的私密空间。
建筑外壳材料选择可塑性极强的GRC(玻璃纤维增强混凝土),体现建筑的曲线之美,定义出灵动的建筑语言。



本项目采用全钢结构,其中,市民中心主体钢结构中间拱廊跨度超40米,结合建筑造型,采用弧形桁架结构。
GRC幕墙与玻璃幕墙交错流线的造型,为实施带来极大的难度,材料之间的交接,幕墙防水体系以及幕墙的结构支撑体系均极其复杂。局部GRC上下均为玻璃幕墙,无结构支点,只能通过跨度8~12米两端的,主体钢结构柱+二次桁架的结构支撑体系,对幕墙的整体设计及安装提出了极大的挑战。


回应城市
眉山东部新城·三中心一基地,作为一个城市行政与公共空间的象征性门户,作为眉山东部新城未来城市活跃的社交中心,不仅需要在形式上反映城市历史文脉,同时还承载着为市民提供咨询、服务、教育、文化,以及娱乐等多种空间属性。

△实景图

△效果图
在眉山这座历史文化名城中,我们汲取当地人文印迹和自然印迹,打造一颗具有思想性和发展性的新城种子。在跨越时空维度的同时,畅然探讨未来空间发展的无限可能。


项目图纸

△场地基因——青山绿水,城市与山林之间

△场地模型

△总平面图

△市民服务中心一层平面图

△市民服务中心二层平面图

△市民服务中心三层平面图

△市民服务中心四层平面图

△市民服务中心各层平面图

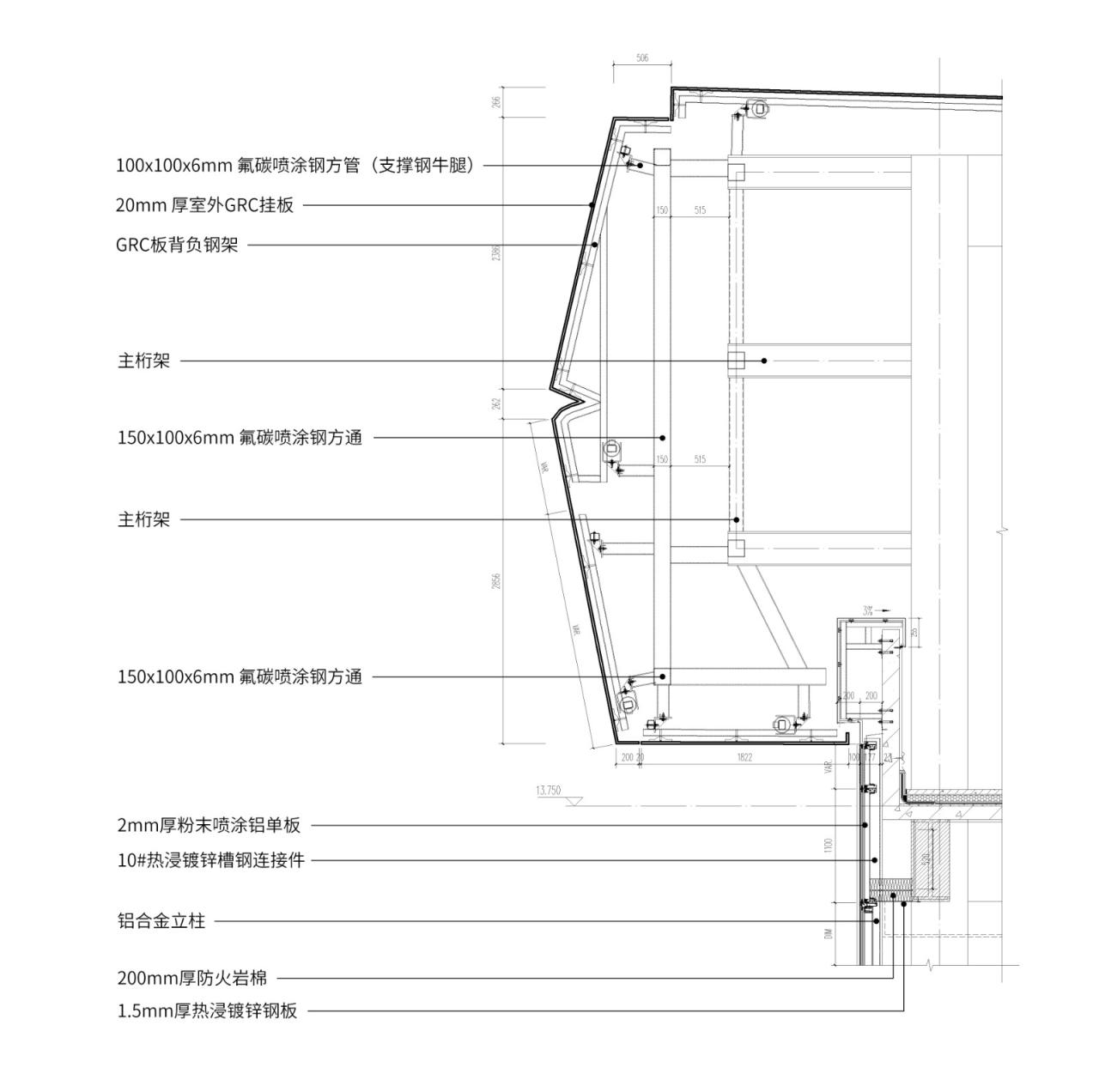
△GRC节点
项目信息
项目名称: 眉山东部新城三中心一基地
项目类型:公共建筑
项目地点:中国,四川,眉山
(四川省眉山市仁寿县贵平镇贵坪村七组(红星路南延线西侧))
设计单位:成都大陆建筑设计有限公司
设计负责人:刘峣
主创建筑师: 刘峣、赵翔、郑然
建筑设计:冯世民、王悦、蒲姻玙、方晓波、王波、蒋志刚、田汶鹏、张建华
景观设计:臧洋、曾平、代铮、刘云峰、李扬、李莉莉、颜小峰
室内设计:蒋寒池、李亚希、吴雪瑞、刘四鹏、陈恒
方案深化:刘泽昊、王从俊、陈怡飞、曾惜、王晓凤、钟蕲、陶金凤、殷顺波、徐冬梅、李百春、罗辑、王浩林、杨成辉、张俊、李干、王勇、谭邦明、叶晓波、王彪、唐川平、耿攀、刘存飞、王天强、邱容、张海娟、郑帅、胡毓欣、刘一璠
业主:眉山环天发展有限公司
建成状态:建成
设计时间(起迄年月):2020.05-2020.12
建设时间(起迄年月):2020.12-2022.01
用地面积(平方米):135165.19㎡
建筑面积(平方米):92649.06㎡
摄影机构:存在建筑-建筑摄影

BIM建筑网





评论前必须登录!
注册