
山地建筑灵活的形态和空间,往往最能体现“地域性”的特征,长期以来,它都是建筑师时常能碰到的命题,但最终落脚点依然还是生活本身。金地·湖山樾希望在这里营造出一方真正让人心绪安宁下来的空间场所,可以暂时忘掉城市的喧嚣,工作的烦恼,回归居住本身。


建筑师对整个场地进行了从地貌、竖向、台基到建筑的整体规划,最终在化整为零的策略性下,尽量少的去减少土方的挖填。保留原有山体的自然山形,最终以切分小台地的处理方式去顺应地形,通过空间的渗透,通过路径的安排和指向情绪的空间节点的变化,让它的规划的结构顺着自然地形一层层的展开,形成丰富隐奢的山居群落体验。



社区中心与湖面咫尺相邻,看似打断了规划结构所要传递的隐奢的空间氛围,实际上是通过对偶的语汇,强调这种建筑与环境对话的可能性,最终其实面临的问题是如何去做减法。



建筑以一种极简的面貌,置于上下公园联系的通道上,与山体融为一体,跳脱于环境,又有极强的对话性,达到建筑师所希望营造的一种隐奢的有机的场所精神,以及对自然的谦卑之心。



建筑风格上,建筑师并不拘泥于某种风格化或者可阅读的符号,重在表达清晰的建造逻辑,还有通过设计手法对空间、对场景的情感呈现。依托于场地的竖向,建筑悬挑于湖面一侧,框的元素与景观产生很好的对话关系,精致的铝板及玻璃材料与自然风貌之间的野趣又产生戏剧性的对立和矛盾,极具雕塑感的形态予以场域一种力量和超现实之感。



“千尺为势,百尺为形”,对于近人尺度的营造,不仅需要极高的“术”的打磨与精工细作,同时也更加需要“体道”。与“道”为邻,诗意建造,关注每一个空间节点的营造,关注每一个体现温暖且直指人心的细部设计。


模糊边界的室内空间是令人愉悦的。置入自然庭院,引入自然光线,引导自然视野,让心安静下来,关注每一个材料的真实性,关注每一个空间的层次性。感知场地,静听内心。




项目图纸

△平面图

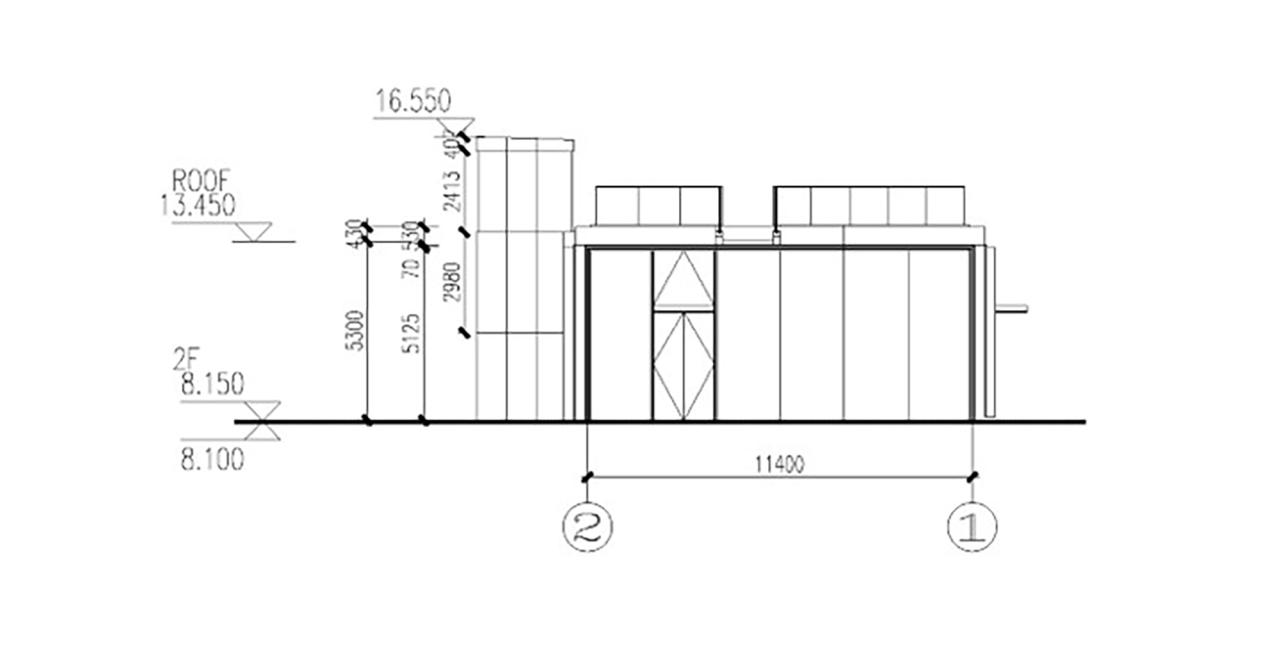
△北立面图

△东立面图

△南立面图

△西立面图

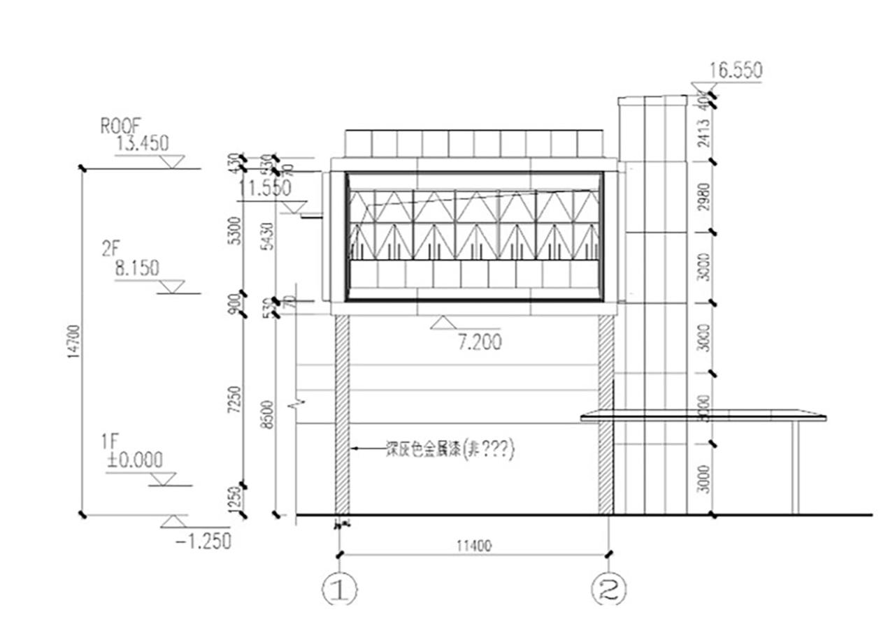
△剖面图
项目信息
项目名称:金地·湖山樾社区中心
项目类型:建筑
项目地址:中国·湖南·长沙
占地面积:2730平方米
建筑面积:622平方米"
设计时间:2020年10月
完成时间:2022年6月"
设计方:PTA上海柏涛
主创建筑师:余小雷,冯波,阮维庆,彭俊
设计团队:蒋云鹏,刘永坪,魏斌,董煦,戴伊漪,杨词,朱殷强,陈思晗 ,冯婷婷,戴若玙,陈飏
业主:金地集团华中区域长沙公司
景观设计:上海张唐景观设计事务所
室内设计:则灵艺术(深圳)有限公司
施工图:长沙天华
摄影师:Moment | 王骁,远洋
主要材料:浅灰色铝板、高反玻璃

BIM建筑网





评论前必须登录!
注册