秩序重构与场所重建
项目背景
岩川建筑此次设计的城里的月光CLUB,位于成都市龙泉驿区龙泉山花果村,作为一个典型的乡村改造与乡村振兴区域,龙泉山已经成为乡村生活与现代休闲旅游相结合的区域。在这样一个既有传统乡村风貌,同时又具有现代生活气息的区域内,将一个原有的二层砖混农房改造成具有一定现代审美需求的新建筑,并且希望通过设计能为建筑及场地带来新的活力。


设计概念
项目本身是对原有二层砖混住宅的改造,但是由于原建筑的条件限制,不能对建筑进行大的调整,同时项目后期需要较大的室外活动空间,因此本次改造设计的重点并没有放在对原建筑的改造上,而是聚焦在如何通过一种更加理性的方式,将原建筑的边界进行拓展,同时通过拓展的边界重新构建新的秩序与场所。



建筑设计
针对原有二层建筑,我们根据使用功能需求,将其空间进行了重新组织,利用原有的建筑格局,分别划分了餐饮区、娱乐区以及住宿区,并根据平面功能的划分,对建筑门窗进行了局部调整。在建筑的外侧,则利用3MX3M的钢构架单元,组合成一个递进的构架网格,通过构架单元的组合与叠加,形成一个外扩的建筑场所,并将原有建筑包含其中。钢构网格与原建筑成为一个整体,一起形成建筑新的立面形象。
单元钢构的存在不但打破原有建筑单调、孤立的建筑形象,同时也拓展了建筑的场所领域,并为项目本身重新建立了构成秩序。



秩序重构
建筑的生成来源于秩序,秩序是建筑内在的构成逻辑。但这种秩序很少体现在建筑的外在形象,它往往存在于建筑的思考与营建过程中。中国传统建筑中对这种构成秩序的追求表现在传统建筑中梁柱体系、屋面檩条以及复杂的斗拱构造之间。今天的建筑如何能够体现这种内在的建筑秩序构成,并且将这种秩序作为建筑的表现形式,也是我们这次设计中思考的重点。



在设计上,我们通过3MX3MX3M的立体钢构架单元,利用一种模数化的构成,为一个没有构成逻辑的建筑,重新建构一套新的建筑秩序。我们通过这种新的内在建筑秩序的重构,不但将新建筑与原有建筑进行整合,并且将这种秩序作为建筑的外在表现形式。这种建筑秩序的重构,不但为原有建筑与新建建筑融合创造了内在逻辑,同时也是为改造类建筑设计提供了一种新的思考。



场所重建
建筑的场所,不只是建筑物质空间的概念,同时也应该是建筑人文情怀的体现。建筑场所的营造是建筑空间表达的内核,也是建筑对人而言最为重要的部分。本项目通过单元钢构件的构成,在重构建筑秩序的同时,也对建筑原有的场所进行了重建。

通过钢构形成的建筑空间,建筑内外之间形成了新的建筑空间层次。单元钢构的营建,在新的钢构单元与原有建筑之间,创造出了更具有场所感的空间存在,形成了更具有层次的空间体验。钢构单元自身不但形成其特定的场所秩序,同时也形成了更加富有活力的建筑空间,创造出建筑独特的场所精神。


结语
没有复杂的建筑造型与色彩、也没有复杂的建筑材料与构造,整个设计通过简单的单元构成,重新建构了建筑的秩序与场所。岩川建筑希望通过这种对建筑内在秩序的思考与设计,能够让人们更加理解建筑学本质内核的意义与力量。


项目图纸

△总平面图

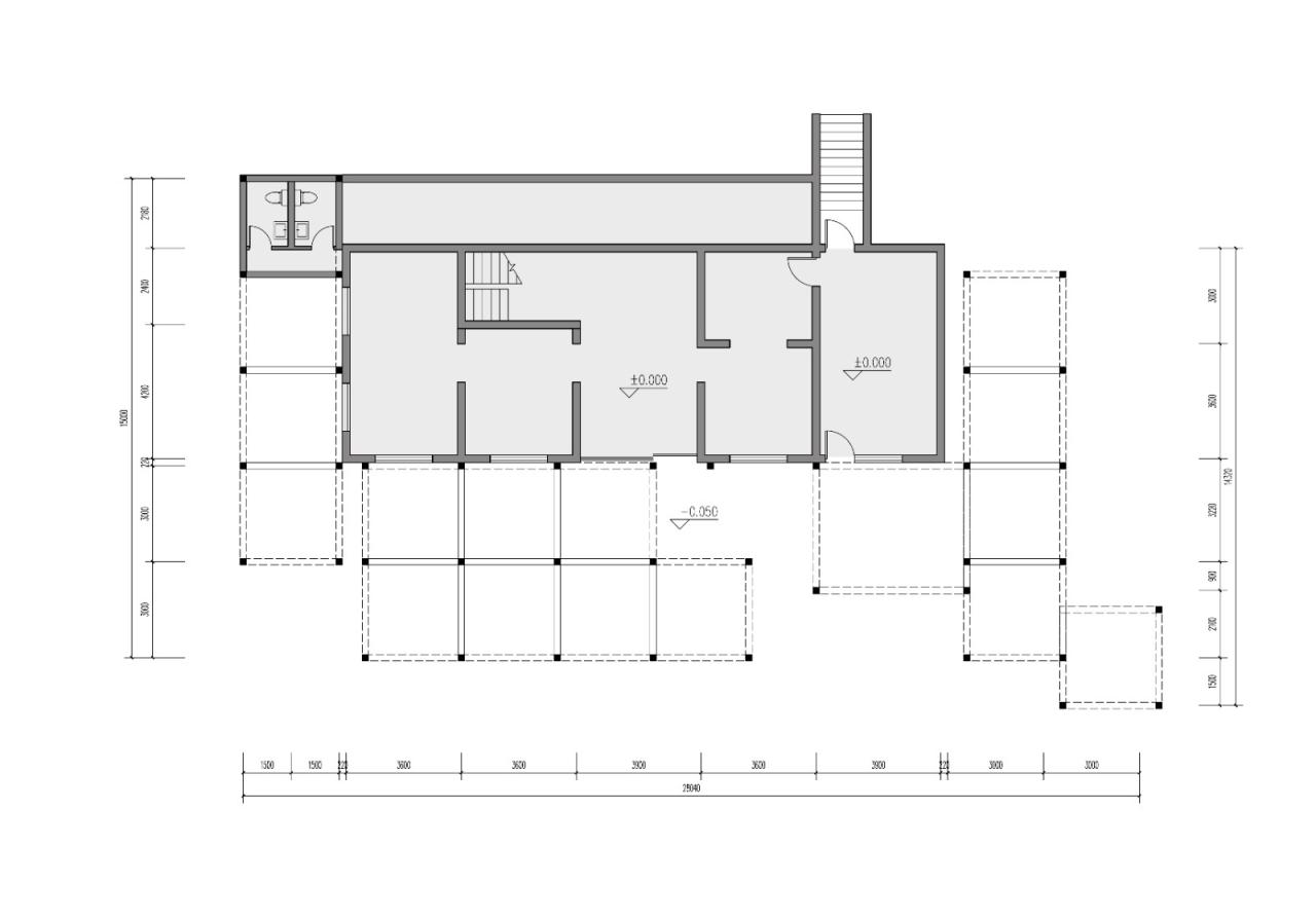
△一层平面图

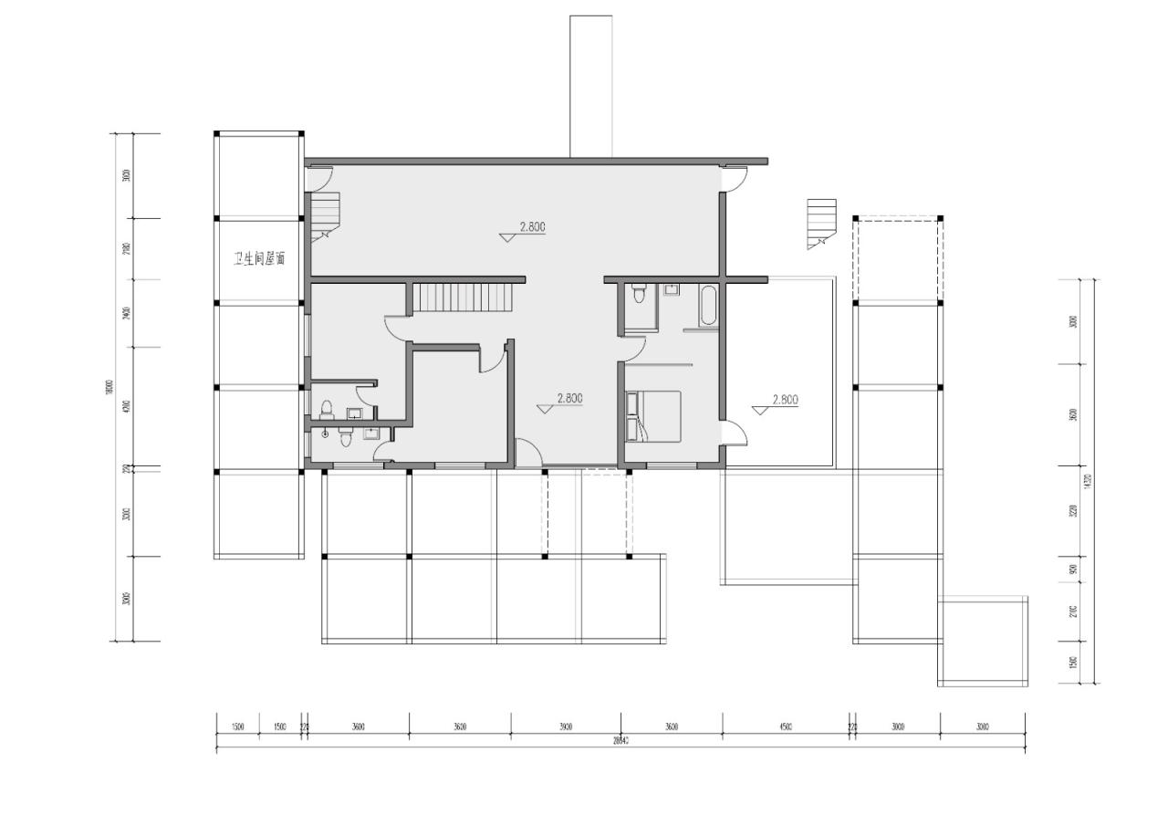
△二层平面图

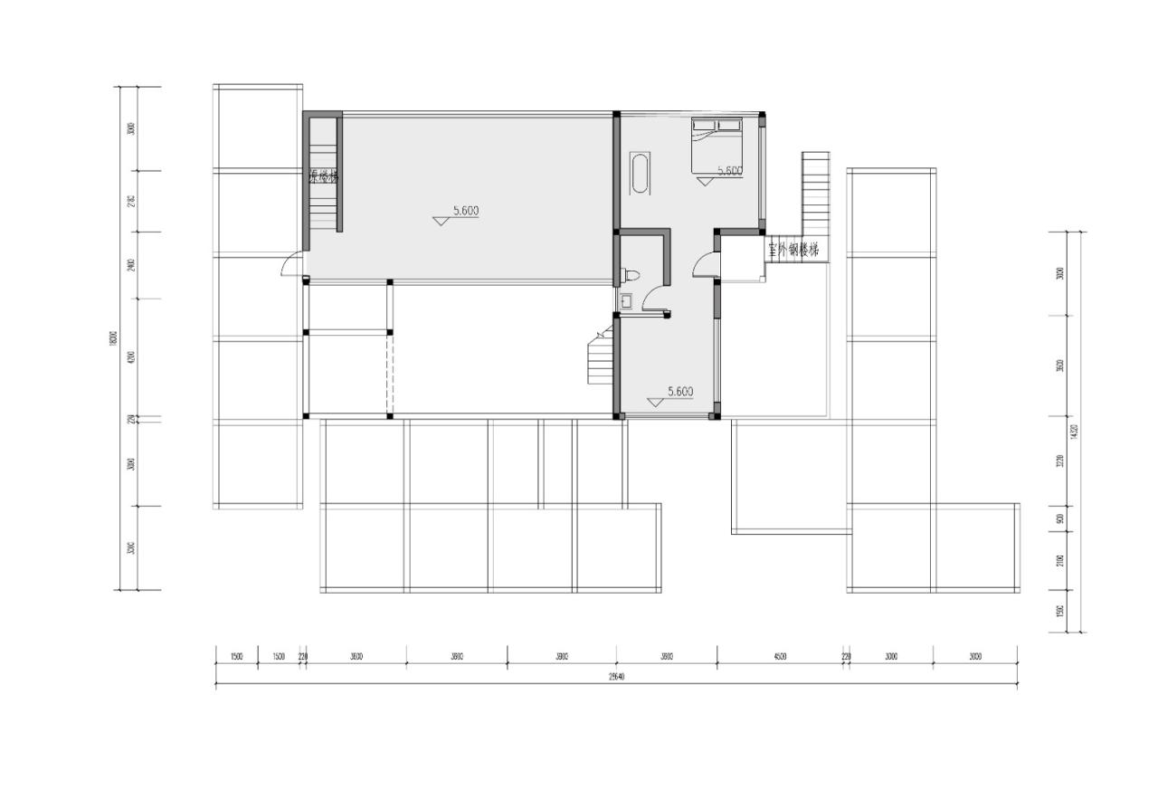
△三层平面图

△正立面图

△侧立面图

△爆炸图
项目信息
项目名称:城里的月光CLUB
设计方:岩川建筑
设计时间:2020.02-2021.06
建成时间:2022.06
主持建筑师:孙岩
团队成员:孙岩,张哲,张礼,莫妮娜
合作单位:成都理工大学 建筑系
项目地址:中国成都 龙泉驿
建筑面积:420平方米
摄影版权:存在建筑
微信公众号:岩川建筑

BIM建筑网





评论前必须登录!
注册