在Revit管理选项卡(ManageTab)设置面板(Setting)下的其他设置(AdditionalSetting)内,可以打开线宽设置选项。线宽设置界面可以对模型线、透视视图线以及注释线线宽进行设置。

图3. 24 定义线宽单位数值及单位数量
如图3.24所示,所有模型线的线宽设置都不是一个固定值,而是随比例而发生着变化。图中所示乃是一条线宽标记为5的墙体剖切线,其在比例1∶10~1∶500的线宽设置值分别为1mm,0.7mm,0.5mm,0.35mm和0.25mm,图例中可明显看到线宽值随着图形的缩小而不断变小。因此,当用Revit模型进行PDF打印输出时,最终的图面结果会因为比例的不同而显示出差异。这种不同于CAD的设置方法正是为了适应Revit新的模型管理输出思维。当一个墙体模型构件在Revit中被建立后,它可能出现在1∶20的图纸输出中,也可能出现在1∶500的图纸输出中,因为在所有的可能范围内很难找到一个合适的数值满足所有比例图纸的输出。
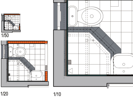
再以图3.25浴室平面为例进一步说明Revit线宽控制系统的意义。墙体剖切线在对象样式中设置线宽值为5,不同比例平面对比可看出线宽设置的作用。1∶10图面中墙体剖切线显示宽度为1mm,1∶20及1∶50图面中线宽值略小为0.7mm,但已可以明显看出当前比例线宽值已影响到墙体饰面层的表达,如果线宽是被一个统一数值控制,比如1mm,这种情况会更加严重。当然,1∶20及1∶50图面并不需要显示墙体结构细节,Revit也有相应的设置来控制比例与图面复杂程度的关系(见图3.26)。这个例子很清晰地解释了Revit线宽设置背后的逻辑。

图3.25不同比例下线宽设置示例

图3.26视图比例与详细程度对应关系
线宽表也可进行相应的调整来满足项目的需求,比如图3.27所示,当线宽5在1∶20比例下的设置宽度值被调整为0.18后,图面效果得到了极大的改善,饰面层、隔热层都可以清晰显示,这个线宽在随后的PDF打印中会显示出同样的效果。
图3.27不同线宽值图面效果对比
——节选自《BIM设计软件与制图——基于Revit的制图实践》李一叶 著
仅供学习交流 版权归原作者及出版社所有

BIM建筑网





评论前必须登录!
注册