
漂浮庭院住宅位于巴罗达 (Vadodara)一个被住宅和商业地块包围的平凡街区,是对客户想要一个独特和实用的住宅的简要回应。它植根于简单性和极简主义,醒目地站在那里,与周围环境完全和谐,为用户提供一个可以称之为家的房子。日复一日,每个人的房子都变得越来越大。在这种情况下,当客户要求在 164.44 平方米(1770 平方英尺)的极度紧凑的场地上建造五间卧室的房子时,我们必须超越常规思维。

因此,我们开始了规划这所房子的过程,开始于寻找一个核心空间,将各层的所有空间联系在一起。一个共同的开放空间,让家人聚集在一起,进行交流。由此,在一楼形成了一个庭院的概念。一个有趣的想法是,一个两层通高的庭院,所有的室内空间都可以俯瞰,这可以帮助我们为最终用户创造一个整体的体验。


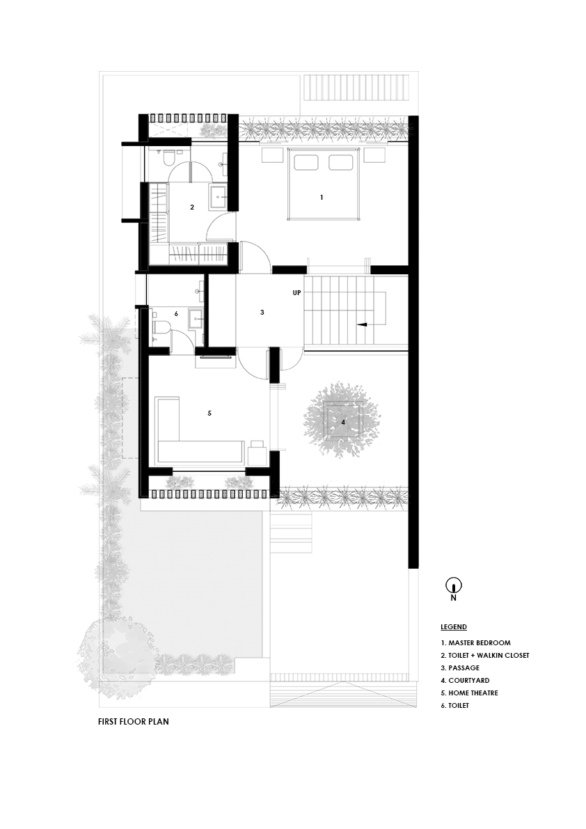
按照《毗罗经典》(vastu)的原则开发,房子的公共区域以开放的平面展开,有开放的起居室、餐厅和厨房区域。朝北和朝东的墙壁上有大量的开口,使空间除了能捕捉到外面郁郁葱葱的绿色花盆外,还充斥着日光。位于后侧的父母的卧室延伸到边缘空间,为房间创造了一个舒适的角落,同时也提供了光线和通风。暴露在外的混凝土和木质踏板的极简主义楼梯漂亮地环绕着浮动的庭院,将人们引向上层,同时提供了庭院的景观。


在一楼,家庭起居室向一侧的庭院开放,使其在视觉和物理上有直接的联系。为了避免另一侧的主卧室与其他环境隔离开来,在卧室、楼梯和院子之间建立了一条视觉轴。后侧的花盆床给卧室带来了动态和愉悦的氛围。位于二楼主卧室正上方的儿子的卧室也采用了类似的方法。卧室里俯瞰楼梯的大窗户座椅将庭院和凉亭的壮丽景色框在一起。卧室的另一侧是一个直线型的阳台,阳台上有花盆,全天都有光线,也是一个休息空间。客卧两侧都有阳台,一个可以俯瞰庭院空间,另一个可以看到街道。在1.22 米(4 英尺)的狭小空间里,一个折叠的金属板楼梯成为连接二楼和露台的惊喜元素。




这些经过深思熟虑的设计和联系的内部空间为用户提供了一个非常独特和整体的体验,否则在如此狭小的地块上很难实现。光线在这个房子的设计中起着重要作用。它为室内空间增加了一个不同的维度,在一天中具有戏剧性的视觉效果。由于西面是一堵普通的墙,东面和南面是相邻的平房,吸收自然光成为最重要的部分。北方的光线通过院子进入房子,使房子被自然光淹没,院子顶部的凉棚在一天中投下了有趣的投影图。尽管建筑围护结构很严密,但设计还是解决了光线和空气的流动问题,在房子里挤出了一个体验式的旅程。





与规划同步,建筑的体量围绕着浮动的院子而发展。院子外墙的空隙被砖制的贾利(jali)实体所平衡,在不同的空间投下了戏剧性的阴影。与现代不同的是,房子是用纯砖建筑方法建造的。厚厚的砖墙为房屋内部提供了合理的热学舒适度,使其在气候上有良好的应对。一些混凝土元素以悬挑和风雨棚的形式加入,以完成设计。天花板是裸露的混凝土,地板是灰色科塔石。木质的家具完成了自然的设计色调。总的来说,房屋的体量、规划、引入庭院的方式、自然的建筑方法、使用的材料、每个空间的采光和通风方式以及它们与庭院的连接方式,都呈现出一种令人惊叹的体验,在如此小的地块上很难想象。






项目图纸

△一层平面图

△二层平面图

△三层平面图

△立面图

△立面图

△剖面图

△剖面图

△分析图
项目信息
建筑设计:TRAANSPACE
面积 :1770ft²
项目年份 :2021
摄影师 :Vinay Panjwani
厂家 : Akar Aluminium,American Standard,Baba Marbles,Exposed concrete rendering,Grohe,Shreenath Bricks
主持建筑师 :Urvi Shah
设计团队 :Urvi Shah, Supriya Karkare, Divya, Mansi
现场执行 :Rahi Construction
结构顾问 :Akash Shah & Associates
地点:印度,Vadodara

BIM建筑网





评论前必须登录!
注册