
Fifth + Tillery 办公大楼为美国东奥斯汀的一个后工业基地带来了生机,一个大型仓库的占地空间被重新构想为一座充满活力的室内/室外创意办公楼。该项目从其对比鲜明的周边环境中汲取灵感,标志着从繁华社区到工业区的过渡。一个简单的混合木结构呈现了一种实用性和自然性的美学,平静地融入两个地区中。

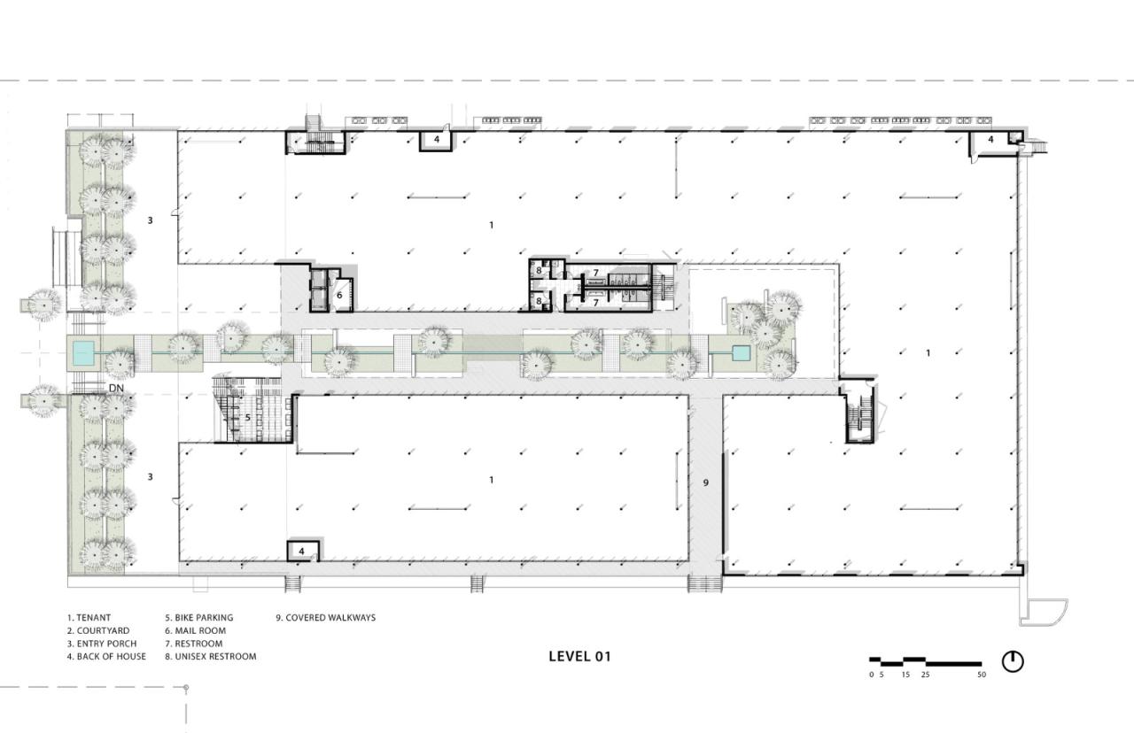
Fifth + Tillery 专注于可持续发展和福祉,彻底颠覆了传统的办公楼以邀请社区参与进来。朝南的入口广场作为宽敞的室外大堂,将微风引入景观庭院。电梯直接向外部开放,而一个大型的社交楼梯则鼓励游客探索建筑之美。

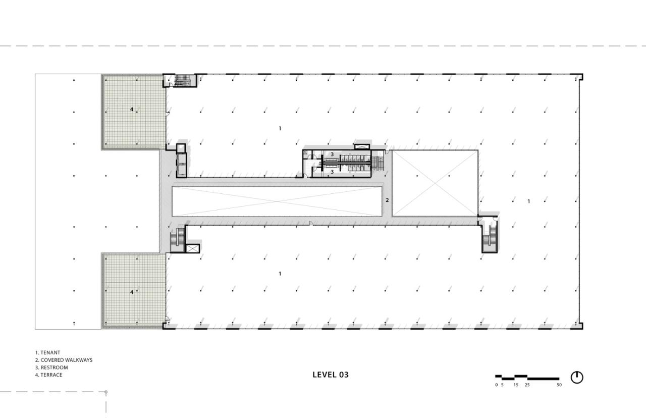
由于德克萨斯州气候全年温和,夏季较为炎热,因此提供舒适的户外环境至关重要。关键是要在室外空间提供遮荫、遮蔽和被动降温。一片墨西哥梧桐树为入口广场提供了阴凉,还有美国水松交错分布在整个庭园里。在上方,交错的光伏阵列兼作遮阳结构,为广场和三楼屋顶露台提供遮蔽。太阳能电池板延伸到屋顶大面积区域,产生的电力几乎可以完全抵消建筑在夏季的能源消耗。


入口广场邀请游客进入深入到建筑空间内的庭园空间。院子作为多租户走廊,同时也起到了改善采光、通风,并作为雨水基础设施的作用。一座流水喷泉从庭院的北端开始,源源不断地向南流经庭院,最终汇入入口广场前的另一个绿植水池。这条流水通道漂浮在一个景观雨水花园之上,有助于缓解场地内的雨水流量,也为庭院空间提供被动冷却。德克萨斯州在较热的月份有着严格的水资源管理规定,因此建筑将利用冷凝水回收和雨水来供应园林水景和景观灌溉。


在建筑中引入庭院的挑战之一是它增加了大量的建筑围护结构。重要的是,围护结构既要性能好又要经济。在太阳照射较强的立面上使用了简单的穿孔开口,以平衡吸热量和采光,而在既有遮阳又能看到景观的地方则使用了带有连续窗户的墙体。简单的金属壁板来自当地供应商,并安装嵌璧和空腔绝缘的雨幕系统。


色调有意地保持了实用性和自然性,混合木结构系统为整个建筑带来了花旗松胶合木的温暖和美丽。简单的色调为景观创造了一个宁静的背景环境,从以前几乎不透水的场地上,到现在每个空间都可以看到绿植。自然界的无缝融合将用户引入公共空间中,创造了一个鼓励交流联系和自发协作的动态社会环境。





项目图纸

△总平面图

△一层平面图

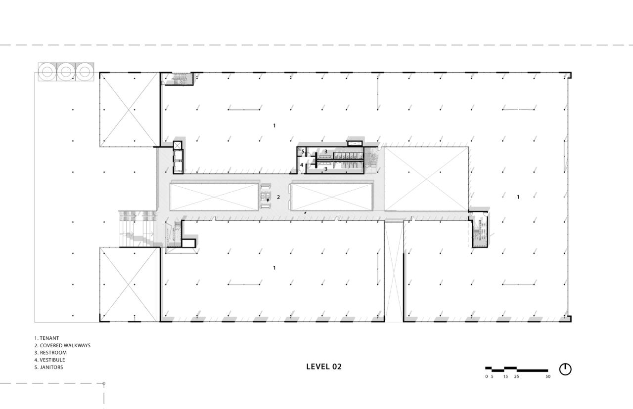
△二层平面图

△三层平面图

△剖面图

△剖面图

△剖面图

△分析图

△分析图

△分析图
项目信息
建筑师:Gensler
面积:188919 m²
项目年份:2020
摄影师:Matthew Neimann, Gensler/Ryan Conway
厂家:Central Texas Metal Roofing Supply, Freedom Solar Panel, Rosboro, Trespa, Vitro®
设计团队:Michael Waddell, Travis Albrecht, David Lynch, Reid Olsen
地点:美国,奥斯汀

BIM建筑网





评论前必须登录!
注册