
作为“东京公共卫生间(THE TOKYO TOILET) ”项目的一部分,日本设计师佐藤可士和(Kashiwa Sato)负责位于涩谷区惠比寿站(Ebisu Station)西入口外新厕所的空间设计,以及该项目所有洗手间所使用的图标。惠比寿站是东日本旅客铁道和地铁线路的换乘站。巴士总站与出租车站位于其西面出口,使之成为一个受欢迎的聚集地点和交通繁忙、人流密集的区域。这个公厕被设计成出口外的一个可识别地标,为该地区带来明亮和清新的氛围,同时日常通勤者也不会觉得高调突兀。


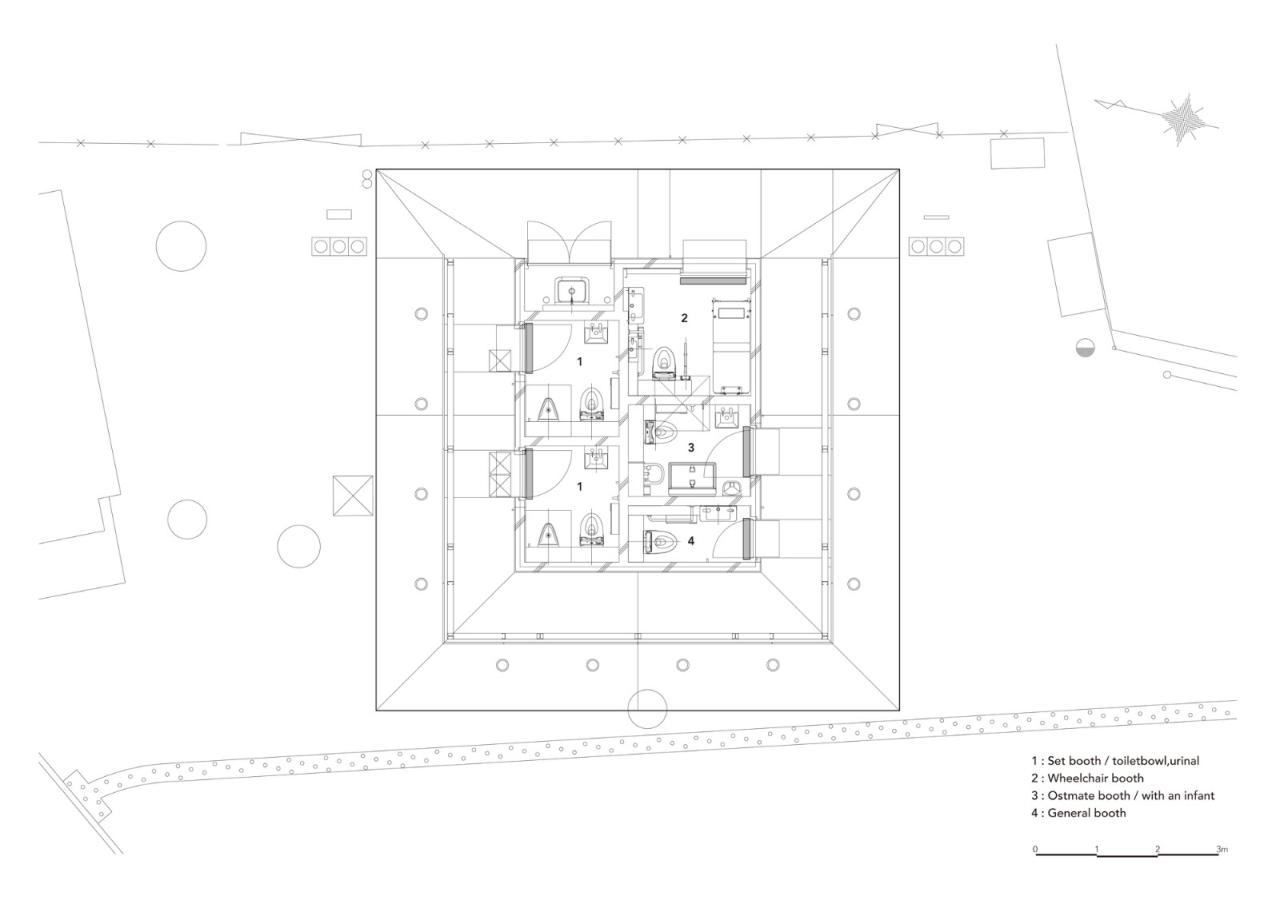
“纯白厕所”的设计通过将其所有组件整合为白色来描绘出厕所应有的干净整洁。包含四个独立厕位的方形建筑由白色铝制百叶窗制成,带来轻盈和通风的感观。这种设计通过适当的可见度来促进洗手间内外的安全性,同时确保厕位内使用者的隐私。


东京公共卫生间项目的目标是为一个干净、安全、和谐和包容多样性的社会作出贡献。基于这些理念,佐藤可士和将这个公共厕所设计成车站外的地标,符合公共厕所的自然标准的同时,展示出一种新的生活方式。该项目由非盈利组织日本财团(Nippon Foundation)发起,厕所是日本顶级 “omotenashi ”以诚待客文化的一个重要组成部分。然而,许多公共厕所由于黑暗、肮脏、发臭和可怕而被人们闲置。


在日本东京都涉谷区的合作下,该项目旨在涉谷区的各个地点建造具有吸引力的厕所设施,让每个人,无论年龄、性别或残障都能舒适地使用。在规划的 17 个地点中,每个厕所都是由 16 位世界知名建筑师和设计师之一单独设计。通过这些大师的设计和创造力,这个开创性项目正因其挑战和解决围绕当今公共厕所的社会问题的努力而受到关注。


项目图纸

△平面图

△立面图

△立面图

△剖面图
项目信息
建筑设计: SAMURAI
面积 : 39 m²
项目年份 : 2021
摄影师 :Satoshi Nagare
创意总监 : Kashiwa Sato
建筑设计 : SAMURAI, Yoshihiro Saito
美术指导 : Ko Ishikawa
建筑设计&施工方 : Daiwa House Industry
委托方 : The Nippon Foundation
照明设计 : Daiko Electric

BIM建筑网





评论前必须登录!
注册